
建筑正立面效果图
润友科技总部位于上海市临港区一环带总部湾开发片区内的海港大道与环湖南二路交叉口,南临公园,北侧不远处即为滴水湖。项目占地面积 12,047.80 平方米,总建筑面积 56236 平方米,设计建筑高度 49.6 平方米。是润友品牌在长三角地区具有高价值和里程碑式的综合用途的标志性项目,集总部研发办公、运动大数据研发、教育科普展示基地及配套功能为一体的混合功能建筑,目前已于 2021 年 7 月进入施工阶段,预计 2025 年 9 月底竣工投入使用。
项目信息
项目名称:临港润友科技总部
业主:上海润友科技发展有限公司
建筑类型:总部办公
建设地点:上海临港
建筑设计:中国建筑东北设计研究院有限公司-曹辉工作室+数字化研究院
项目负责人:曹辉
设计团队:石慧、张修江、王志博、才梦新、闫泽汉、王天尧、赵云龙(建筑);付丹、孙浩、张
婧、刘媛、刘亚楠、刘俊峰、王娇、赵爽等(结构机电)
总建筑面积:56,236 m²
设计时间:2020年7月
图片来源:中国建筑东北设计研究院有限公司-曹辉工作室提供

临港新片区 103 一环规划效果图
形体生成
建筑场地有着严格的规划限制条件,规划限定了 3 米/ 13 米两级退界,且规定了 70%的贴线率。地块高度限制为 50 米,而相邻北侧临近地块建筑高度为 100 米,遮挡了滴水湖的景致,给场地带来了巨大的压迫感。在如此高度限制的场地上,设计采用体块穿插的形式,用横向生长的姿态延展体块,强调场地上的横向力量。

形体生成
通过体量的错动创造丰富变化的形体与空间,悬挑的玻璃体与底部基座相互“滑动”,延伸出 “眺望滴水湖的”盒子。透明的玻璃体托举了上方漂浮的“实体”,“虚实交错”削弱了建筑体量感,用开敞的姿态将建筑与环境融为一体。

方案效果图
“虚实交错”削弱了建筑体量感,用开敞的姿态将建筑与环境融为一体。建筑形成的两个竖向主体在基底与顶层相联接,在半空中围合了气势恢宏的室外中庭。这里形成多层次的露台和活跃的活动空间,促进了办公人员与社会活动之间创造性的异花授粉。半空中与屋顶的双“空中花园”打破地块与城市之间,人们与自然之间的界限,邀请人们到室外,鼓励更多驻足停留和体验,成为互动的休闲活动区域与企业户外展示空间,营造自由、平等、开放的场所体验。
透明玻璃盒子水平悬挑长度达到 10.5 米,它的透明玻璃机体赋予了它轻盈的感觉,与金属的底座形成鲜明对比。夜间通过内部和外部照明突出建筑物,将其与社区繁忙的夜生活结合起来。首层以清晰完整的玻璃体呈现,最大限度的使室内外边界弱化,强调了场地的流动性,虚化的首层也在视觉上强化了建筑整体的漂浮感,使之看起来更“轻”。

鸟瞰图
功能空间
通过错综复杂的功能联动策略来应对综合总部的多元需求,大数据展示、餐厅、咖啡厅、展厅等公共设施被集中设置在 1-2 层,保证可达性、功能开放性并满足物业的管理需求。建筑主体在2层以上一分为二,将企业的职能与办公空间明确划分,建筑在顶层再次连接,以满足高层在管理层面及信息上的互通。办公层空间均采用开敞办公及独立办公混合的模式,由立面及和中庭侧提供充足采光。通过错综复杂的功能联动策略来应对综合总部的多元需求,大数据展示、餐厅、咖啡厅、展厅等公共设施被集中设置在 1-2 层,保证可达性、功能开放性并满足物业的管理需求。建筑主体在 2 层以上一分为二,将企业的职能与办公空间明确划分,建筑在顶层再次连接,以满足高层在管理层面及信息上的互通。办公层空间均采用开敞办公及独立办公混合的模式,由立面及和中庭侧提供充足采光。

剖面手绘

建筑透视效果图

建筑透视效果图
立面设计
立面灵感来源于艺术装置“一个人的绿洲”(1970s,奥地利),其将巨大的有机玻璃球与建筑融为一体,悬挂在博物馆建筑之外,呈现虚拟而梦幻的视觉冲击。设计中将这种玻璃体简化为建筑的“气泡窗洞”,将这一元素戏剧性的与传统观念中关于公共建筑空间的外观和功能形成对比。“气泡”零星点缀于冲孔板表皮之中,球面形成大气与环境千变万化的反射与回应。
方案利用模数系统来严格控制平面与剖面的发展,选择 4.2 米的模数作为空间的基本秩序单元。这个基本模数单元将完全映射到建筑的形体和立面,重复的模数单元最终形成了独特的建筑气质。立面在 4200*3900 的基础模数下分割,通过设立一系列的控制线,划分立面“格构系统”中的景观窗与吊顶线,第二层立面以此介入形成整体秩序的统一。

气泡窗空间示意效果图

一个人的绿洲 1970s 奥地利
结构设计
结构设计团队进行了多个结构软件并行调整计算,对比分析结果。通过对结构小震弹性、设防烈度地震作用下等效弹性、罕遇地震作用下等效弹性、罕遇地震动力弹塑性时程等方面的分析,以及对楼板、大悬挑、连接体等方面的专项研究完善了结构设计。

超限抗震

超限抗震

超限抗震
可持续设计
项目希望打造在建筑的规划设计、施工、运营等全寿命周期内,在关注能源和环境的前提下,以建筑室内健康性和舒适性为核心,促进人和自然的和谐发展的建筑。同时在设计过程中减少能源、资源、材料的需求,将被动式设计融入建筑设计中,尽可能利用可再生能源改善围护结构的热工性能,以创造相对可控的舒适的室内环境,减少能量损失。
项目图纸

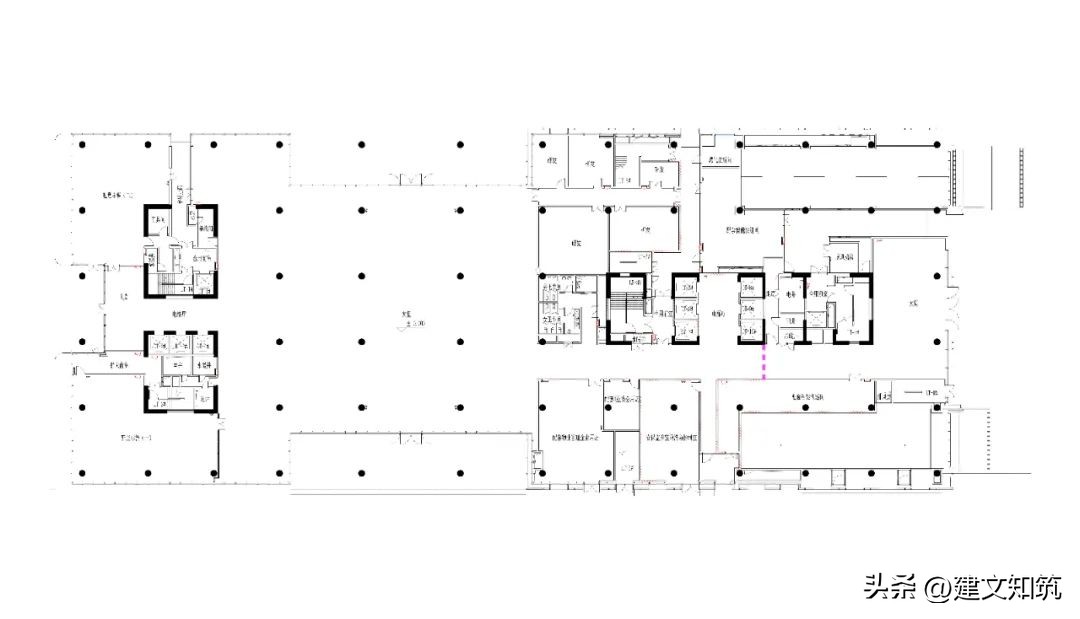
一层平面图

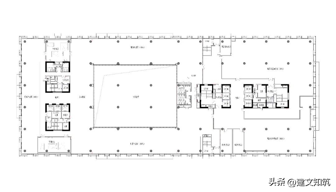
二层平面图

建筑设计草图

建筑剖面