一、设计概况

二、施工方法
2.1 工艺流程
测量放线→基层处理→植筋、构造柱钢筋绑扎→排砖撂底→拌制砂浆→砌筑→校正→构造柱、圈梁及过梁钢筋绑扎→浇筑构造柱或圈梁砼→C25细石砼顶部塞缝并加防腐木楔→验收
2.2材料准备及要求
(1)砖:砌体砌筑质量等级为B级。与土壤接触的填充墙,图纸中未特别注明时采用MU20烧结普通砖(砖容重小于16KN/m)M10水泥砂浆砌筑;非与土壤接触的填充墙采用A3.5加气混凝土砌块(体积密度级别为B06),M5.0专用砂浆砌筑;砌块品种、规格、强度等级必须符合设计要求,规格一致,进场砌块应有产品合格证书和产品性能检测报告。
(2)水泥砂浆:水泥砂浆采用干拌砂浆,合格证、检测报告、配合比报告报送监理。
(3)砂浆种类:M5.0专用砂浆:
每一工作班每台搅拌机取样不得少于一组;每一楼层的每一分项工程取样不得少于一组;每一楼层或1万块同强度等级和品种的砂浆取样不少于一组;每组6块,砂浆材料、配比变动时,应重新制作试块。
(4)水:市政提供的适合饮用的自来水
(5)过梁、构造柱、圈梁、窗台压顶采用C20混凝土(人防区域C25)。
(6)其它材料:拉结钢筋等,提前作好防腐处理。植筋需做拉拔试验,合格后方可进行施工。
2.3施工方法
2.3.1基层清理
砖砌体在砌筑前应对墙基层进行清理,将地基垫层(或楼面)上的浮浆、灰尘清扫冲洗干净,并浇水使基层湿润。
2.3.2找平
砌筑前应在基础面或楼面上有高低之处进行找平,当砂浆厚度大于20mm时用C20级细石混凝土找平。
2.3.3墙体放线
砌体施工前,依据砌筑图放出第一皮砌块的轴线、砌体边线和洞口线,第一皮砖进行预排。按设计要求留置,不得错放、漏放。待施工放线完成后,经质量工程师验收合格后,方可进行墙体砌筑。
2.3.4排砖撂底(摆砖)在砌筑前应进行试摆砖,根据砌块的规格、施工部位的尺寸排砖撂底,做到组砌合理。
2.3.5砂浆:预拌砂浆强度等级为M5(按设计要求),稠度60-80mm,砌体用砂浆应随拌随用,一般应在2h内使用完。
2.3.6砌筑
(1)根据经验,施工时加气混凝土砌块的含水率控制在10~15%比较适宜,砌块含水深度以表层8~10mm为宜,表层含水深度可通过刀刮或敲上个小边观察规律,按经验判定。通常情况下在砌筑前24h浇水,浇水量应根据施工当时的季节和干湿温度情况决定,由表面湿润度控制。禁止直接使用饱含雨水或浇水过量的砌块。
(2)立皮数杆:砌体施工,应设置皮数杆,根据砌块规格和灰缝厚度在皮数杆上标明砌块的皮数及竖向构配件的位置和标高。
(3)挂垂直立线:在砖墙的两头、较长墙面的中间及构造柱、马牙槎的外角处等部位都应挂垂直立线,垂直立线必须要用线坠吊垂直,如果一道墙上有几根垂直立线时,这几根垂直立线都必须在同一垂直面上。
(4)盘角:砌砖时要先在转角处及砖墙的两头根据垂直立线进行盘角,每次盘角不要超过五层,新盘的角,及时进行吊、靠。如有偏差要及时修整。盘角时要仔细对照皮数杆上的砖皮数和标高,控制好灰缝厚度,使水平灰缝均匀一致。角盘好后要再复查一次,待平整和垂直全部符合要求后,再挂线砌墙。(5)挂线:砌一砖厚墙时宜采用外手挂线;砌筑一砖半墙必须双面挂线。如果墙面较长几个人共用一根通线,中间应设几个支点,挂线要拉紧,每层砖都要穿线看平,使水平缝均匀一致,平直通顺。每层砌筑时先砌两端再拉白线砌筑中间部分,并随砌随吊、靠,确保墙体垂直、平整。
(6)砌砖及放置水平拉墙筋:砌砖一定要跟线,“上跟线,下跟棱,左右相邻要对平”。砌体砌筑时应上下错缝、内外搭砌,每2皮为一循环。上下皮搭接长度为1/3砖或砌块长,搭接长度不应小于90mm。
(7)墙体与框架柱和剪力墙交接的部位,应植筋拉结筋,每间隔510mm设2根φ6螺纹钢筋,植筋深度max(10d,100mm),外伸长度不小于400mm,末端不需设180°弯钩,通长设置钢筋与留置钢筋搭接。钢筋的竖向移位不应超过100mm,且竖向移位每一构造柱不得超过2处。在砌筑至拉结筋位置时,拉结筋须理直调顺后压在水平缝内,再进行上层砌块的砌筑。
(8)砌体的每日砌筑高度宜控制在1.5m,冬期不超过1.2m。砌至接近梁、板底时应留一定空隙,待砌体变形稳定且应至少间隔7d后,再按照设计要求采用C25细石砼顶部塞缝并加防腐木楔(防腐木楔间隔600挤紧)。
(9)留槎:填充墙砌体转角处应同时砌筑,内外墙交接处必须留斜槎,斜槎长度不应小于墙体高度的2/3,斜槎必须平直、通顺。分段位置应在构造柱或门窗洞口处,隔墙与墙或柱不同时砌筑时,可留阳槎加预埋拉结筋。
2.4工艺流程及要求
1、工艺流程:测量放线→基层处理→植筋、构造柱钢筋绑扎→试摆砖→拌制砂浆→砌筑→校正→构造柱、圈梁及过梁钢筋绑扎→浇筑构造柱或圈梁砼→C25细石砼顶部塞缝并加防腐木楔或斜顶砖塞缝→验收
2、排砖要求:以建筑50线为基准统一排砖布局,要求先在底部砌一皮小砖,然后使用加气块砌筑大面,确保灰缝横平竖直,厚薄均匀,无透孔,砌体表面整洁。
3、砌筑时灰缝要做到横平竖直,上下层十字错缝,转角处应相互咬槎,砂浆要饱满,加气砼砌体水平、竖向灰缝厚度均为15mm,有拉结筋的水平灰缝厚度为25mm。砌筑一块砖铺一次灰,每层砌块均应带线砌筑。灰缝砂浆饱满度不应小于90%。砌筑时铺灰长度不得超过750mm,气温达到30℃以上时不超过500mm。竖向缝要求必须使用护浆卡灌缝,捣实砂浆,完成后应使用专用工具进行随砌随勾缝灰缝宜内凹2㎜~3㎜。

4、植筋:墙体与框架柱和剪力墙交接的部位,应植筋拉结筋,每间隔510mm设2根φ6螺纹钢筋,植筋深度max(10d,100mm),外伸长度不小于400mm,末端不需设180°弯钩,通长设置钢筋与留置钢筋搭接。钢筋的竖向移位不应超过100mm,且竖向移位每一构造柱不得超过2处。



种植φ6钢筋的钻孔直径为8mm,钻杆长度150mm,钻孔深度大于100mm;要求一次植筋五到六层,植筋3天后进行抗拨力试验,φ6抗拨力试验值大于等于8KN。先进行拉拔试验,后开始砌筑。
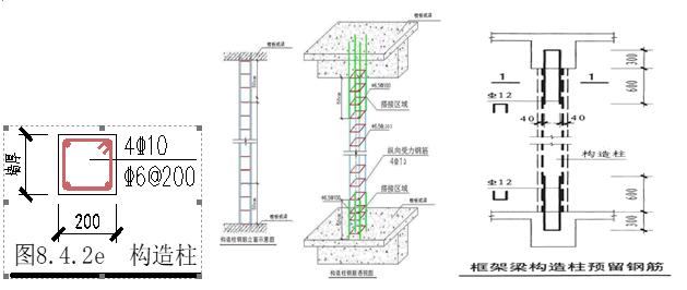
5、构造柱:填充墙长度超过5m或层高的2倍时,以及填充墙端头、L、T、十字型转角处(尤其是楼、电梯间墙的四角处),均设构造柱;具体位置详见构造柱布置图;
构造柱截面尺寸为:180×墙厚或墙厚×墙厚、300×墙厚,在主体结构上构造柱的柱脚准确部位插筋、柱顶准确部位预先植筋,上下钢筋采用绑扎连接,钢筋直径10,搭接长度为35d,箍筋设置:φ6@200,箍筋在楼层上下各500处和搭接范围内@100,配筋见大样。先砌墙,后浇柱,构造柱的混凝土强度等级采用C20(人防区域C25)。未特别注明构造柱如下图所示。

根据规范要求:构造柱与墙体连接应砌成马牙槎,马牙槎凹凸尺寸不宜小于60mm,高度不应超过300mm,砌块下口切60×60斜口,以便混凝土顺利浇筑。马牙槎应先退后进,对称砌筑;马牙槎尺寸偏差每一构造柱不应超过2处;构造柱边贴3mm厚双面胶,防止漏浆;构造柱一般采用漏斗型模板浇筑。马牙槎应先退后进,对称砌筑;马牙槎尺寸偏差每一构造柱不应超过2处;构造柱一般采用漏斗型模板浇筑。

6、圈梁或水平系梁的构造要求:
水平系梁:墙高超过4m时,墙体半高处应设置与柱连接且沿墙全长贯通的钢筋混凝土水平系梁。

圈梁:电梯井圈梁由地下室开始,首档在地下室建筑完成面高度以上1.5m,后续间隔2.5m依次向上施工,末档在顶板一下500mm。

7、门窗过梁:在各层门窗洞顶标高处,凡无梁(KL及L)时,均应设圈梁一道,圈梁兼作过梁时,其截面及配筋均取圈梁及过梁之大值。当门或窗过梁与梁底较近无法安装时,可采用梁下挂板的做法,详见结构总说明示意图8.4.3所示。门窗过梁采用预制过梁或现浇过梁,现浇过梁采用4Φ10钢筋,箍筋φ8@200,每边嵌入窗间墙内不小于250mm。

8、窗台压顶构造:窗台部位设置钢筋砼压顶扁梁,砼标号为C20,压顶扁梁每边嵌入窗间墙内不小于240mm,提前留槽并清理干净,需由内向外找坡,坡度≥10%,业主要求压顶不允许后浇筑,砌体砌筑至窗台压顶高度后应待压顶砼浇筑完成后或安放预制过梁后再继续向上砌筑施工。如下图所示。

9、在砌筑到梁、板底部时,至少间隔7天待下部砖墙沉实后方可进行空隙砌筑;后砌隔墙顶部空隙高度在3~5cm时,采用C25细石砼顶部塞缝并加防腐木楔,与顶板或梁顶紧;空隙高度在5-10cm以上采用斜顶砖砌筑;空隙高度在10cm以上的,加砌一层小砖后用斜顶砖砌筑,详下图:


10、墙垛:填充墙墙垛尺寸小于250mm时,做法详图8.4.7。

门垛:入户门采用专用预制混凝土块补槎,门边两侧上下200mm内均应设置水泥预制块,中间水泥预制块间距不得超过600mm;窗户两侧上下200mm内均应设置水泥预制块,中间水泥预制块间距不得超过300mm。便于门窗的安装固定,保证门窗的稳定性;其他室内门采用小砖组砌;其他室内门窗采用小砖组砌。

留槎:填充墙砌体转角处应同时砌筑,内外墙交接处必须留斜槎,斜槎长度不应小于墙体高度的2/3,斜槎必须平直、通顺。分段位置应在构造柱或门窗洞口处,隔墙与墙或柱不同时砌筑时,可留阳槎加预埋拉结筋。

11、水电安装专业要与土建专业做好交接,通风管道、配电箱、线盒、线管等预留洞口、管道,砌筑时要与土建专业做好交接,派专人预留和预埋准确,严禁在墙体上交叉埋设和开凿水平槽;竖向槽须在砂浆强度达到设计要求后,用机械开凿,且在粉刷前,加贴钢丝网片等抗裂材料;风井应随砌筑随抹灰。
12、其他施工注意事项:
(1)加气砼砌块墙上不得留设脚手眼,要连续砌筑,若必须临时间断时,砌成斜搓,或在门窗洞口侧边间断,不得留设成马牙槎、直槎。
(2)在砌筑至拉结筋位置时,拉结筋须理直调顺后压在水平灰缝内,再进行上层砌块的砌筑。
(3)砂浆终凝前要对砌体表面平整度、垂直度校正。
(4)砌块不得随意切断,必须切断时,用无齿锯切割,确保砌块表面平整。
(5)砌筑用砂浆应随拌随用,一般应在2h内使用完。
(6)砌体的每日砌筑高度宜控制在1.5m,冬期不超过1.2m。
(7)宽度≥300mm的洞口需加设过梁,并且伸入每边墙体的长度应不小于250mm。防止上部墙体荷载施加在电箱上,导致电箱变形。

12、建筑总说明中墙体工程有关规定:
(1)墙身防潮层位于标高-0.06m处,采用20厚1:2.5水泥砂浆加5%防水剂(位置参见下图);如此位置有结构的砼梁或砼墙,防潮层可不设;如室内地面不在同一标高时按下图所示部位增设竖向防潮层。如填土一侧为室外,应在外墙上刷3厚高聚物改性沥青防水涂料。

(2)平面图中注明的轻质隔墙均采用加气砼砌块,构造做法参见省标《蒸压加气砼砌块建筑构造》L10J125。水暖井墙体若是砌体墙,则须为实心蒸压粉煤灰砖。
(3)卫生间周边墙体下部除门洞口外均做等墙厚砼上翻沿(砼标号同楼板),距离与之相邻的厅房楼板结构面250mm高,并与结构楼板一起浇筑。做法参见L10J125。相邻两个卫生间中间墙体也需一并浇筑,不允许砌筑实心小砖。

(4)所有防火墙与楼板、墙体、梁、柱和其他构件交接处均应用不燃烧材料做好严密封堵,满足防火要求。
(5)砖砌门窗墙垛平面图中未特殊注明处,皆为100宽;当其侧边为钢筋混凝土墙或柱时(结构未配筋),门窗垛用同标号的素混凝土与墙或柱同时浇筑。
(6)水暖井、电井门槛底部整体用实心小砖砌筑,门槛往上用加气块砌筑;
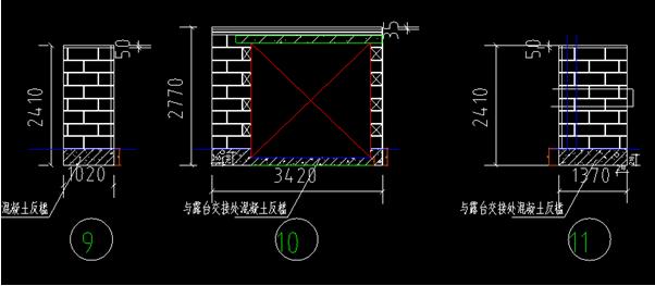
(7)客厅与开敞阳台交接处,均需做一圈混凝土反坎,统一高度300mm。如下图所示。

三、质量保证措施
3.1质量保证措施
(1)本工程所选用的材料均需提供样品,报经业主监理审批后方可进行批量订购。凡专业公司提供的材料必须进行报验,由项目总工认可后方可进场。
(2)材料选定后,分项工程大面积施工前进行样板作业。经过业主、监理书面认可后,方可大面积进行施工。
3.2质量标准

构造柱尺寸允许偏差

填充墙砌体一般尺寸允许偏差
四、安全文明施工措施
(1)材料堆放
材料保管执行公司的仓库管理制度,做到分门别类。现场材料堆放按施工平面图指定的位置堆放。砂石材料要堆成方,底脚边用边清;砌体归类成垛,堆放整齐,碎砖料随用随清,无底脚散料;易燃易爆及有毒物品专库存放,进场材料按公司“材料、产品标识规定”进行挂牌标识和文字记录标识,保证不混用未检定产品和不合格材料。
(2)现场垃圾处理
工地现场的建筑垃圾做到及时清理,及时运走。生活区配置垃圾箱,一切垃圾均应入箱。施工完必须做到操作落手清,随做随清,物尽其用。在施工作业时,应有防止尘土飞扬、砂浆洒露、污水外流、车辆沾带泥土运行等防止措施。
五、环境保护措施
(1)施工现场应建立相应有效的环境自我保护体系和信息网络,并经常运转;现场应有烟尘、噪声及环保管理工作的自检记录;
(2)水泥和其它易飞扬的细颗粒散体材料,应安排在室内存放或严密遮盖,运输时防止遗洒飞扬,卸运时应采取有效措施,以减少扬尘;
(3)现场砂浆搅拌机前台及运输车清洗处应设置沉淀池,废水经沉淀后方可排入市政污水管线或回收用于洒水降尘;
(4)搅拌机四周、拌料处及施工现场内无废弃砂浆和混凝土。运输道
路和操作面落地料及时清用。砂浆、混凝土倒运时,应用容器或铺垫板。
(5)在现场出口设置钢筋擦泥篦子和车辆冲洗装置、洗轮设备等,防止车辆、机器出场时将泥泞和废物遗洒在路上,由现场环保人员负责检查;同时,任何进出车辆应有防止遗洒的覆盖措施。
(6)施工现场搭设封闭式临时专用垃圾道,严禁随意凌空抛撒。施工垃圾应及时清运,适量洒水,控制扬尘。
(7)施工现场内的厕所设专人保洁,按规定采取冲水措施,及时打药,墙壁、屋顶要严密,门窗要齐全,并保证良好通风。
(8)建筑楼层上每二层设小便桶,有专人管理,每日清理一次。
(9)施工垃圾经分检后及时外运。
(10)施工现场在大风、干燥季节,设专人洒水,以防现场尘土飞扬。