
启美高端设计研究院 设计总监:赵春伟
所在公司:启美高端设计研究院 设计总监:赵春伟
人生感悟:心存感激就会有爱,心中有爱就有一切……
设计理念:崇尚自然 追求人对生活真谛的享受!
设计感悟:设计的本质是情感 音乐直接表达情感 情感是生活的灵魂!
个人简介:
赵春伟毕业于哈林大,国家注册室内高级设计师(证书编号:ZN7690000129020)
2004年荣获广西“万昌.南湖景园”杯家装设计精英挑战赛优秀奖
2007年4月成为中国商业联合会陈列设计师
2008年8月“万昌上海公馆”室内设计大赛优秀设计师
2009年6月“东鹏杯”室内设计大赛优秀奖
2009年11月荣获中国室内建筑装饰协会设计大赛优秀奖设计师,中国建筑装饰协会室内设计分协会会员,中国建筑装饰协会高级住宅室内设计师,装饰配饰多次得到国内资深设计大师的好评!
2010年获广西室内设计明星大赛十大明星室内设计师
2010年获南宁家居行业十大金牌设计师
2011年1月获广西十大精英锋范设计师奖,同时任锋范社会副会长
2011年或“大嘉汇杯”广西首届实景室内设计精英邀请赛一等奖
2015年9月赴英国爱丁堡游学荣获(SC COLLECTIVE DESIGN ACADEMY international awarded to Chunwei Zhao for the succesful completion of the Design Master Class)
2016年赴台湾周易老师、仝育设计机构学习
2017年中国广西女性设计师年度人物评选年度网络人气排行榜(入围奖)
2017年荣获中国(广西)室内设计行业年度杰出青年设计师
2018年荣获广州设计周举办IFI国际室内设计组织认证中国4040中国(广西)设计杰出青年设计师

山渐青.金澜湾设计效果图(餐厅)
设计特点:与家具的风格设计相融,从新古典、民族风、现代简约、北欧复古乃至中国元素的现代风格均有其独特的理解与原创,其作品大气不失精致,怀旧而不失流行。品味不凡正如其人,为生活而设计、为艺术而创作、为目标而执着。追求一种简单舒适快乐。

山渐青.金澜湾设计效果图(过道)
主要案例 :住宅类:盛天香墅别墅、荣和公园墅别墅、一品尊府别墅、嘉和城别墅、八桂绿
城别墅、江滨别墅、江山御景别墅、盛天源墅、山渐青别墅、荣和尊府等。
商业空间:华润大厦京基集团办公室、龙光国际办公室、国际金融中心办公室、伊丽莎白整形美容院、柳州*草烟**旗舰店体验中心、巴马丽琅水博物馆、新机场品菽概念书屋等。

山渐青.金澜湾设计效果图(客厅)
项目名称:广西南宁.山渐青.金澜湾
设计风格:轻奢北欧与东方文化的碰撞
项目面积:330平方
设计单位:广西启美装饰设计工程有限公司(硬装+软装)
项目地点;广西.南宁
设计总监:赵春伟(总设计师)
设计团队:李宇林、覃武

山渐青.金澜湾设计效果图(客厅+茶室)
设计说明:本案将北欧的自然美学融入到东方的文化里,既有挑战性,又是充满设计趣味的探索。力求用最少的元素营造丰富而富有品位的室内家居环境,用最简单的形式去营造安然,静谧与祥和的氛围。
室内由天然材料组成:柚木做旧索色工艺、素色水泥砖、墙面素色艺术涂料,通过素雅静美的感官营造极简禅宗美学,大面积的客厅落地门,融合户外纯粹而唯美的湖水风光、建筑、让整个设计呈现独特气质,所有家具及配饰材质的选择始终遵循着自然、耐用以及历久弥新的原则,材质点缀少许哑光铜件,温暖轻奢,营造出亲密而又温情的氛围,干净而优雅的空间格调。

山渐青.金澜湾设计效果图(卧室)

山渐青.金澜湾设计效果图(卧室)

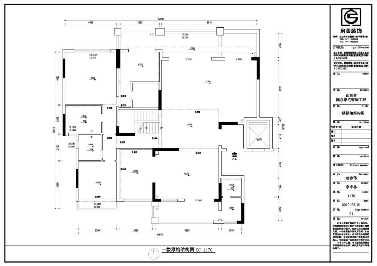
山渐青.金澜湾设计平面规划图

山渐青.金澜湾设计平面规划图

山渐青.金澜湾设计平面规划图

山渐青.金澜湾设计平面规划图

山渐青.金澜湾设计平面规划图