项目标签
设计公司:Sixseven Studio
位置: 泰国
类型: 建筑
材料: 石材 木材 陶瓷 瓷砖 混凝土 玻璃
标签: 改造 曼谷
分类: Spa 休闲娱乐 商业建筑 温泉浴场
#分享农村建筑那些事##美丽乡村##新农村自建房#
来自曼谷的设计事务所Sixseven Studio (67s)日前完成了汤の森温泉和水疗中心的设计――一座全新的城市疗养地,同时提供日式温泉和按摩体验。
Bangkok-based design Sixseven Studio (67s) has completed a new urban retreat; Yunomori Onsen and Spa | Sathorn that offers authentic experiences for both Japanese onsen and Thai massage.
▼建筑外观,exterior view © W Workspace

建筑坐落在曼谷市中心的Sathorn区域,由一座翻新后的旧公寓楼和新建筑组成,分别用作温泉区域和水疗设施。衔接新旧建筑的想法受到日本陶器修补技艺“Kintsugi”(金継ぎ)的启发,将当地材料与日式的极简主义美学进行了融合。
项目的主要挑战在与建筑位于曼谷CBD中心的一个狭窄地块,四周被高楼环绕。对此,设计团队提出的方案是通过创造庭院来为建筑引入自然光线。
▼整体轴测,axon © Sixseven Studio

Located in the middle of Bangkok city in Sathorn area, the building consists of 2 parts, which are the renovated old apartment building and the new building, separating the functions of the onsen and spa treatment facilities. The concept of bridging the old building with the new one is inspired by Kintsugi, a Japanese art of repairing broken pottery. The attempt to reflect the concept results in sublime material selections, fusing Japanese minimalist aesthetic with local materials.
The major challenge of this project is the narrow plot in the heart of Bangkok’s CBD. Despite being surrounded by dense tall buildings, 67s offers a design solution by creating a courtyard that allows natural light.
▼连接新旧建筑的庭院,courtyard that bridges the old building with the new © W Workspace


走进位于2层的大厅,迎接客人们的是一道贯穿整个中庭的竹肌理混凝土墙。内部空间的设计旨在与喧嚣的外部世界相隔离。走廊空间的地面以薄木板铺设,并搭配以隐蔽式照明,营造出宁静和放松的氛围。设计团队有意地将大厅设置在葱郁的花园庭院旁边,为客人带来一个小小的惊喜。庭院在连接两座建筑的同时也充当了温泉和按摩设施的公共区域。
Guests who enter the lobby on the 2nd floor are greeted with the bamboo-formed concrete wall that runs through the whole atrium. The interior design intends to cut off the chaotic outside world. The hallway’s atmosphere fosters peace and relaxation, thanks to the wood veneer flooring and illuminated with concealed light. The designer intentionally puts the lobby next to the lush garden courtyard to create a little surprise for the guests. The courtyard also acts as a buffer area between the two buildings, a common space for both onsen and massage facilities.
▼大厅和接待区域,lobby & reception © W Workspace


▼竹肌理混凝土墙,the bamboo-formed concrete wall © W Workspace

3层和4层的温泉区域设计更加简洁,使用了浅色调的材料,统一的纹理与天然板岩和间接照明形成和谐的搭配。随着客人脚步的不断深入,空间给人的感觉也将从粗犷变得愈发温馨和放松。
The interior design of the onsen on the 3rd and 4th floor is more simplified, using lighter shades of materials, the uniform rhythm of surfaces, along with natural slate stone and indirect light source. The idea is to gradually change the visitor’s perception of the space, from rough to relaxing, as the guests walk through the space.
▼三层温泉区,onsen area on the 3rd floor © W Workspace



▼四层温泉区,onsen area on the 4th floor © W Workspace


▼蒸汽房,steam room © W Workspace


▼桑拿房,sauna room © W Workspace

▼盥洗区,rest room © W Workspace

水疗室拥有更强的私密性,交错的木质屏风与亚克力板营造出类似于日式障子的朦胧光线。为了与室内氛围保持一致,设计团队仅选用了浅色调的木制家具,包括米色、象牙色和灰色的软装元素。
The treatment rooms offer more intimate sensibility. An intricate wooden screen with a diffusing acrylic sheet resembles an illuminated sho-ji screen. To ensure the harmony of the atmosphere, 67s uses only light tone wood furniture with neutral color soft finishing, from beige to ivory and gray.
▼水疗区入口,entrance to the treatment rooms © W Workspace

▼按摩室,massage room © W Workspace

▼等候区,waiting area © W Workspace

▼休息区,seating area © W Workspace

▼走廊,corridor © W Workspace

▼更衣室,locker room © W Workspace

首层的“Happy Rice”餐厅与花园相邻,设有绿树环绕的座位区。开放式的吧台为客人提供清淡的饮食和日式冷饮。
On the 1st floor, a restaurant “Happy Rice” sits next to the garden with a seating area surrounded by greenery. An open bar counter which serves light meals and “kakigori” dessert for customers is cladded with Japanese-style chiseled wood texture.
▼餐厅,restaurant © W Workspace


▼户外座位,outdoor seating area © W Workspace

来到屋顶的酒吧,竹子的元素再次出现。这一次,它被用于覆盖整个天花板,为室内带来跃动且令人愉悦的光影。白色的大理石马赛克地砖从破碎的瓷器中汲取灵感,作为设计者惯于使用的经典元素,使人再度想起“Kintsugi”的艺术。
As the guests are approaching the rooftop bar, the bamboo element reappears again. This time it was used to cover the entire ceiling, casting a pleasant effect of dancing light and shadow. The white marble mosaic floor, inspired by the broken ceramic, is the exemplary element that the designer uses to remind us of the Kintsugi art.
▼顶层酒吧区,bar lounge on the top level © W Workspace


▼酒吧露台,outdoor terrace © W Workspace

▼吧台夜景,bar counter night view © W Workspace

▼庭院夜景,courtyard by night © W Workspace

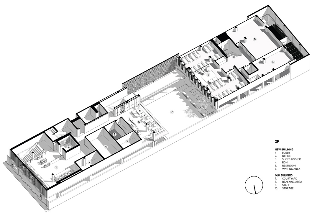
▼2层轴测,axon 2F © Sixseven Studio

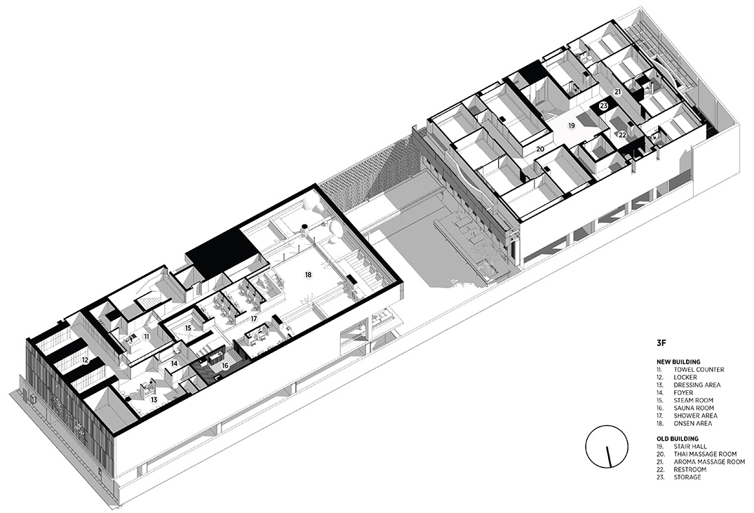
▼3层轴测,axon 3F © Sixseven Studio

▼剖面轴测,axon section © Sixseven Studio

Project name: Yunomori Onsen and Spa | Sathorn BranchDesigner: Architect | Sixseven StudioInterior designer | Sixseven StudioDesign year & Completion Year: 2018-2020Lead designer: Pakorn Rattanasuteeranon, Kornkanok MeksilpTeam: Pitiwat Jungaekkawit, Narumon PandungParadorn RukskulProject location: Sathorn soi 10, BangkokGross Built Area (square meters): 3,500Photo credits: W WorkspacePartners: Landscape architect | Tossapon ArunsuraponmateeLighting designer | Atelier ATClients: Onsen Retreat and Spa co.,ltd.