三亚市崖州湾是陆海统筹联动“南海”的重要支点、融入“一带一路”繁荣“南疆”重要前沿、热带资源承载“南繁”国家农业科技的关键核心。2017年11月,海南省委、省政府对三亚市崖州湾的发展作出重要指示:“崖州区域应作为三亚今后发展以深海科技为重心的高科技板块”;“紧抓深海科技和创意创新两个重点,在崖州湾搭建深海科技创新平台”。
崖城规划范围
崖州湾规划区范围(依据多规合一开发边界)东起南山,西至梅山,北靠马鞍岭,南临南海海域,规划范围约69.25平方公里。本次规划在全区346平方公里内考虑生态保育、全域旅游、城乡一体等相应的规划内容。

崖城总体定位
崖州湾总体发展定位确定为“三城、三地、一古镇”。“三城”指深海科技城、南繁科技城和大学城;“三地”指国家级的南海文化圣地、国家级的南海渔业基地和新兴海洋产业基地;“一古镇”指中国历史文化名镇;并承担区域港口物流等城市服务职能,实现港城融合、产城融合、城乡融合发展。

小编分析总结
得益于国家发布的建设海南自由贸易港的政策下,三亚崖城得到政府的大力支持和发展,结合海南海洋特色资源,建设深海高科技创新板块。三亚崖城未来发展,值得期待!!!
那么跟小编来了解了解在三亚崖城的国企项目,崖城共有三个国企项目,分别是保利崖州湾,保利浅海和中交绿城高福小镇。保利崖州湾项目地理位置优越,在崖城政府斜对面,周边配套完善,均价17000元/平米,价格优惠;唯一不足是周边有农贸市场,较为嘈杂。中交绿城高福小镇在红塘湾片区,均价28000元/平米,价格略贵。保利浅海位于三亚崖州湾科技城创意路与裕民路交汇处,以后可享有深海科技发展带来的福利,均价20000元/平米,价格合适,综合各方分析,是值得投资的国企项目。
保利浅海项目好不好,有哪些优缺点呢,下面就由小编给大家多方面分析分析!
保利浅海由保利地产投资打造,在三亚落成的第六个项目。项目位于三亚崖州湾科技城创意路与裕民路交汇处(梦嘟嘟幼儿园旁),楼体Y字形结构和板式结构,可以远观西侧海景,户型相互通透对流。户型都是坐北朝南,生活阳台均为朝南向。
一、项目简介:
开发商:三亚保华房地产开发有限公司
总建筑面积:总建筑面积约9万㎡
容 积 率:2.0
绿 化 率:40%
产权年限:70年产权
总户数:总规划户数为816户
梯户数:两梯三户、两梯四户、两梯六户
楼栋总数:13栋楼、车位998个,其中地下882。
楼层总高:1#、10#、12#楼为14层;2#、5#、6#、7#、8#、9#、11#、15#为17层;3#为18层;13#16层
销售价格:20000元/平米
项目物业:保利物业
二、项目规划
保利浅海位于三亚崖州湾科技城创意路与裕民路交汇处(梦嘟嘟幼儿园旁),总占地约68亩,总建筑面积12万㎡。项目分两期开发,一期为住宅地块,占地面积4.5万平方米,建筑面积12万平方米,容积率2.0,绿地率40%,由13栋高层组成,车位比例超1:1,商业面积1300㎡。项目主推户型建筑面积为103-138㎡三-四房,户型坐北朝南,采光通透,均为南向生活阳台。

保利浅海规划图
项目楼栋高低错落布置,形成丰富的天际线。Y字形结构和板式结构,可以极大化远观西侧海景,户型可以实现通透对流,提高视野的开阔度。所有户型都是坐北朝南,生活阳台全部朝南。
三、项目区位:
保利浅海地处崖州湾科技城内大学城板块位置,周边教育资源丰富、公共服务配套完善,交通路网四通八达,居住环境舒适便捷。项目距离崖州高铁站10公里,距离凤凰机场30公里,两大港口:南山货运港离3.3公里,渔港离项目14公里。

保利浅海区位图
从区域板块来看,崖州区总体发展定位确定为“三城、三地、一古镇”。“三城”指深海科技城、南繁科技城和大学城;“三地”指南海文化圣地、南海渔业基地和新兴海洋产业基地;“一古镇”指中国历史文化名镇;并承担区域港口物流等城市服务职能,实现港城融合、产城融合、城乡融合发展。

崖州湾科技城规划图
崖州湾科技城规划介绍:
是海南自贸区建设先行区域,规划面积69平方公里,规划人口25万人,相当于三亚目前三分之一的人口。重点建设南繁科技城、深海科技城、大学城。
【南繁科技城】建成中国的“种业硅谷”, 全球动植物种质资源的引进中转基地,规划建设6000亩。
【深海科技城】以深海科技城为载体发展深海科技产业,包括深海科技、海洋产业和现代服务,目前由中船重工在开发建设。
【大学城】崖州湾科技城中建设的大学院校主要以深海和南繁科研方向为主,目前已有一批院校集聚。
四、项目园林:
项目设计六大园林景观,设计了不同的功能和景观空间,集休闲、健身、娱乐功能为一体。

保利浅海楼栋外观效果图
五、项目配套
内部配套:
项目内部配套有1800㎡六班幼儿园、卫生室,文化活动室、老年人服务站、社区服务站、1300㎡商业。

保利浅海泳池效果图
周边配套:
1、教育配套:梦嘟嘟幼儿园,寰岛实验小学,三亚南开学校,上海交通大学(待建);
2、医疗配套:国康医院、崖城中心医院;
3、生活配套:超市:乐购超市、人人家超市、佳美购物广场等;农贸市场:崖州湾科技城农贸市场、古城菜市场、南滨菜市场、水南蔬菜批发市场、崖州中心渔港;
4、公园配套:六大公园:通海公园、滨海公园、南繁公园、滨河公园、观海公园(规划中);
5、酒店配套:希尔顿格芮精选酒店、科宝庄园大酒店;
6、娱乐及景点资源方面:鲸世界·科技海洋馆、南山寺、大小洞天、崖州古城、崖州湾、天涯海角、西岛、兰花大世界等。
六、项目产品介绍:
保利浅海主推建筑面积为103-138平三至四房户型,户型方正,坐北朝南,均为南向生活阳台,精装交付,70年产权,均价20000元/平米。
样板间鉴赏:

阳台-样板间

餐厅-样板间

客厅-样板间

浴室-样板间

主卧-样板间

次卧=样板间

书房-样板间
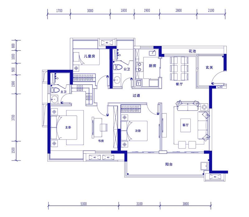
户型图鉴赏:

A1户型建筑面积123㎡三房两厅两卫

B1户型建筑面积105㎡三房两厅两卫

D1户型建筑面积121㎡四房两厅两卫

E1户型建筑面积103㎡三房两厅两卫

F1户型建筑面积106㎡三房两厅两卫

H1户型建筑面积138㎡四房两厅两卫
保利浅海值得买的十个原因:
1、区域价值:享海南自贸区建设先行区规划配套!
2、交通价值:水陆空三维一体的交通模式,出行便捷!
3、品牌价值:央企保利,世界500强!
4、物业价值:保利物业,中国三大物业之一,致力为每个社区打造亲情和院!
5、定位价值:产业发展与人才聚集同频共振,承接区域居住需求,造滨海都会生活样板!
6、规划价值:2.0低容低密,滨海舒适人居,打造居住舒适的浅海作品!
7、配套价值:于内,五大服务生活体系全龄生活配套;于外,崖州新城与老城便捷配套!
8、建筑价值:Y字形与板式结构结合,观景视野开阔,采光充足,对流通透!
9、景观价值:海景资源+六大园林景观,设计景观空间和功能!
10、产品价值:建筑面积103-138平瞰海洋房产品,均为南向生活阳台!
小编寄语:保利浅海项目的优点是大开发商央企保利投资建造,质量有保证;项目处于创意新城区域,楼盘均为朝向生活阳台,海景房,视野宽广;社区配套完善,交通便捷,能满足业主的日常所需。缺点是在售房源为期房,不能即买即住;小户型缺乏,大型商业设施还在建,周边设施有待完善。