没想到现在还有这种装修格调,感觉不错。当初还是在一次饭局上,我的大学老师推荐给我的设计师,几个月装修下来,沟通还不错,效果比设计的时候还好看。
一波雨季过后,南昌即将迎来春暖花开、日照舒爽的好时节,最适宜装修的日子,亲们,可要记得把握好了哦,在南昌,100平米房子装修到底要花多少钱呢?怎样装,才能将品质、舒适、温馨、大气、格调搬回家?来和设计师聊一聊吧。
方案设计:龚颜宇
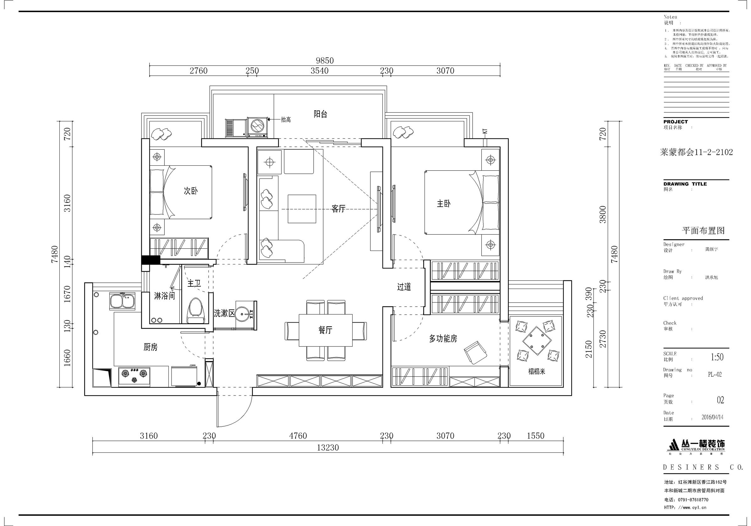
楼盘地址:莱蒙都会11-2-210X室
户型:三房
面积:105平方米
风格:新中式
公司造价:6.5万(不含主材)
主材:浩尔宝呼吸涂料 德莱宝集成吊顶 新中源瓷砖
项目:1.水电;2.石材铺贴、墙砖铺贴、防水防潮处理;3.灯具安装;4.木制作及油漆等

客厅

卧室

书房

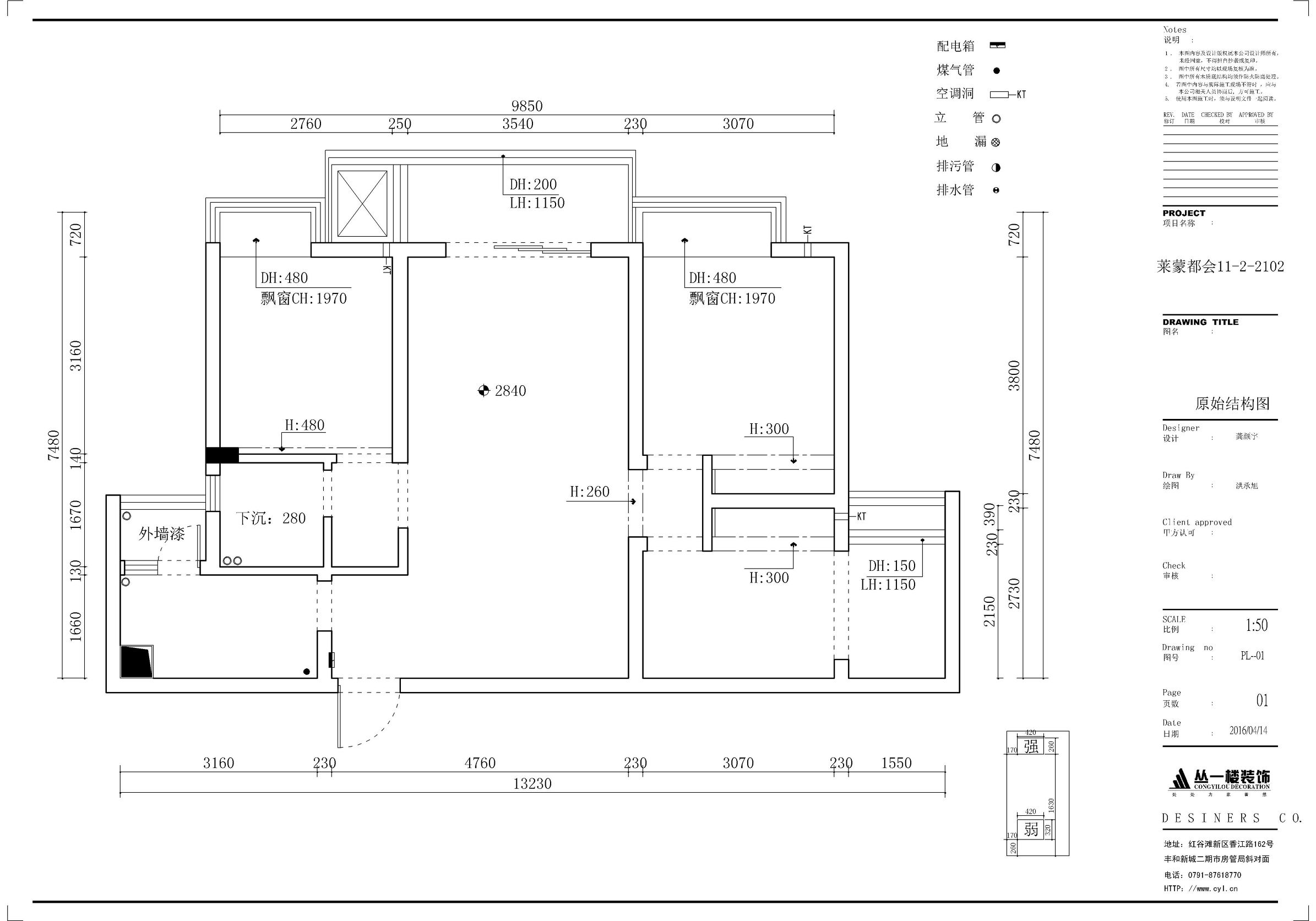
原始结构图

平面布置图
所展示工地为正在施工的工地,需要看实景工地的亲,欢迎咨询,莱蒙都会更多户型、不同风格工地正在火热开工中!
南昌各大楼盘近期交房(红谷世纪花园、联发江岸汇景、莱蒙都会、海域香廷、保利金香槟、新力雅园、中骏蓝湾、中央香榭、众森红谷一品、路通沁园、绿地国际博览城、万达旅游城....)的业主,赶紧GET起来吧!
-------我是华丽丽的分隔线--------