本文只是介绍各区精品房源,不代表房源开放申请。
申请相关的问题加小编gzfzixun gzfzixun gzfzixun
怡景名苑房源情况

怡景名苑位于大兴区亦庄镇
建筑面积:
小套型:约41㎡(一居)
大套型:约57㎡(二居)
租金标准:
33元/建筑平方米·月。
价格说明:
租金标准中包含物业费,不包含供暖费、水费、电费、燃气费、电 话费、上网费、有线电视初装费及收视费等。
供暖方式:
小区集中供暖,30元/建筑平方米·供暖季。
配租对象
(一)参加配租的家庭应推选一名符合条件的家庭成员作为申请人,申请人需满足以下条件:
1、本市户籍申请人:申请人家庭成员在本市均无住房;申请人具有大兴区户籍或在大兴区缴纳社保。
2、非本市户籍申请人:年龄不超过45周岁(含),申请人家庭成员在本市均无住房;申请人家庭按照住房限购政策,具有购房资格;申请人须在大兴区缴纳社保。
(二)每个家庭只能配租一套公租房,已经签约配租、配售其他保障房的家庭,不得参加此次配租。
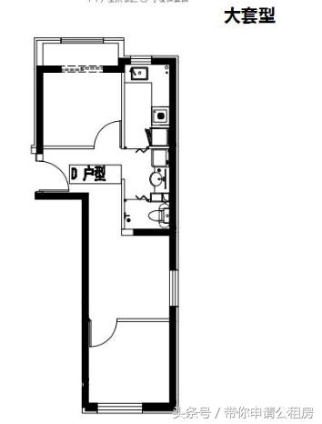
公租房房源详细信息1部分户型图

① 一居

② 两居
项目规划图

内部情况



项目配套情况
周边交通:
公交599路(三海子东路站),地铁亦庄线(亦庄桥站)。
周边公共设施:
教育资源:
大兴区鹿圈小学、亦庄中心小学、亦庄中学、北京二中亦庄分校、中国传媒大学附属中学、大兴区亦庄第六幼儿园;
休闲购物:
城乡118生活汇,物美超市(南海家园店)、世纪华联超市、京客隆超市、亦庄创意生活广场
医疗保健:
北京市大兴区亦庄医院、国家康复辅具研究中心附属康复医院、大兴区妇幼保健院、亦庄医院南院、鹿圈卫生院
生活娱乐:南海子公园、国际企业文化园、博大公园。
项目位置
