1 、基站子系统各系统原理
( 1 )无线子系统
( 2 )电源系统
( 3 )各配套系统
( 4 )防雷接地系统
2 、目前在网设备简介
( 1 )无线主设备
( 2 )电源系统
( 3 )动环监控
3 、机房工艺及勘查注意事项
GSM 基站子系统
移动通信的定义
移动通信是指通信双方或至少有一方在运动中所进行的信息交换,如移动体(车辆、船舶、飞行物或行人)与固定体之间,移动体与移动体之间的通信,均属于移动通信范畴。
移动通信的发展目标
- 追求更高的频率利用率
- 提供更大的用户容量
- 提供个性化、智能化的服务
- 提供更高速率的新业务
- 降低对人体的危害性
- 提供更高的通信质量
GSM 无线网络结构


中国移动 GSM 无线频段
- 中国移动 GSM900 使用无线频段:上行( MS→BTS ): 890-909MHZ下行( BTS→MS ): 935-954MHZ。双工间隔: 45MHz 载频间隔: 20 KHz
- 考虑到与其它数字移动网的保护频带(> 40 kHz )的要求,中国移动 90 M的可用的频点 95 个,可使用其中的 94 个频点,第 95 频点作为隔离频点。
基站
移动系统中的固定站台,用来和移动台进行无线通信。基站建在覆盖区域中的中央和边缘,包含收发信机和架在塔上的天线。

基站收发信机 -BTS
- 基站收发信台( BTS )包括基带单元、载频单元和控制单元三部分,属于基站系统的无线部分,是由基站控制器控制,服务于某个小区的无线收发信设备,完成 BSC与无线信道之间的转换,实现 BTS 与 MS 之间通过空中接口的无线传输及相关的控制功能。
载频的概念
- 载频是无线网基站的一个功能模块,主要负责调制和解调, 将信号调制到预先配置好的频点上单载频可承载的同时通话用户数不超过 8 个无线网基站配置的载频数越多,可承载的用户数越多,可承载的话务量越大。在网络配置时,应根据对网络话务量的预测,进行无线网载频数的配置。由于频点是有限的,为保证同频 / 邻频干扰比,单扇区的载频配置一般不大于 12
合路器、耦合器、双工器的概念
- 合路器 的作用是将几个发射机(载频功放)的发射合成一路, 以便连接天线。单载波的小区可以不经合路器的。耦合器将接收到的无线信号分为几路给不同的接收机,用于接收端。
- 双工器是两个不同频率的滤波器,主要是分离发射和接收信号,将发射和接收用一根天线来实现。我们所定义的基站收发信机的合路器包含了合路、耦合或双工器的组合功能。
合路器的分类 1
宽带合路器
- 插损较大,成本相对较低;现网使用的有西门子的 DUAMCO, FDUAMCO,爱立信的 CDU-G,华为的 DCOM,阿尔卡特的 ANC。
空腔合路器
- 插损相对较小,成本高。现网使用的有西门子的 FI COM,华为的 DFCU,爱立信的CDUF 。
合路器的分类 2
4 : 2 合路器能实现将 4 个载频合路到 1 付天线(双极化 1 付,单极化 2付)进行收发。
- 现网使用的有西门子的 DUAMCO 4 : 2 , FDUAMCO,爱立信的 CDU-G,华为的 DCOM,阿尔卡特的 ANC。
8 : 2 合路器能实现将 8 个载频合路到 1 付天线(双极化 1 付,单极化 2付)进行收发。
- 现网使用的有西门子的 FI COM,华为的 DFCU,爱立信的CDUF 。
机柜举例

连接举例

天线基础知识
1 、天线的基本概念
2 、天线的主要性能指标
3 、天线的选择及安装
4 、基站天馈系统




天线方向性
- 天线的方向性是指天线向一定方向辐射电磁波的能力。对于接收天线而言,方向性表示天线对不同方向传来的电波所具有的接收能力。天线的方向性的特性曲线通常用方向图来表示。方向图可用来说明天线在空间各个方向上所具有的发射或接收电磁波的能力。














天线的主要性能指标
天线尺寸:
- 满足电气指标情况下,尺寸尽可能小
天线重量:
- 满足各项电气指标情况下,尽可能轻
风荷载:
天线在36m/s时正常工作,在55m/s时不被破坏
工作温度: -40℃ ~ +65℃
天线的选择及安装
繁华城区: 65° 、 15dBi 、双极化天线
•市区电波多径效应强,双极化天线分集作用明显。
•市区多数基站房子能承受负荷有限,铁塔小,天线挂位资源紧张。
•使用双极化天线,可减小风荷、减轻房子的负荷、减少挂位,分集接收效果良好。
市郊: 65° 、 18dBi 、单极化天线
•市郊基站覆盖面积较大,故采用高增益天线。
•电波多径效应较弱,用空间分集比用极化分集要稍好一些。
•市郊*地征**较易,往往可建落地塔,天线挂位资源较不紧张。采用单
极化天线问题不大。
乡镇: 90° 、 16.5dBi 、单极化天线
乡镇:基站覆盖面积大,宜使用高增益天线。
• 电波多径效应差,只能采用空间分集。不能使用极化分集。
• 使用90 ° 天线可以提高小区交界处的信号强度
• 乡镇*地征**易,多为落地塔,天线挂位资源不缺,天线数量多一些没
有问题。
天线隔离度要求
•同一平台上相同频段相同方向: 3 ~ 4 m。
•同一平台上相同频段不同方向:≥ 1 m。
•同一平台上不同频段相同方向:≥1 m。
•两平台上相同频段相同方向:≥1 m(上天线的下部至下天线的顶部)。
其他安装要求
•全向天线只准安装在铁塔的顶部。安装在下面铁塔对其场强会有影响。
•天线的前方较近的范围内不应有障碍物。
•采用抱杆的基站,抱杆一般布置在大楼的边缘,不宜放在大楼中间, 如不得已安装在大楼中间时,天线应有足够的高度。

基站电源系统
主要内容
1 、通信基站电源系统的组成
2 、通信基站交流供电系统
3 、通信基站直流供电系统
通信基站电源系统的组成
- 新建基站均配置 1 套交直流供电系统,分别由 1 台交流配电箱 / 屏、 1 套-48V高频开关组合电源(含交流配电单元、高频开关整流模块、监控模块、直流配电单元)和 2 组(或 1 组)阀控式蓄电池组组成。
- 通信基站电源系统必须保证稳定、可靠、安全地供电。
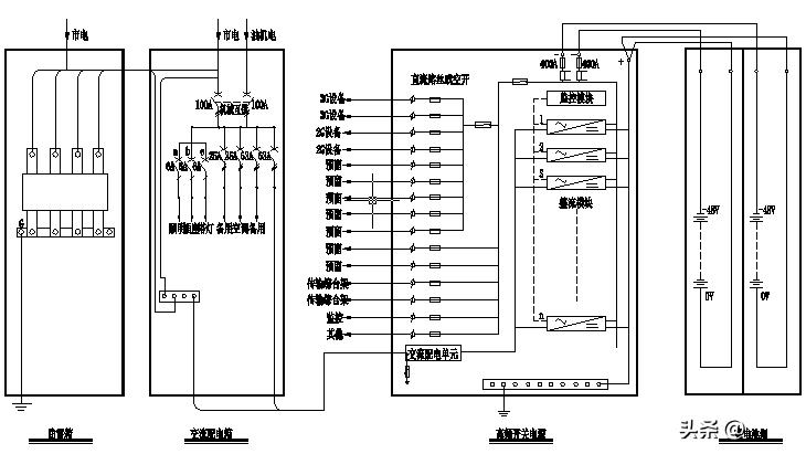
通信基站供电系统图

基站交流供电系统组成
- 基站要求引入一路三类以上(含三类)的市电电源。乡镇及农村基站交流电源引入容量建议为 15kW(自建变压器的基站,变压器容量建议按照 20KVA选定),一般市区、城郊及县城基站交流市电引入容量建议为 20kW,特大城市密集市区基站,交流市电引入容量建议为 25 kW~ 30kW。
- 基站交流供电系统由一路 380V交流市电引入、防雷箱、交流配电箱和开关电源架中的交流配电单元组成。
- 基站内所有交流用电设备:开关电源、空调、照明、插座、铁塔的航空警示灯等供电电源,均从交流配电箱的输出分路引接。
防雷箱接线示意图(凯文接法)



通信基站直流配电系统组成
- 高频开关电源( AC/DC变换器)
- 蓄电池
- 直流配电箱
高频开关电源一般由交流配电单元、直流配电单元、高频整流模块和监控模块组成。完成从交流配电箱引入交流电,将交流电通过整流模块整流为直流电后,输出到直流配电单元与负载及蓄电池连接,为负载供电,给电池充电。同时监控模块实现对电流、电压、电池充电状态进行监控。
高频开关电源的直流配电单元要求具有二次*载下**功能,以优先保证蓄电池组对传输设备的供电时间及达到对电池的保护。在市电故障中断供电时,高频开关电源停止工作,由蓄电池组放电,对基站内所有通信设备供电。当电池放电电压达到设定的一次*载下**电压时,自动断开对基站设备供电的直流分路,仅保证对传输设备和监控设备的继续供电;当电池放电电压达到设定的终止电压时,自动断开电池供电的直流分路,避免电池组深度放电发生损坏。

- 蓄电池 是直流供电系统的重要组成部分。在市电正常时,蓄电池与整流器并联运行,用来改善整流器的供电质量,起平滑滤波作用;当市电异常时,向负载提供直流电,是直流系统不间断供电的基础条件。
- 通信基站一般采用固定阀控密封铅酸蓄电池( GFM-X X),这种电池在使用中无酸雾排出,不会污染环境和腐蚀设备,可以和通信设备安装在同一机房;维护简单;电池中无流动电解液,体积小,可立放或卧放工作,节省占用空间。

蓄电池

蓄电池
直流配电箱
- 一般情况下,当高频开关电源柜内直流配电单元直流分路不够用时,配置直流配电箱为通信设备供电。
- 为不同容量的负载分配电能,当直流供电异常时要产生告警或保护。如熔断器断告警、电池欠压告警、电池过放电保护等。

直流配电箱
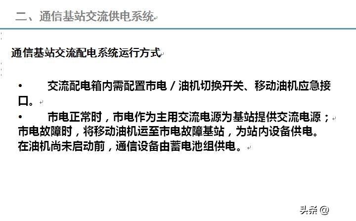
通信基站直流配电系统运行方式
- 市电正常时,站内引入的 380V交流市电电源经交流配电屏、组合开关电源的交流配电单元、整流模块整流后变换为直流电源。该直流电源通过组合开关电源的直流配电单元,向通信设备供电, 同时对蓄电池组浮充充电。
- 在市电故障时,开关电源整流模块自动停止工作,监控模块远程告警,蓄电池组放电,保证通信设备的直流用电;同时,开关电源系统要监测电池放电情况。当市电恢复时,开关电源整流模块自启动恢复工作,对通信设备供电,并根据开关电源系统的预先设定,自动选择浮充或均充工作方式。
基站防雷接地系统
主要内容
1 、基站防雷接地系统概述
2 、地网
3 、基站机房防雷接地
4 、铁塔和抱杆防雷接地
5 、天馈线系统防雷
6 、电源系统防雷
7 、信号线系统防雷

外部防雷就是防直击雷,不包括防止防雷装置受到直接雷击时向其它物体的反击。
内部防雷就是防防雷电感应,防反击,防雷电波侵入,即外部防雷装置以外,所有能减少需防雷空间内雷电流电磁效应的措施。
按直击雷防护拦截效率将雷电防护分为 A 、 B 、 C 、 D 四级。
- 2 基站防雷接地系统
基站防雷接地系统包含以下几个方面:
- 1地网
- 2基站机房防雷接地
- 3铁塔和抱杆防雷接地
- 4天馈线系统防雷
- 5电源系统防雷
- 6信号线系统防雷
根据移动通信基站防雷与接地设计规范,移动通信基站应按均压、等电位的原理,将工作地、保护地和防雷地组成一个联合接地网。站内各类接地线应从接地汇集线或地网上分别引入。
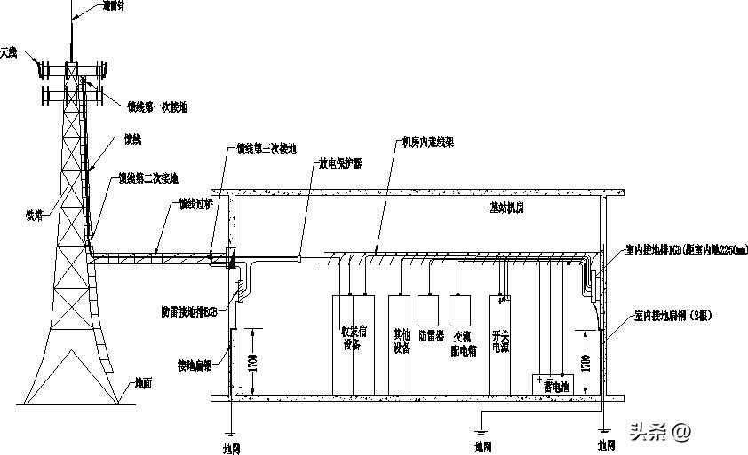
基站地网由机房地网、铁塔地网和变压器地网组成。铁塔地网与机房地网之间应每隔 3 ~ 5m相互焊接连通一次,连接点不应少于两点。变压器地网与机房地网相距 30m以内时,两地网之间应每隔 3 ~ 5m相互焊接连通一次,连接点不应少于两点。当铁塔设在机房房顶,电力变压器设在机房楼内时,其地网可合用机房地网。对于租用房屋的机房,应尽量找出建筑防雷接地网或其他专用地网,并就近再设一 组地网,三者相互在地下焊接连通。找不到原有地网时,应就近设一组地网作为机 房工作地、保护地和防雷地。工作地及防雷地在地网上的引接点相互距离应大于 5 米。
铁塔位于机房屋顶时,铁塔四角应与楼顶避雷带就近不少于两处焊接连通。
- 接地体
接地体宜采用热镀锌钢材,垂直接地体长度宜为 1. 5 ~ 2. 5m,间距为其长度的 1. 5 ~ 2 倍。接地体所有焊接点均要进行防腐处理。接地体上端距地面不应小于 0. 7m。
- 接地线和接地引入线
- 接地线宜短、直,截面积为 35 ~ 95m2 ,材料为多股铜线。
接地引入线长度不宜超过 30m,材料为截面积不小于 40m× 4m 的热镀锌扁钢或不小于 95m2 的多股铜线。接地引入线由地网中心部位就近引出与机房内接地汇集线或接地铜排连通,接地引入线不宜少于 2 根。
- 接地电阻
基站接地电阻应小于 5 欧姆。
基站防雷接地系统图

基站机房防雷接地
基站室内总接地铜排( IGB )由 2 根接地引入线单独引
入, IGB 在地网的引入点应与室外防雷引下线在地网的引入点相互距离大于 5m 。 IGB 应安装在绝缘的墙面或支架上。防雷接地铜排安装在基站馈线窗附近,由 40mm×4mm 的热镀锌扁钢或截面积不小于 95mm2 的电力电缆与基站联合接地体连通。当接地引入线为热镀锌扁钢时,接地铜排和接地引入点之间应加装铜铁焊接转换排。
移动机房内开关电源工作地应按单点接地方式,工作地和设备保护地均直接接入 IGB 。基站供电设备正常不带电的金属部分,避雷器的接地端,均应作保护接地,严禁作接零保护。
机房内走线架、吊挂铁件、机架或机壳、金属通风管道、金属门窗等均应作保护接地。保护接地引线一般宜采用截面积不小于 35mm2 的多股铜导线。每段走线架之间均应可靠连接。
铁塔和抱杆防雷接地
基站铁塔应有完善的防直击雷及二次感应雷的防雷措施。塔顶接闪器采用 40mm×4mm 的热镀锌扁钢作为专用的雷电流引下线。铁塔的航标灯电源线应采用具有金属外护层的电缆,金属外护层应在塔顶及机房入口处外侧就近接地。






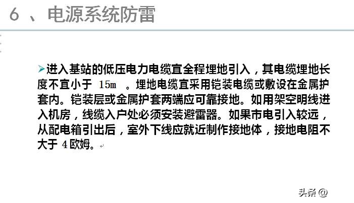
Ø电源系统防雷应采用多级防护措施,使雷电压和能量合理分配,最终使过电压值限制在设备承受范围内。安徽移动基站机房的防雷主要采取两级防护:过压保护器 SPD(防雷箱, B 级防雷器)和开关电源内 SPD ( C 级防雷 器)。要使两级 SPD 正确、及时响应, SPD 间导线长度应大于 5m 或加装退耦器。根据安徽移动省公司要求,采用两级 SPD 间导线长度大于 5m 的方法,交流配电箱至开关电源之间的线缆可在走线架上打 U 型弯来满足距离要求。
ØSPD 接地线长度和线径也是防雷效果的关键。 SPD 接地线应尽可能短,长度应小于 1m 。 SPD 接地线材料应采用多股铜线,截面积应满足规范要求。本期 工程B 级防雷器接地线采用截面积为 95mm2 的多股铜线, C 级防雷器接地线采用截面积为 35mm2 的多股铜线。 SPD 地线应就近接地。机房交流配电箱和开关电源尽量靠近 IGB 安装,达到防雷地线的要求。
