记得点击关注“装个好房子”哦~
每天为你带来装修干货、改造新灵感与美好生活故事
探寻美好居住方式,我们值得更好的生活!
----------------------------------------------
不少人曾经抱怨过自己的房子太小了,不够放东西,杂乱无章,也根本不好看。
然而,房君认为房子不够用并不能怪房子小,而是没有得到合理的设计。房屋空间越小,设计的重要性就越大,当然,难度也越大。
今天房君要介绍的是一个原始面积只有45㎡的家,通过设计师的走心设计,将3米的鸡肋走廊变成独立玄关,楼梯下方变为餐边柜,还充分利用了顶楼的斜顶阁楼空间,将这个小房子,变成了温馨的二人世界。


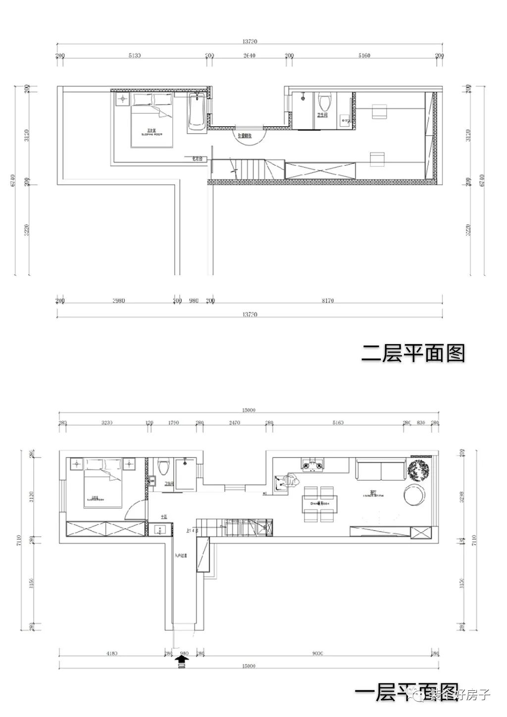
原始面积:45㎡
改造后面积:45㎡+29㎡(阁楼)
改造后户型:三室
费用:30万
地点:上海 徐汇
屋主家是上世纪80年代的老公房,一房朝南一房朝北,中间是卫生间和过道厨房,主卧兼具了客餐厅功能。
因为是顶楼,所以还有个斜顶的阁楼空间,屋主希望可以通过这次改造利用起来。希望整个家能做出两个卧室和两个独立的书房/工作区。

设计师将整个家的空间重新进行了规划,保留了小卧室,将大卧室作为了公共空间,做了客厅+工作区的设计。二层的阁楼规划为了主卧+书房区域。


改造前的玄关长3米多,宽度只有86公分,昏暗逼仄,唯一的采光还被油烟机和吊柜遮挡了大半。

改造后的走廊拆除了吊柜扩大了采光面,增加了灯带、壁灯,无论白天夜晚都有充足的光线。
走廊的另一侧墙面挂了一幅大面积的具有透视效果的装饰画,将人的目光向画面尽头延伸,无形中扩大了视觉空间。

搭配窗下精致的玄关柜,打造出具有仪式感的高颜值独立玄关。


改造前厨房的灶台和操作台分别占据着入户的主要过道和室内过道,让原本就不宽的走廊更加拥挤,餐厅与客厅、主卧共用一个空间,区域划分杂乱无章,动线也十分不合理。

改造后的厨房调整到了原来朝南的大卧室,和客餐厅一体,释放了走廊空间,也腾出了位置安置通往阁楼的楼梯。


楼梯位置紧邻厨餐厅,充分利用了楼梯下方空间,将这里定制为了餐边柜,放置厨房大大小小的电器。

▲屋主家的喵星人waddle

从厨房看向客餐厅
由于房子本身是小户型,层高也不高,所以采用了局部吊顶来遮挡管道,再加上顶面本身具有一定的坡度,最后做了几根假梁来弱化顶面的不平整感,为空间增添了几分自然怀旧的气息。


客厅与开放式的厨餐厅相联通,功能紧凑,视觉上也更加宽敞通透。


将原阳台包入了客厅,让空间能更好的充分利用,采光也更好了。


设计师应屋主要求,次卧和阁楼各设计了一个书房,但是由于目前天气渐渐变热,暂时将客厅的阳台作为工作区使用。


卫生间只用2.7㎡,红色的墙面搭配黑白地砖,十分有复古气息。
设计师调整了次卧开门的位置,一方面增加了次卧的储物空间,另一方面在过道新增了一个台盆,对于有两个上班族的家庭来说,更加实用便利。



次卧平时主要作为书房使用,采用了壁床的设计,平时收起来,父母来的时候,放下来就成为了一间宽敞舒适的卧室。




阁楼的南北两侧分别作为书房、主卧使用。过道有天井窗,利用过道做了一个折叠翻桌,主卧的谷仓门本身也可以作为书架使用,随时变身一个休闲阅读区。

主卧没有做过多的装饰,用姜黄色的床品搭配墨绿色的墙面,简单的色彩搭配也可以带来浓郁的复古气息。
靠窗的位置放置了一个浴缸,可以边看风景边泡澡,放松又惬意。

本文案例及图片由犀宅原创设计提供
#生活# #装修[超话]# #装修案例参考#
为你推荐
29岁女孩独自造家具搞装修,130㎡毛坯变精装只花2万,网友直言佩服
卧室越住越小、越住越乱?都是隔夜衣没放好
74岁奶奶的主妇生活:5点起床10点睡觉、跟闺蜜开趴、与老公分居