

览尽所有设计思想、所有设计风格
无外乎是对生活的一种态度
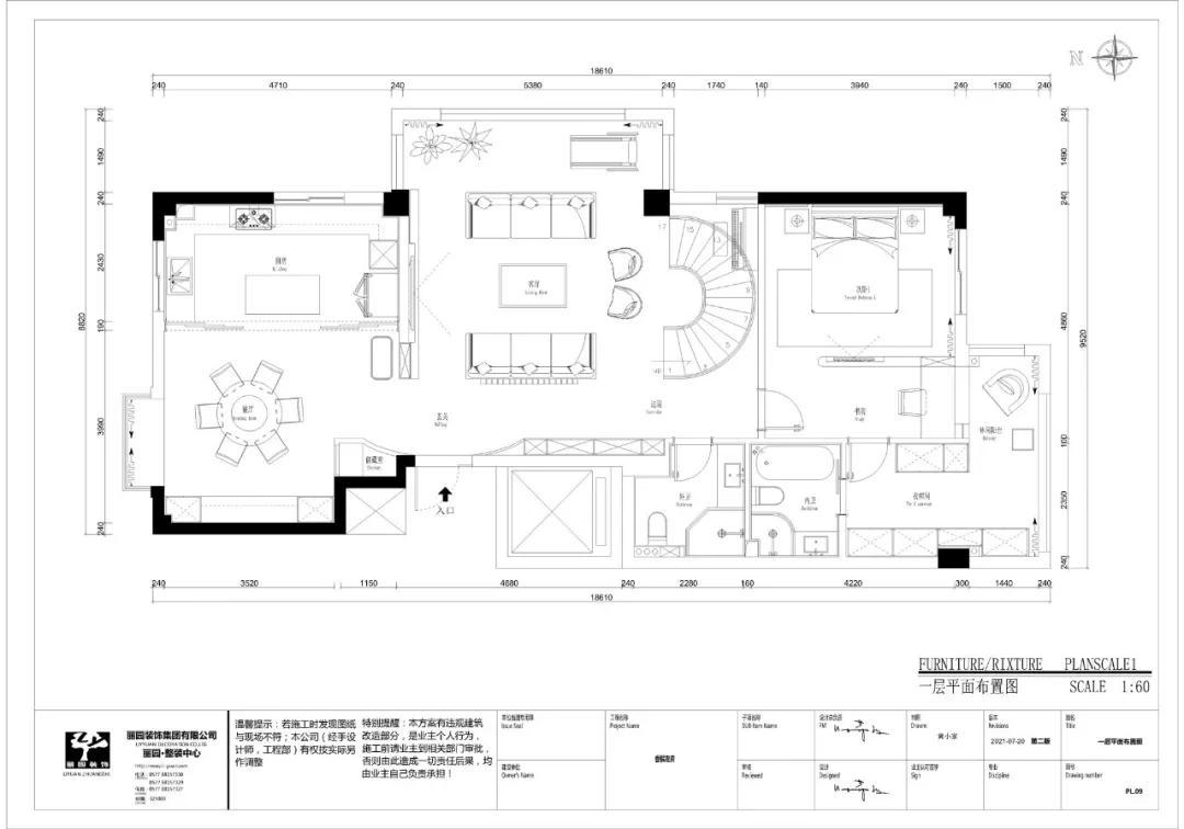
【项目·信息】
地址 / 香槟左岸
户型 / 四室两厅
面积 / 275㎡
风格 / 现代轻奢
设计施工 / 丽园装饰

“家”是个人生活和情感的表达,是身心栖息的场所,整个设计必须符合当下屋主的生活状态与气质。设计师在暖灰和木色基调中,采用了许多曲线的装饰和家具,让空间的感觉更为柔性化,传递由家带来的温暖与平和。

电视背景墙背景墙线条感十足,镜面的反射与光同尘,光影跃动间顿时将挑高空间点亮。 设计师精心挑选家具和摆饰,增添空间的细腻感和丰富程度。

精致典雅的圆环形吊灯正好与餐桌相呼应,黑白色在整个空间贯穿始终,嵌入集成式的厨房电器和灰玻璃柜体交融出高科技的现代感,展示柜中琳琅满目的是精心收藏的酒杯与好酒,碰撞着属于生活的烟火气息。

书房面积不大,但是设备齐全,在外面奔波忙碌了一整天,卸下一身的疲惫,摆脱工作的负累,一杯清茶,一本好书,让心沉淀下来,静静享受这独属于一人悠闲时光。

主卧配合巧妙的空间布局与明亮的光线,为疲惫的身体创造良好的休息环境。床靠背利用木饰面将大白墙一分为二,拉伸出空间层次感,同步将暖色灯带隐藏在木饰面中,让起夜变得更舒适。

卧房侧面是大面积玻璃立面,可以毫无阻碍地看到客厅,百叶帘根据光线角度自由调节,气氛恰到好处,感受被掌控的柔和光线。

次卧还原空间本质,以白色和原木色打造出简单舒适的睡眠空间,没有多余繁杂的修饰,温润的天然木材与现代融合的洗练感觉,将最简单纯粹的精神呈现出来,简洁舒适,让人内心平和。

平面图

