
西丽2020年明显要发力了,无论是在道路、轨道的建设上,还是大学城,以及基础医疗、教育资源上都有增加,翻开深圳市规划和自然资源局南山管理局,都能看到很多条关于西丽和大学城的更新,说明这个总是啃不动的西丽,终于开始动了!
2020年上半年至今,已经确定了两个学校,1个医院和1个鹏程实验室。

1、西丽再新增一个新学校
根据深圳市人民政府关于建设深圳大学医学部二期项目的要求,[大学城地区]法定图则08-18地块规划调整:
一、原规划情况
本次规划调整涉及[大学城地区]法定图则08-18地块,该地块用地性质为军事用地(D1),用地面积约12822平方米,备注为现状保留。
二、拟调整方案
拟将[大学城地区]法定图则08-18地块,用地性质调整为教育设施用地(GIC5),备注调整为“规划,调整方案待土地利用总体规划调整完善后生效”,其它内容不变。

用地面积大约是12822㎡,如果按照西丽二小的2.15容积率来计算,建筑面积大约有2.8万㎡,规模不是很大,预计只有18班左右,是一个小学校,应该只有小学。
详细位置:

此地块处于大学城片区,距离这个新学校最近的小区有水木丹华、宝能城、华晖云门三个小区。目前宝能城是整个西丽片区的网红盘,借助综合体、近地铁和高赠送的三大优势撑起了西丽片区的高价位。水木丹华在售的89高拓3-4房单价也已经上10万/㎡了。华晖云门的优势就是距离地铁站更近,旁边就是宝能城,可以享受宝能城的shopping mall的配套,目前88㎡的高拓三房户型单价也有12万/㎡左右,但是户型结构不如水木丹华方正。而宝能城的实用率更高,89㎡可以做到3+1房,目前单价已经在13-14万/㎡左右。
深圳政府比深圳居民更清楚深圳的教育资源非常稀缺,所以为了解决这一矛盾,未来新建的学校很大概率都是按照名校集团标准来打造的。目前这三个小区的学位都是南科大实验一小、二小。据业主爆料,南科大实验一小的师资不错,而且生源也好,都是来自旁边的朗麓家园人才房、宝能城和华晖云门的业主家小孩去上的,虽说学校也比较新,且没出成绩,但处于上升期。
从地理位置上看,未来这些小区学位是否会变动都是未知数,而且还不确定是不是公立。

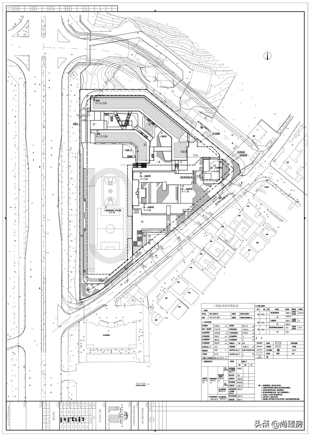
西丽二小(文理二小)扩建
4月14日,深圳市规划和自然资源局南山管理局发布关于西丽二小项目总平面图修改的公示。
西丽二小项目由南山区教育局开发建设,位于南山区石鼓路与西丽南路交汇处,于2003年8月1日取得《深圳市建设工程规划许可证》。
根据公示,扩建工程对原教学楼进行了保留并改造,对原公寓食堂进行拆除。
改扩建后,总图指标变更:计容积率建筑面积由6536.5㎡变更为41442.44㎡;
不计容积率建筑面积由0变更为13929.29㎡,功能为地下车库及设备用房,建筑层数由地上4层变更为地上13层、地下2层,停车位由14个变更为156个。


(西丽二小扩建后总平面图)
深圳市南山区西丽第二小学,是深圳市南山区教育局于2004年8月创建的一所公立学校。2018年,融入南山文理实验学校集团,并改西丽二小为文理二小。
学校现有24个教学班,1000多名学生,校园现有面积13000多㎡,总建筑面积近8000㎡。
其实早在2019年12月就规定了,办学规模不小于48班小学,如今又扩建,相信文理集团会越办越好。政府预计会把大部分学校都打造成名校,来减轻如今各大名校带来的高房价与普通学校的落差。

另外一方面我们都知道,全国应该没有一座城市像深圳这样缺乏学位的,很多家长为了保证孩子能上个好学校,耗费巨资进行学位房购置。拥有双学位的房子,以套为单位,大约一套比普通学位的要多500-600万,单名校学位的大约贵300-400万,这是在全国来说都比较疯狂的一件事,不止深圳的家长们意识到这问题,政府也意识到这个问题的严重性。
所以,相信今年政府会增加并加快对学校的建设或扩建,不止是西丽,宝安的学校在不断增加中。

西丽新增了深圳禾正医院
4月22日,深圳龙珠医院(宗地号:T409-0054)位于南山区龙珠七路与龙苑路交汇处东北侧,已取得《深圳市建设用地规划许可证》。根据《中华人民共和国城乡规划法》和《深圳市城市规划条例》等相关规定,现将该项目用地规划许可拟变更内容公示如下:
深圳禾正医院是由深圳市红十字会参股,深圳合正集团投资控股并管理运营的公私合营(PPPs)混合所有制医院。医院位于地理位置优越的深圳市南山区,坐落于环境宜人、风光优美的塘朗山畔,是一所大型现代化综合型医院。

禾正医院下设综合分院、肿瘤分院、康复分院三大院区,秉承「一体两翼」的发展理念,以综合医疗为主体,肿瘤与康复为特色,致力于为追求高品质生活人群提供「预防-保健-治疗-康复-护理」的全闭环医疗服务,打造集医疗、预防、康复、教学、科研为一体的大型现代化综合医院。医院斥巨资引进全球领先的达芬奇手术机器人、高端直线加速器、PET-CT、PET-MR等高精尖设备,配置导诊机器人、物流机器人和服务机器人近 50 台,致力于成为粤港澳大湾区大型国际高端诊疗中心和国内领先的智慧化示范医院。

整体而言,目前西丽的各大配套都逐步跟上来,也有三大深圳市重点工程的加持:西丽高铁站、留仙洞总部基地和西丽湖大学城,相信西丽会越来越好。
但却是对比其他几个区域,比如科技南和宝中,西丽的发展速度还是比较慢的。
比起区域内部的规划和资源加持,深圳人才对区域是否认可,会不会来这里,又会不会留下来,才是西丽是否能快速发展的根本因素。

原创文章,禁止转载,如有需要请联系作者本人:Deyoussf。