一、户型解析
1.标题文字
改造实用性空间,为生活带来更多的便利。
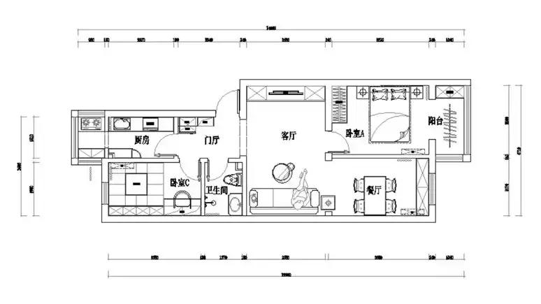
2.链家网户型图

3.综合点评
本户型为滨河西里78㎡小三居,地理位置临近地铁4号线枣园站及京开高速交通便利,房子在6层采光好。
二、问题分析
1.问题描述
①客厅区域成过道空间,格局无餐厅的空间。
2.对比图
原始户型图

修改后建议图

3.修改建议
原有的房子客厅无法安装空调,因房子在顶层,如夏天较热的情况下会比较闷热,通过从新布置摆放,小三居改回正常2居室使用,由客厅及餐厅区域共用一个空调。有利于解决会客就餐的问题。原主卧室的书桌放置到次卧的榻榻米空间里面,榻榻米也足以解决一部分的储存空间。
三、设计效果
#客厅#

1.前后效果对比图

2.设计师说
①把原来的小卧室改造成餐区位置,增加餐区位置,显得客厅会客区宽敞明亮。
②原有的“L”型布艺型沙发更换成“一”字型北欧沙发,可让茶几有空间放下。
③原客厅无空调的空间,利用餐区的壁挂空调带动客厅的区域。
#卧室A#

1.前后效果对比图

2.设计师说
①原卧室壁纸铺贴得比较乱,从新采用乳胶漆,采用高级灰搭配原木色的床显得舒适度更高。
#卧室C#

1.前后效果对比图

2.设计师说
①将原有的次卧改成多功能实用性较强的榻榻米空间,完美的解决的会客,娱乐,住宿,书房等强大功能区。
#卫生间#

1.前后效果对比图

2.设计师说
①把电热水器位置考虑到马桶上方,浴室柜往里移动,淋浴区调动到右边墙体上,使卫生间淋浴区更宽敞。
②因离浴室柜离淋浴区位置较近采用石材壁挂式浴室柜,完好的解决了清理及浴室柜防水的问题。
#厨房#

1前后效果对比图

2.设计师说
①原厨房洗衣机位置在左侧,右侧有橱柜,拿衣服晾晒这个空间很紧凑,容易磕碰,所以把洗衣机调整到右侧橱柜下面,左侧则采用适当长度的置物架来解决橱柜的储存空间。
四、预估成本
总价:110000元
硬装:50000元
软装:60000元
各空间:
客厅:25000元
餐厅:10000元
主卧:15000元
次卧:25000元
卫生间:15000元
厨房:20000元
好啦,徐老师今天分享就到这里了,
有关装修中的小细节,还有哪些好的建议,快去留言或添加微信,一起解锁家装新姿势!之后会继续为大家带来更专业的装修知识哦~
家的故事仍在继续,徐老师的陪伴永不散场