
自从去年9月拍地之后,直到前两天,天健悦湾府 效果图才正式出来!

还记得去年1月开盘的天健悦桂府吗? 天健悦湾府就在它的旁边!
天健悦桂府↓

因为项目位于前海桂湾,所以起名“天健悦桂府”、“天健悦湾府”
合在一起理解:天健让你在桂湾愉悦的府邸!
项目有5栋楼组成,3栋商品住宅、1栋人才房、1栋自持租赁房

人才房(只租不售):建好后交由政府运营
自持租赁住房:建好后由开发商自己运营
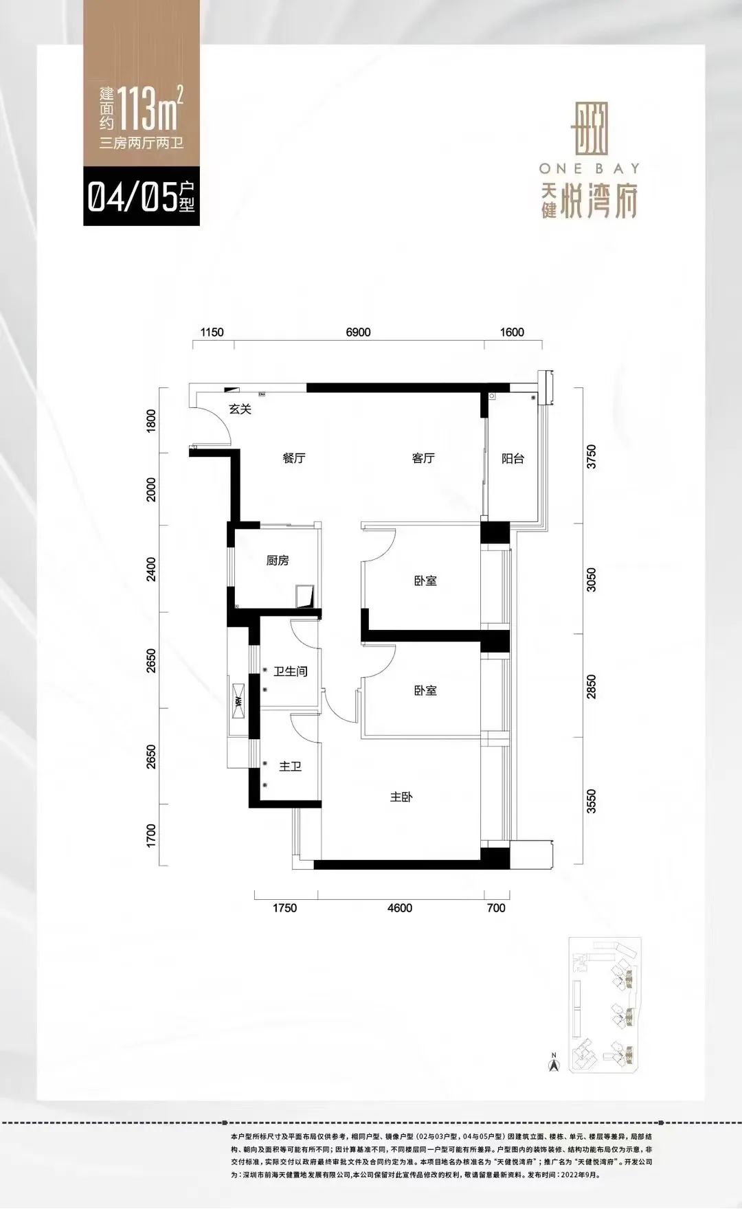
3栋商品房共有三种户型↓
113㎡的三房 和 164㎡的四房



配套:

悦桂府配建了一所幼儿园,南面是正在施工的一所九年制学校!

2公里范围内可到达宝中壹方城和将于明年一季度开业的山姆前海旗舰店

悦湾府的限价只有9.2万,是最近几年前海的最低限价,所以如果你就想买前海,那悦湾府真的是不容错过,但如果你没那么着急,可以再往下看看它有哪些缺点↓
1、距离地铁站较远

步行到达前海湾站大概1.2公里,而且未来周边更近的地方没有新建地铁的规划!
2、项目东边是另一个新盘深业云海湾、南边是悦桂府、东边是两个写字楼中冶大厦和创金大厦。而且距离都非常近,完全没有视野!

北侧虽然开阔,但宝安大道和南坪快速的立交噪音肯定少不了!
3、悦湾府最近有一个强劲的对手,万科瑧湾悦

二者都有“悦”、“湾”二字,开盘时间也都会在近期
首先说明的是瑧湾悦带精装均价大概10.8万,悦湾府的毛坯限价9.2万,带装修交付,预计每平会加3000-5000,即使是这样还是比瑧湾悦便宜1万多/平
但是!
瑧湾悦距离铁路公园地铁站要近的多

最近公布的深圳地铁五期建设规划,其中15号线也经过铁路公园站,到时会新开地铁出入口,距离项目更近!

户型设计有差距
悦湾府113㎡只做三房,瑧湾悦115㎡却是四房,而且瑧湾悦的户型看起来也更舒服实用!

悦湾府113㎡只做三房,瑧湾悦115㎡却是四房,而且瑧湾悦的户型看起来也更舒服实用!

悦湾府164㎡ 的四房 和 瑧湾悦170㎡的四房
你会选择哪个楼盘呢?欢迎评论区留言。