你未看此花时,此花与汝同归于寂;
你来看此花时,则此花颜色一时明白起来,
便知此花不在你的心外。
——王阳明 《传习录》
世界万物,只有你看到了,
你的心才能感受到,
于你来说才是真实的存在。
装修也是一样,
做到“心无外物”并且“知行合一”
才能打造出满意的家。

屋主生活在繁忙又喧嚣的都市
更偏爱黑白灰的极简风格
黑白灰仿佛有一种寂静的美
可以沉淀下所有的扰
并将自然的温度带进这方圆之中
但可爱的女儿年纪尚小
希望小小的家能给她更多温馨的庇护
于是在打造家的过程中反复考量和推敲
选择了黑白灰与暖色的搭配
完成了这个有爱的极简温馨之家

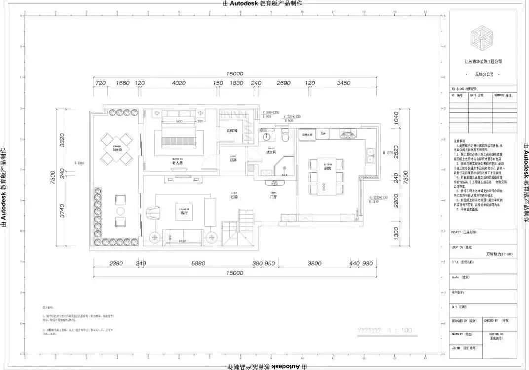
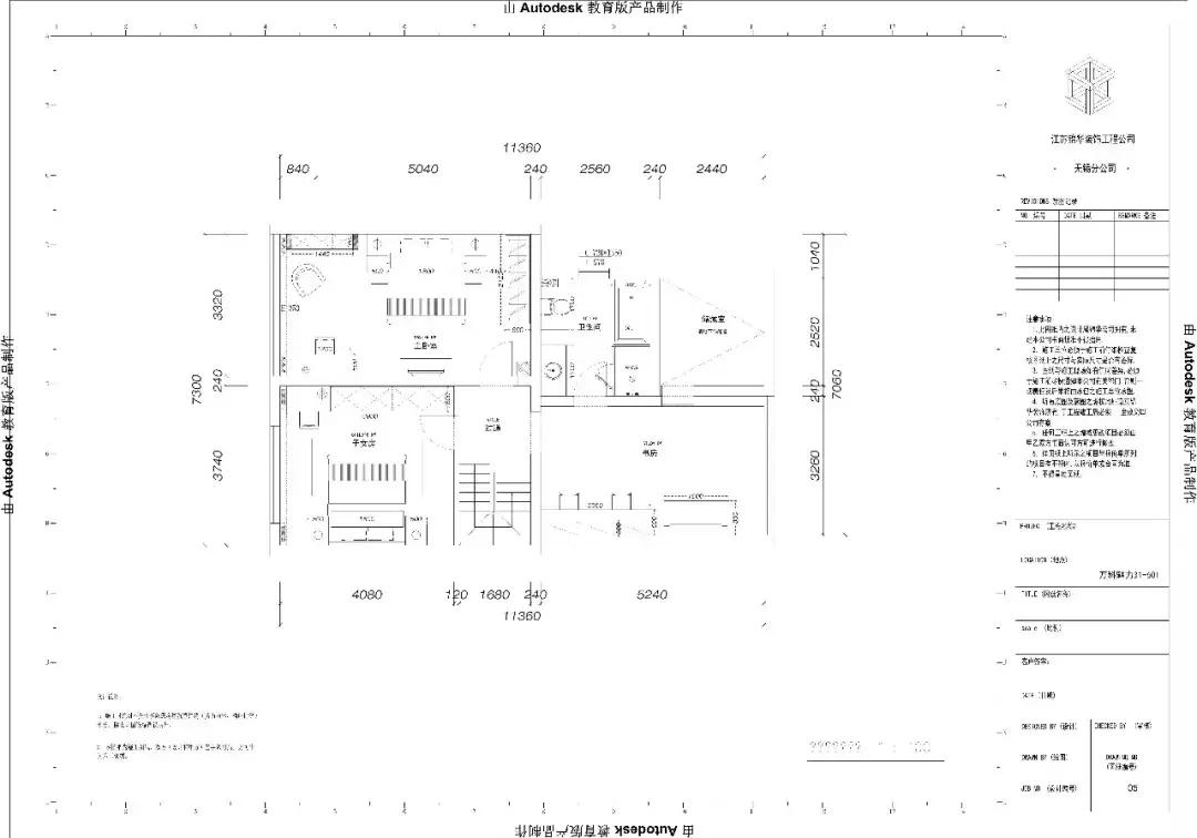
户型:复式3居
面积:200平
房屋位置:江苏无锡
房子是复式三居
一楼是为长辈准备的房间
二楼是主卧和儿童房
极简风格的色调搭配
让200平米的房子看起来更加宽敞

一楼平面

二楼平面
客厅家具多为外形简洁、形体流畅的样式
大理石纹路的电视背景墙
与地面的温润质感和谐并置
黑色的皮质沙发让整个空间沉稳低调
搭配的跳色单人沙发
让黑白灰的客厅不至于太沉闷

如果家里空间设计冰冷
可以使用各种植物软化呀
在天然植物的映衬下
黑白灰的房间也能充满烟火气

从餐厅一侧可以看到客厅的整体效果
沉稳的黑色+百搭的灰色
整个空间看起来清爽明亮
不另类又不迎合媚俗与人云亦云的现代设计风格
可以满足屋主对于审美和家的完全概念

餐厨区域使用开放式布局处理
背景墙定制整面的白色储物柜
营造延伸流畅的格局序列
整个区域采用冷灰色调打造基底
凝练简约现代的生活质感

开放式厨房依然采用通体白色配置
墙面选用肌理自然的大理石
生动而富于变化
勾勒出独特的空间气质

主卧设计比较简洁
白色的定制衣柜收纳能力max
又不会影响整体格局
与客厅大面积冷色调不同
卧室采用米色背景墙营造出温馨的质感
更有助于心情沉静

床头一侧设置了工作台
方便偶尔加班
或深夜有灵感的时候使用
大面积的窗户让房间采光甚好
每天清晨拉开窗帘
就可以享受阳光亲吻脸颊的温柔

儿童房运用轻松、愉悦的色彩和空间搭配
不仅符合可爱小女孩的气质
也能激发她的想象力
温暖的粉色和白色
搭配出简洁又不失甜美的公主房
让女儿即使一个人睡觉
也不会感到孤单和恐惧

没有过于幼稚的设计和搭配
这样等女儿长大了也不用再花工夫改造


一楼卧室是给父母准备的
在白色浅灰色窗帘的陪衬下
深色原木地板与
清新的棉麻布艺床品碰撞
有种如临梦境的错觉
高冷又气质撩人
更平添了几分宁静

通向二楼的楼梯拐角看向客厅
黑白灰营造了家的现代感
融入自然植物的元素就变得温馨不少

卫生间空间比较大
做了浴缸还有地方做独立沐浴间
大房子就是这么任性
有纹路的大理石墙面
让整个空间显得明亮又大气

墙面一侧整排的镜柜
不仅可以满足卫生间不常用杂物的收纳
还可以通过镜面让空间更加宽敞

梦想中的家大概就是这样
有着可以从繁忙工作中抽离的沉静客厅
也有清新可爱的儿童房
和棉麻布艺的舒适温柔
愿你也能在尘世间寻觅到一处栖息地
这个房间无谓大小 不论风格
只有专属于你的独特气质
案例来源:无锡锦华装饰
微信号:无锡锦华堂杰(wuxijinhua)