
合 肥 最 美 家 SET . 139
项目地址丨合肥·中海央墅
项目类型丨洋房顶复
项目面积丨335m²
设计单位丨安徽华然装饰
设计师丨韩余节
#1
空间改造
Space transformation

▲一层原始结构图

▲二层原始结构图

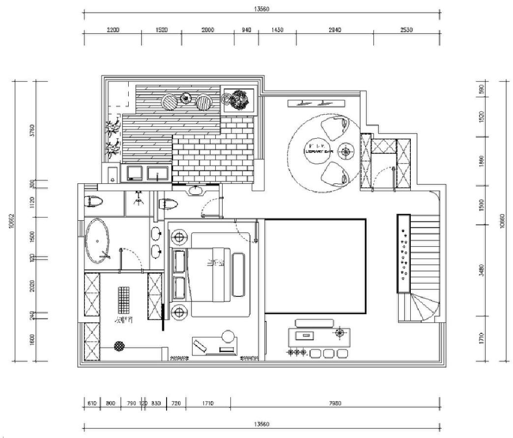
▲一层平面布置图

▲二层平面布置图
#2
亮点展示
highlights
建筑是种治愈的艺术,真正的奢华,并非是琳琅满目的奢侈,而是用心着装的态度,构建高贵与雅致。
01
VESTIBULE
玄关

进门就能关注到的玄关,用线条之间的曲直、几何形体的变化,硬朗光滑的表面与柔软凹凸的质感,刚柔相济。绯红的柜体,搭配克莱因蓝的装饰,在色彩的跳跃中,吸引入户者的视觉。
02
LIVING ROOM
客厅

家是具有感染力的场所,永远传递出强烈的空间感。它们以一种特别的方式拥抱,使之触动人心。挑空的客厅空间,让家的通透感,从上而下传递。现代简约的装饰,促成有序的家居品味。


居所设计,是为了呈现出“家”的功能符号,满足多元化的家庭生活方式。更是注入精神力量,去达到情感上的共鸣,成为爱与温度的精神载体。

棕咖色的护墙板及大理石电视柜的搭配,用现代艺术演绎出居家品味。深灰色石材地台搭配暖炉,不同花纹间的质感运用融合,层次美感呼之欲出。


舒展自然的空间布局,富有韵律感的材质,精致而高级的细节处理;一张舒适的沙发、亲肤的搭毯,将空间统一为包容性的舒适栖居场所,在柔和基调的包裹中,成为居者的心灵港湾。

设计师将原来之字形的楼梯改为一字型直跑楼梯,宽度相对于之前更加宽,安全系数和美观都能达到要求。客厅与楼梯间之间用水晶吊灯做联动,伴随着视线推移,流畅延伸出线条艺术感。

03
KITCHEN
餐厅

以居住者的内心期待为基准。通过环境营造汇聚能量,形成节奏气场,以此滋养补给使用者,又通过日常的每一次使用,来更新和养护生活环境。


圆形的餐桌,围合成家的形状,玻璃面的大理石餐桌,映射出灯光的柔和,兼具空间感与线条感的吊灯,提高了就餐的高级氛围。空间中巧用木饰面、玻璃等元素,塑造出生活的精致感。
04
STUDY
书房

和楼下客厅的营建方式一脉相承,楼上休息区成为了一处隐性的对景,二者相互呼应,共成一体。通过洄游动线拉大的半围合休憩区,打造出书房及休闲空间,蕴生出一种温润的滋养。
05
BEDROOM
卧室


主卧的设计简约精致,在木饰面的包裹下,显得极为舒缓、静谧,木的温润质感,与独特的纹理表达,在柔和的布光下,触发了家的温暖属性,氤氲出清雅、舒适的空间氛围。

儿童房用活泼的粉色点缀,洋溢着柔和甜美的空气氛围,结合原本的户型结构,合理规划阅读学习的区域,打造出充满梦幻感和探索欲的欢乐空间。
06
BATHROOM
卫生间

卫生间是四式分离布局,洗漱区、马桶间、淋浴房和浴缸区,一个功能一个空间,四个功能区相互联系,却又互不干扰,提高空间使用效率。
案例来源 | 安徽华然装饰
未经授权,不得转载