
图纸编号1601
尺 寸面宽 12.5米 进深 11.9米
建筑面积535.0㎡
设计机构易盖房俊友工作室
土建造价107.0万
项目概况

△总平面示意图(左侧为北)
基地情况:
东:村内道路
西:邻家住宅
南:村内道路
北:村内道路
项目简介:
业主在设计前期与设计师沟通了大致的平面布局需求,并表示喜欢地中海式风格的外立面造型。设计师根据场地情况,及业主的需求与喜好,将项目形式确定为4层欧式别墅。
平面布局
户型概况:
4层 / 5室 4厅 9卫 1厨 1堂屋 1储藏 1茶室 2书房 1娱乐室 1影音室 8阳台 1露台

△一层平面图(左侧为北)
一层以接待功能为主,设计师将南侧的门厅和客厅进行一体化设计,西南侧预留1间长辈套房;厨房独立布置于东北侧,最大程度地避免了油烟对起居生活的影响。

△二层平面图(左侧为北)
二层以休闲娱乐为主,东北侧预留了1间主卧套房,并与书房功能相邻,可供业主及其家人办公学习使用;南侧娱乐室搭配休息区空间,开放式设计使得整个空间更加开阔。

△三层平面图(左侧为北)
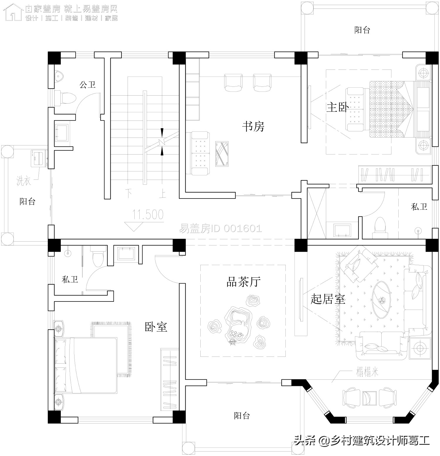
三层以居住休闲功能为主,共设置2间卧室,其中东北侧的主卧套房,搭配书房、独卫和阳台使用,通过落地玻璃门设计,提升室内的采光效果。

△四层平面图(左侧为北)
四层以休闲娱乐空间为主,设计师将起居室、影音室、备用间和露台功能布置其中,丰富整体多功能性的同时,为业主创造了更为舒适的居住体验。
造型设计

△西侧效果图

△西北侧效果图
设计师考虑到周边建筑风貌,因此将建筑整体设计为简欧风格,立面以浅色为主,搭配简约的线条及欧式元素构件,通过门头、露台和屋顶造型,形成错落有致的感觉。

△西南侧效果图

△鸟瞰图
南侧露台搭配欧式围栏构件进行强调装饰,主立面的大量落地窗设计,提升了室内的采光效果。

△西南侧效果图

△东北侧效果图
庭院作为建筑和街道的过渡区域,提供了充足的室外活动空间,绿植景观的点缀,提升居住环境的自然气息。

△东立面图

△西立面图

△南立面图

△北立面图