

视频加载中...
从学生时代就一头栽进积木世界的乐高艺术创作家黑白,不仅在网络创建了专属积木王国,也在历经数次带着乐高搬家的经验后,终于寻得一处可将创作与生活相互结合的「黑白城堡」。一开始就锁定新屋与毛胚屋的黑白表示,其实主要是害怕脏。

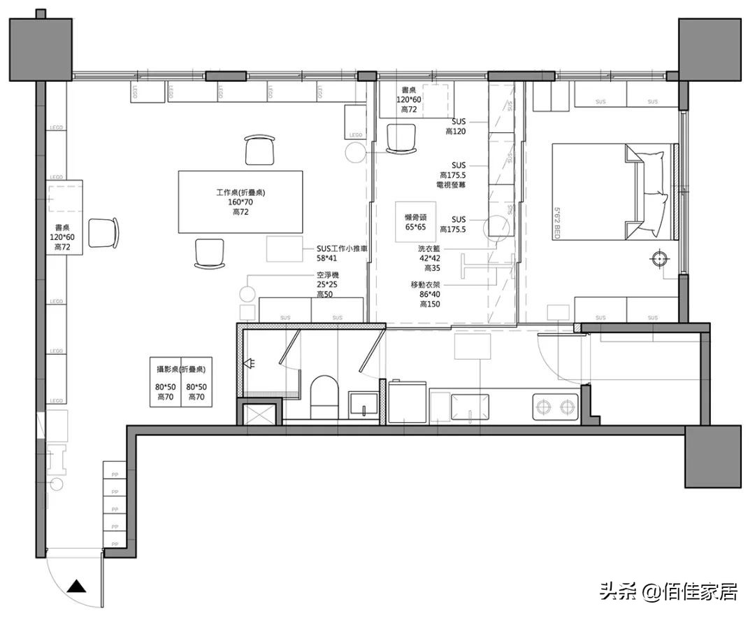
另外则是因为不喜欢制式化的空间,所以撇除传统两房一厅的格局,透过三排共11道拉门模糊室内界线,使全室具备高度灵活性,并采用活动家具使空间保有绝佳弹性,宛若乐高般可依需求随时变动,让住家非住家、工作室非工作室,使家活出自己的真实样貌。

/新成屋/居住时间约3个月/室内24坪/格局2房1厅1卫/居住人数2大

破除传统住宅的既定印象,在购置新屋后,黑白就与女友一同丈量毛胚屋尺寸,并按照自己想法绘制了图面,他笑说,因为全室没有任何隔间,也没有所谓的客厅、餐厅或工作室的划分,依循墙面摆放的柜体上也仅标示了LEGO的字样,所以就连设计师刚拿到图面时,也说有点难以理解。经过讨论后,利用玻璃拉门勾勒出既紧密却独立的生活环境,让客餐厅同步兼具工作室用途。

主要采取活动家具为主轴,并选用折叠桌使此区可依需求调整桌面长度,让非工作时也可拥有宽敞的活动面积,地坪则选用75 x 75cm的大面磁砖,借此减少沟缝数量,避免灰尘堆积外,也使推车移动时不会产生过多声响,而「浅浅灰」色调予以纯白环境一抹稳定调性。黑白开心表示,以往受限于空间,许多乐高零件只能另外用袋子盛装、搁置在角落,现在每个零件都有自己的家! 紧邻公空间的书房,仅用一道拉门做为划分,平时可完全敞开使空间相互串连,形塑通透敞朗的视感,如若女友需工作时,只要将门扇拉起,即可成为独立且安静的工作环境,让两人互不打扰的完成手边事物。此处同时也是他们可以放松休憩、玩电玩的绝佳场域。

特别从日本代购回来的无印良品冰箱,是厨房的主要核心。因此厨具顺其样式以简白色调+银灰金属为主轴,形塑一式到位的简约纯白质感。黑白特别分享说:「厨具的金属把手刻意反方向安装,让凹槽向下,这样就能避免灰尘堆积。」然而开放式的厨房,只要在烹饪时把拉门合起,就能避免油烟四处蔓延。

唯一有实墙隔间的卫浴,因为黑白不想花费太多时间刷洗地板,于是向设计师询问,有没有一整片、无磁砖沟缝的选择。因而找到拥有大尺寸、耐刮且不吃色的耐丽石薄板,使淋浴间延续一贯净白色调,让脏污无所遁形、随时保有简洁透亮的环境。


极简风,像无印良品的风格。 没有特别参考的网站,主要以自己喜欢的简约、纯白与好整理的方正格局为主。

无印良品 无印良品的SUS钢制组合层架,模组化的设计和乐高相似,可依照需求随意转换样式;乐高零件主要以树德柜收纳,分隔抽屉可完全拉出,直接放置在桌面创作,也可装设轮子使用,非常便利!

「无印良品的样品屋!」喜欢极简风的朋友都会觉得很漂亮,但也曾听过相当有趣的评价,像是搬家师傅第一眼就说:「这没有什么装潢齁。」然后也有朋友说很像仓库,女友弟弟则说,比较像工作室不像住家。

全部都很满意,因为这是一个大空间,不能以各别空间做划分,所以每个地方都很喜欢。 没有,就算有不满意的地方,也可以透过活动家具进行调整,因为整个空间都是活的!

冰箱,因为是特别从日本无印良品代购回台湾,所以整个厨房都是以此作为主轴规划! 原先住家只有14坪,而且还隔成了两房一厅,所以乐高零件都需放在另外的房间,在创作时相当不方便。现在则有了可以翻滚、不会拥挤的大空间!

当初厨房施工时,因为系统橱柜的工班师傅不够细心,所以在安装洗碗机和抽油烟机时没有施作确实,导致最后呈现效果不如预期,一直到入住两周了才全部调整好,但结果还是勉勉强强。

拉门,因为从来没有住过像这样的房子! 对于现阶段的整体装潢都十分满意,但如果未来结婚的话,应该会重新调整家具的部分。 「一定要有自己的想法,也要了解自己的生活习惯。」像我不喜欢打扫、喜欢纯白明亮的空间,所以过于复杂、不好整理的风格样式,或是传统的几房几厅格局就不适合我,让空间去配合自己、符合个人生活型态,才是完美的室内空间。
