一套房子确实能重新认识一个人。
本案业主,从事的是工程审计行业,从刚见面以来,给我们看到的都是严肃认真的一面,直到后期软装配置阶段,他才如哆啦A梦般,一件又一件地把珍藏的宝贝搬了出来:中古街机、星球大战、红白机、变形金刚、高达、村上隆…… 原先那个严肃的中年男人,顷刻间变成了一个大小孩(kidult)……
这套案子让我兴奋的点,就在这里:哪个男生没梦想过用玩具和游戏机装满自己的家,但只有老周真的做到了,多少年一点点地收集,一点点地从国外背回来…… #手办 #游戏区 #游戏机
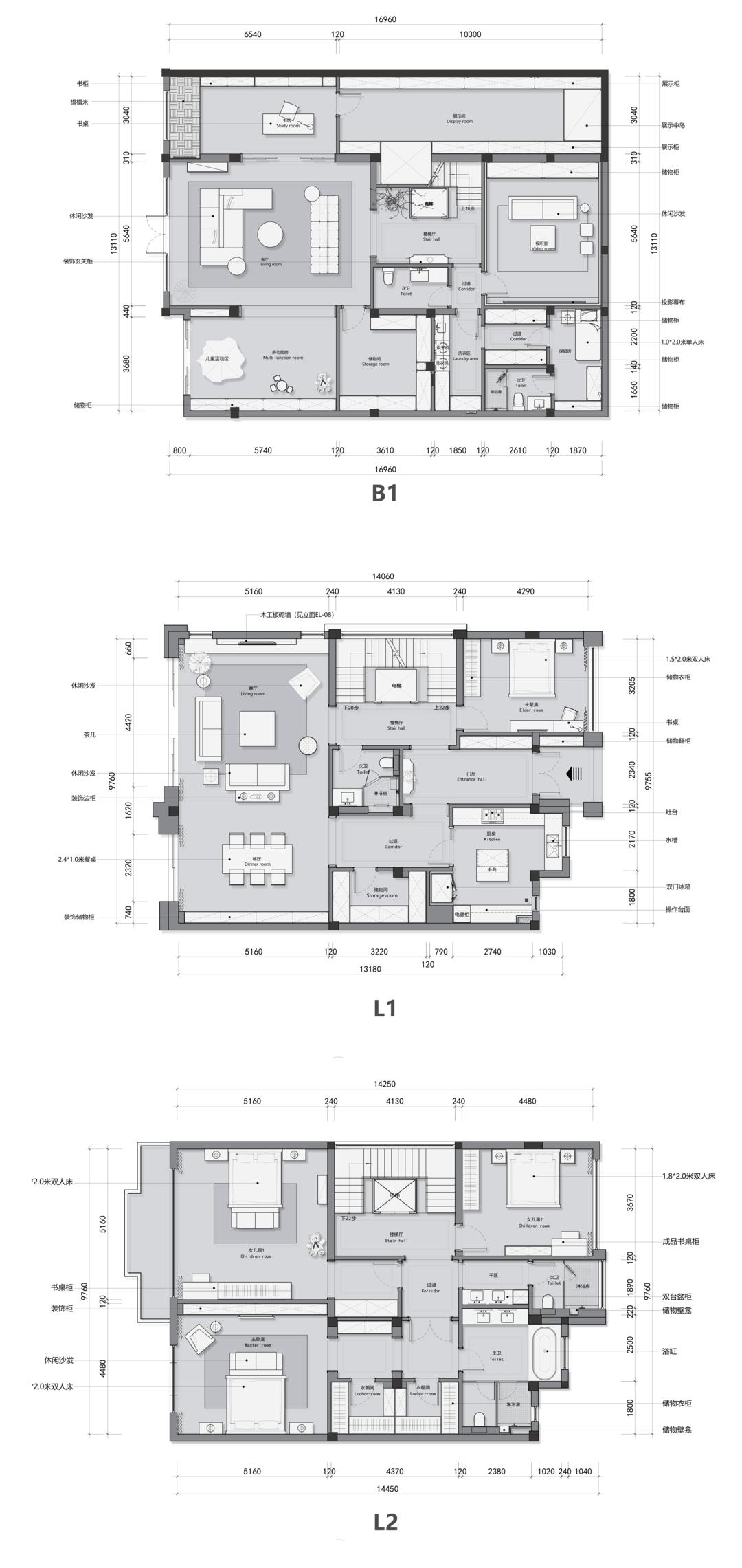
户型图

每个空间都很方正,层高足够,承重结构也不复杂,房子本身其实并不难改造。但是,作为度假用别墅,要优化的地方并不在这些方面,而在于满屋的藏品。 #户型图

我们改造的主要方面,有两个: 1、 因为需要在满屋陈列这些收藏品,如何在每个陈列空间安排合适的尺寸、温度、湿度、灯光等等,都是需要严格考虑的细节。因此,除了需要根据特殊藏品的尺寸来给每个空间做定制化设计外,暖通和智能设备都有了相应的升级。 2、 外部做了部分搭建以增加电梯厅、长辈房等功能,同时提高空间整体性。 3、 由于本案仅作度假使用,家里长期是没有人的,所以安防、远程控制等系统都要有精密的设置。 #户型图 #平面图
地下室

这套案子让我兴奋的点,就在这里:哪个男生没梦想过用玩具和游戏机装满自己的家,但只有老周真的做到了,多少年一点点地收集,一点点地从国外背回来…… #手办 #游戏区 #游戏机


除了地下室以外,几乎所有房间,都摆满了各种藏品:早期八位机的原版卡带、各种手办模型…… 甚至,主卧门口还挂着哆啦A梦原作者的亲笔签名。 #游戏区 #手办

地下一层是全屋的主要休闲活动区域,也是业主陈列藏品最多的地方。 #地下室 #游戏区

坐在榻榻米上打电动,颇有魂穿野比大雄的意思。 #榻榻米 #地下室 #地台 #游戏机

#地下室 #游戏区

正厅南面通往湖景花园,超大双开玻璃门让景色毫无遮挡引入室内,通风采光都很舒服。 #花园 #沙发 #玻璃门 #地毯

爸妈带着俩娃玩街头霸王,另一台给谁呢? #地下室 #游戏机 #游戏区 #沙发

游戏厅背面还有房间,暗藏乾坤。 #游戏区 #游戏机 #储物间

这些都是老周一点点从国外搬回来的原版机器,投币都是投的日元。 #游戏机 #游戏区 #储物间

影音室,不只陈列藏品讲究尺寸,还有许多影音材料,怎么收藏也很有讲究。 #影音室 #投影 #冰箱 #沙发 #投影仪

沙发背后的收纳柜子,里面全都是一部又一部的动漫作品。上面两台星球大战的冰箱供业主一家观影时随意取用饮料。 #影音室 #收纳 #冰箱

四周墙面,连顶面都是吸音板,保证音频*放播**时候不会从墙面反弹,让视听效果达到最佳。 #影音室 #沙发 #投影

家政间,原本这里没有采光,我们在顶面上开了个窗洞。 地面盖着地下室的污水提升泵。一般来说,小区的化粪池都在一楼地面,所以地下室是不能设置卫生间的,因为不能排污。有了这个提升泵,按下冲水,污物就能被粉碎后抽到一楼。 #地下室 #卫生间 #家政间 #保姆房 #提升泵
玄关

一楼进门就是两个招财“猫”。 #玄关
长辈房

长辈房定在一楼,方便业主父母生活起居。 #长辈房 #老人房


长辈房原本有一半空间是阳台,我们做了部分搭建,把阳台容纳进原空间里。原本阳台围栏部分成为落地窗,使房间采光最大化。看看改造前,一楼长辈房的一半就是这个阳台。 #老人房 #长辈房
客厅与餐厅

一楼南面定位为客厅与餐厅区域。 #餐厅 #客餐厅 #客厅 #沙发 #茶几 #吊灯 #窗帘

客餐厅四角都放了帝瓦雷音响,除了贵点,没毛病。 #电视背景墙 #电视柜 #沙发 #音响 #手办

餐桌上方,本来是简单的一排条形灯,稍稍调节角度,就能摆出不同造型。现在是条鱼。 #餐桌 #餐厅 #吊灯 #餐边柜 #窗帘 #餐椅

为了陈列业主更多藏品,餐边柜也比平常的更长。 #餐厅 #餐边柜 #餐桌 #吊灯 #沙发
厨房

定制的暗藏式洗碗机,连操作面板都藏起来了,能找到在哪吗? #洗碗机 #厨房 #橱柜

#洗碗机 #厨房 #橱柜

一般大宅的厨房里,中岛是比较常见的设置,家庭聚餐的时候方便所有人一同备餐,人少的时候可以充当水吧台和餐桌,十分实用。 #厨房 #岛台 #吧台 #中岛 #推拉门
卧室

为了保证主卧室空间的整体性,二楼的东半部分做了一个内嵌双衣帽间+超大卫浴的大套间。 #卧室 #衣帽间

#卧室 #主卧 #床 #床头背景墙 #吊灯 #窗帘 #落地窗

主卧电视柜,里面也是整面墙的影音藏品。 #窗帘 #电视柜 #卧室 #收纳

标准的三分离卫生间,墙地面都选择了爵士白瓷砖,提高空间整体性。记笔记:瓷砖不论做得再大,都是有接缝的,而且花纹都是统一的,直接铺贴就显得死板。要想空间显得大气,可以把瓷砖一切二再铺贴,让花纹不那么规则,好看还省钱。 #干湿分离 #瓷砖 #卫生间 #浴缸 #淋浴房 #壁挂马桶
儿童房

业主的两个女儿总是形影不离,希望在一个房间休息,西面其中一间房间就作为两个小姑娘的卧室,另一间作为书房。 #儿童房

#儿童房 #衣柜 #书桌
(图文来自:设计师史鹏巍)