
城市不断矗立钢铁丛林
是否遗忘了飞檐瓦砾的苍劲
还有粉墙黛瓦下的诗意人间
这一场东方生活美学的回归
上有历史文化自信可依
下有未来美好生活可期
实现真正的大隐隐于市

图片来源于网络
陈丹清在《局部》里说:
“八十年代我和木心也经常在这儿(纽约大都会美术馆)徘徊。有一次他忽然脸上很骄傲的样子,抬头来对我说:中国的器物,中国的雕塑,之成熟之高雅,一上来就独步世界。”
这不仅因为中国艺术、古典艺术在美学领域独树一帜,更因为东方美,蕴含了中国数千年的文化传承与自信。设计语言以穿越而来的古建筑引申,于南宁在地鼓文化和匠心雕刻中表现出独特的东方韵味。


壹
山水开局
在文化自信中感受穿越
一如世人对于《千里江山图》的震撼,建发央著的出现亦同众雅士一见如故。
历史文化与艺术是需要铭记的。步入前厅,可见一艺术装置造景入室,这是空间的妙笔所在。整个空间形式简洁纯粹且贴近自然,以水墨丹青色为主,融合了原木的温暖,玻璃幕墙将自然光纳入,力量美与流动的气韵在室内交融,虚实相生,时间仿佛被放慢。




金属与木作的新旧结合
碰撞出一处室内景观小品
来自于民族文化的自信
青铜鼓是中国古代南方和西南少数民族象征财富和权力的重器,可作典礼乐器、战争军鼓等。此青铜鼓鼓面及周身所饰五铢钱纹,表达人们祈求富贵的美好愿望,说明当时西南各族和汉族在经济交往、文化融合上的密切关系。

图片来源于
中国国家博物馆官网


花纹图样
图片来源于网络
设计师作为文化输出者,将广西壮族在地鼓文化容纳于空间内核,映射人们在今时今地的生活方式和艺术追求,亦是对“文化自信”的思索。
元禾大千用现代技术和雕刻手法让“五铢钱纹青铜鼓“穿越在空间中,重现经典与在地文化。




贰
移步换景
咫尺之内遇漏景
开窗莫妙于借景
透过雕刻出的空花墙
将无边风月借来
随着四季更迭
景致随之变化
一步一景、步移景异
造就了独一无二的东方美学
松柏唤起东方语汇中的人文意识,李白曾感叹:“清泉映疏松,知几千古?”古来文人爱松树,是时间流逝的见证,坚定可靠。



叁
新旧融合
再造空间对称之韵
古老的木雕艺术与新生建筑相融合,感受传统人居的无限魅力。400年的木雕建筑穿越而来,作为沧桑的见证,其经历岁月而愈发温醇稳重的形制与材质,恰如传统东方文明历久弥新的骨架,每一个角落都呈现出古朴浑厚的姿态,带来震撼的视觉冲击力。


空间布局上下对称,陈设左右呼应,俨然是承托中国式审美“强迫症”,沿用至如今的设计之中,震撼依旧。
建筑内结构的起承转合营造出独特的节奏美感,家具凝聚东方神韵、诗意的诠释以及精雕细刻的追求,其温润的材质、面料的色彩与室外景观交融,共同编织可以触摸的时光记忆。




每一处的花艺装置都象征着生命力,与百年雕刻营造枯木逢春的氛围,在新旧交际中沉淀发芽生长,戏剧化地生成空间视觉焦点。设计师将赏花、观画、烹茶和写诗伏线于细节中,不经意用空间来设计、来引导风雅生活的当代回归。





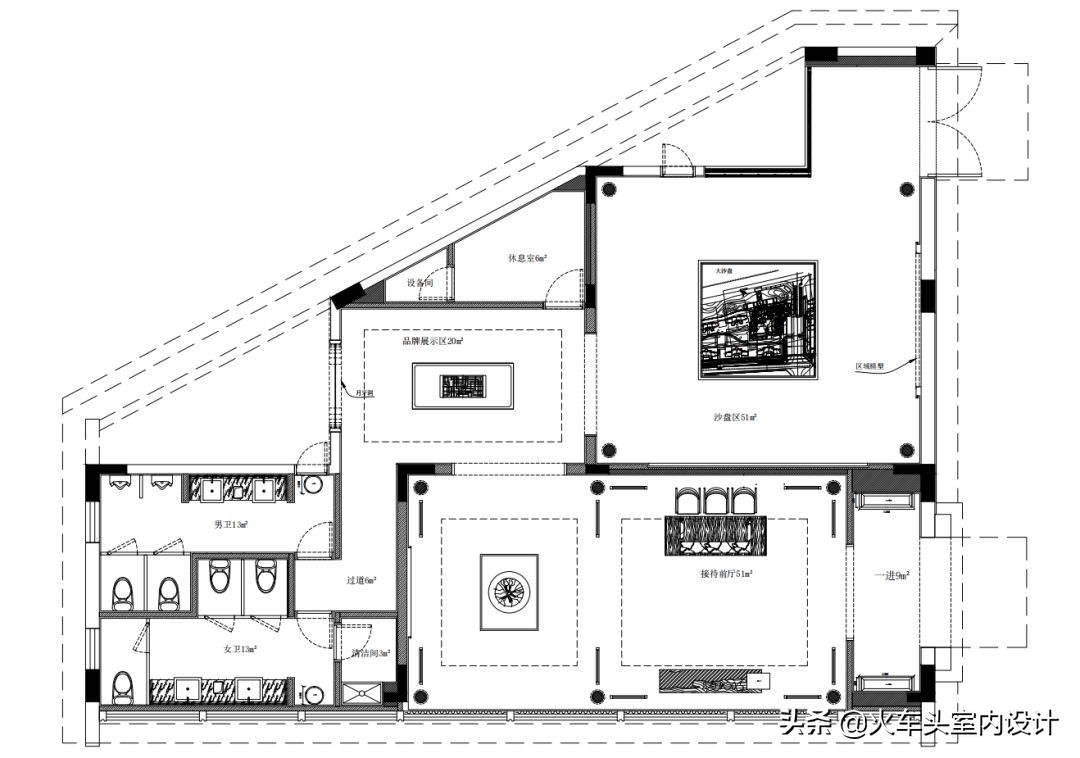
▲平面布置图

▲平面布置图
项目全名:建发央著销售中心
项目地址:广西南宁
软装设计:元禾大千
硬装设计:深圳盘石室内设计有限公司
设计时间:2020.09
完工时间:2020.12
空间面积:331㎡
甲方单位:建发房产华南区域南宁城市公司
特别支持:桂强
摄影团队:言隅建筑空间摄影