第一次买房时就非常喜欢复式的房子,但由于年轻囊中羞涩,只能买了平层的。这次换房决定一定要实现年轻时的梦想,非带露台的复式不买。所以这套房子也算是实现我年轻时的梦想吧,致我们逝去的青春!
2004年的房子,5复6的复式,(其实复式不带电梯的少之又少,看中这一套仅仅花了5秒钟的时间)很顺利的将自己的100平卖掉,成功入了这一套 建筑面积157平,实用面积180平的五房二厅的房子。
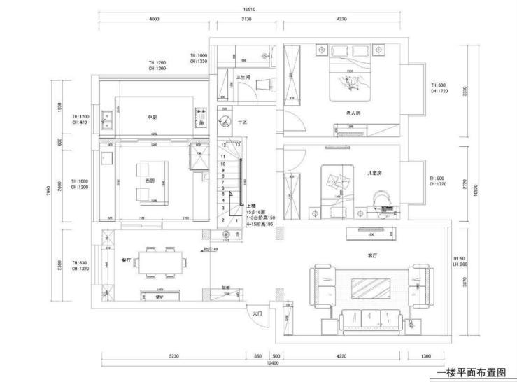
户型:5房2厅+3露台
面积:157平
关于装修,我和老公的意见一直是差不多的,当家的是个一直喜欢看美剧的难银,所以早就被美剧中的一些室内装潢早就被深深吸引了,于是二话不说我们意见统一《美式》,但美式分好多种,他呢比较喜欢美式乡村,而我呢喜欢简约的美式。最后我们就在纠结与徘徊中开始了我们的装修。
谈论起装修:从4月计划买房,到11月30日拿到新房钥匙,等到12月8日顺利开工,装修整整花了9个月+7个月做功课的时间,从春天到秋天,等拿到毕业照的时候,真的忍不住悄悄羡慕了自己一把,因为这些努力都是有所回报的!
先上房型图:


封面:
故事就从一套美式茶具开始讲起。。。喜欢坐在卡坐上和三二朋友一起聊天喝着下午茶,喜欢望着窗外发呆,喜欢闲来无事翻阅一些杂志,喜欢就是喜欢美式的东西,美式是一种简单而优美的风格深深的吸引着我,于是我就朝着我美式的梦想出以发。

看这里:
从大门进来,首先是进门的玄关,美剧中是不是常出现这种壁炉,配上白色的山茶花,一艘小船寓意带着我们全家幸福起航。

壁炉的右边就是客厅啦,6米多长,是不是很够霸气呢,壁灯和吊灯都是纯铜的。


正面一张

壁炉的左边是餐厅,美式的卡座展现的淋漓尽致

壁炉的对面是换鞋凳

餐厅的正前方就是我最最超级喜爱的厨房(分西厨,中厨)隆重登场
西厨:白色与绿色完美的结合,西厨由于层高问题,放弃了中央空调,遗憾啊。石英石台面配上小方砖。

现代化的烤箱蒸箱,可惜女主人我都不会用啊。

中厨来了,不知道某人有了蒸箱,为什么还要用微波炉,真心不懂。

再来一张,是不是感叹厨房真心大啊,当初看中就是因为够大。

站在中厨看餐厅

继续回到大门口的走道上面,左边楼梯下面是一间储藏室,右边第一间是儿童房,第二间是老人房

儿童房也是比较花心思的地方,从挑墙纸开始,这一面墙就用三种不同的墙纸搭配起来的

应该买美国*旗国**的,不知道当家的为什么会挑成英国*旗国**的,乱入一气啊

儿童房的衣柜手机拍摄

可爱的瓢虫风扇灯

过道右手第二间就是老人房
全实木家具,简美的风格显露无疑

再来一张,其实这个铜灯真心蛮大的,电话机真是败笔啊,明儿就去换掉

布艺沙发是我淘地,真心便宜

铜灯大吧,闪闪发着光

老人房出来对面就是干区了,干区是我比较满意的地方,细致到擦手巾也是BARZE的,台盆是科勒的梅玛系列

干区的边上就是一楼的卫生间了,美式标准的小砖登场,150*75的贴费真心贵,黑白经典乃永恒。暖风机选择了松下

再来一张 淋浴门做成了踏步式的

卫生间完毕,伴着楼梯来到二楼,楼梯是捷步的,将军柱是网上找的图片叫师傅订做的,安装的师傅装完之后直叹漂亮漂亮,楼梯的材质选择是榉木,脚感还不错。

站在楼梯向下看,墙壁上一对鹿爸和鹿妈寓意保护着我们家的小囡囡健康快乐。。。

鹿妈来张特写

楼梯来张全景

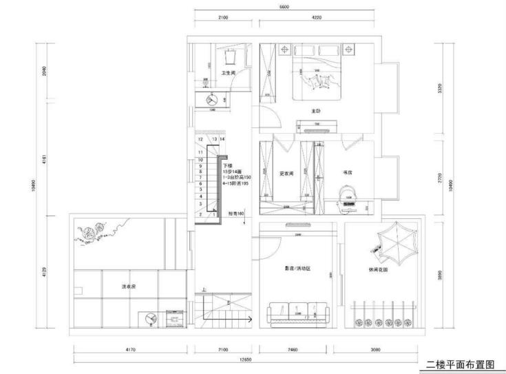
右手边的第一间是活动室,第二间是主卧,门关着的是主卫,门口依旧是干区。
那我们就先从活动室开始吧,活动室门口的门是美式标准的谷仓门,门上的字母贴自己搭配的不错吧

活动室全景,没有装中央空调有些遗憾吧。。

再来一张

活动室的正面

活动室的外面就是屋顶花园了,BBQ的最佳场所,请大家无视花花草草,被当家的打理的乱七八糟

椅子上的靠垫在运输的途中

离开活动室,请大家和我移步主卧,主卧全景噔!噔!噔!



主卫中有二扇门,打开左手边一扇是通往书房,打开右手边一扇是通往衣帽间

站在主卧打开书房,书房的一角

书房全景

书房的侧面

主卧的右手边一扇门里面就是衣帽间,衣帽间比较的乱,请大家忽视,随便看一看吧

接下来带大家去参观一下主卫 经典的白加黑,说起这主卫的玻璃门,是从杂志上看到的,特意叫师傅花了一个月时间去订做的铜条玻璃门,真心漂亮了。

再来一张,马桶选了挂壁式,这个马桶是2010的老款,之前一套房子就选用的它,这次特意又把他入了回来

淋浴房再来一张

二楼干区来一张特写
一圈手工掰手砖(纯手工窑制,贵货喔1000元一平方,真心稀饭)

站在干区,遥望整个过道,三扇移门的背后,一半是储藏间,一半是通往三楼的楼梯

站在主卧门口望着楼道

楼道中的灯再来张特写,是当家的硬要挑选滴铜条灯,貌似还搭吧,铜灯再来张

最后我们回到活动室,活动室的对面就是洗衣房,洗衣房分成二间,一间是洗衣房,另一间是晒衣房

洗衣房边上就是晒衣房啦,坐在晒衣房的小踏上欣赏着自己挑选的铁艺围栏

如果你近期就要装修,点击文末图片推广,获取多套设计方案!
———————分割线————————
这样的装修你喜欢吗?装修其实很轻松!
关注微信公众号获取更多资讯: zxsj315 (装修设计搭配)