九 珑 湾

01
作品信息
项目地址 / 合肥 · 九珑湾
项目户型 / 三室两厅
项目面积 / 121㎡
项目风格 / 田园美式
设计师 / 张成陆
设计施工 / 安徽华然装饰
02
项目背景
业主姐姐是一名高中美术老师,文艺气质十足,性格恬静而又温柔,与她交谈就感觉如沐春风~
家的气质和居住人的气质密不可分,本案整体是优雅精致的美式田园氛围,“开放式厨房+中岛台”的设计为生活注入满满仪式感;实木元素修饰墙面,门框和踢脚线,增添空间自然纹理的美感;墙面装饰是业主精心挑选的古典主义油画,烟火气与诗意和谐共生,家的“灵韵”就展现在这每一处设计细节与美学的对话当中~
--
03
设计解析

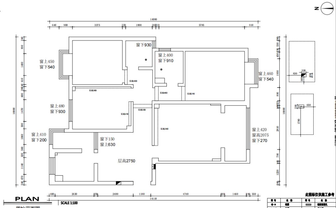
原始结构

设计方案
设计亮点
Highlights
本案这套房子是业主购买于09年,那时候建筑的房型不太讲究,所以存在很多不合理的地方。
①客餐厅和北阳台墙体全部拆除,打造开放式厨房,中间增设岛台餐桌设计。
②书房和过道之间的原有墙体拆除,将部分书房空间释放,扩大过道面积。
③书房和过道间新砌隔墙,留一个凹位,用来做内嵌式冰箱设计,隔墙两侧都做收纳展示柜。
④书房和次卧室门洞北移,调整客卫门的位置,增加客卫干区同时,做了入户正对面的端景。
⑤拆除客厅与主卧的原有隔墙,新砌“S型”墙,增加双面收纳,主卧一侧是衣柜,客厅一侧展示柜。
⑥调整主卫与主卧的隔墙,将面盆向主卧方向推进20公分,增加干区空间,面盆的另一侧则做内嵌式的衣柜和梳妆台,梳妆台深度为26公分,衣柜深度为55公分。
玄 关

入户进门处,一组实木斗柜置于视野的右侧,依靠不可拆的实墙,增加实用性的同时,将视线焦点转移到左侧和前方更开阔的视野空间,减弱实墙的拥堵感。

地面仿古瓷砖和实木地板无缝拼接,颜色和材质不同但接近,让功能区域划分更加自然。远处端景墙上的《向日葵》,用色浓烈而张扬,展现的是一种生命的热烈,一种居者对生活的蓬勃热情。

嵌入式收纳柜和卧室门以及门套,踢脚线在材质和颜色上保持统一,材料厚重所以柜面就用轻巧的线条做装饰,经典又充满生活气息。
客 厅


客厅的硬装是米白色系,电视背景墙用实木修饰了部分区域,沙发背景墙则是简单的线框,复古的主灯搭配简约的回形吊顶,客厅将整个重头戏放在了软装家居上。

主沙发选择了咖啡棕的纯皮质,电视柜和茶几也是相近的颜色,深色质朴的材质带来的是稳重感和品质感,细节处则增添更丰富的颜色和花样,蓝橙格子的单人椅,碎花元素的桌旗,几何元素的毛毯,清新又复古。

阳台和客厅之间的移门拆除,阳光更好地引援至室内,阳台地面是釉面质感的美式仿古砖,拼接处还做了小的花型,精致好看又耐磨实用。
餐 厅


餐厅厨房的改造是业主最满意的地方,开放式厨房搭配餐厅中岛,将现代的生活方式和复古的装修风格结合,餐厅顶部的木梁和地面的瓷砖拼花,打造出一种休闲式的浪漫情调。
卧 室




主卧背景墙是橙色+米白的拼色墙漆,搭配细致的雕花,纯白色衣柜采用嵌入式设计,深度在55cm,视觉上看却只有柜门的一个平面,既能装下大件衣物,视觉效果又不显凌乱突兀。


女儿房是最东边的北次卧,整体是干净清爽的粉色系,石膏线背景墙搭配素色墙漆,简约又耐看~
卫生间

主卫的设计比较现代化,经过改造,干区的面盆现在深度有40公分,使用起来比较舒适,悬空式的设计让后期的打理更加方便。

客卫经过改造,形成的干区面积不大但非常实用,空间利用得更加充分。
点个关注,私信[小区+面积] 免费领取您家的专属设计方案和报价哦 [送心]