

建筑是能够满足一定建造目的、有着极强功能性的大型载体。建筑设计,是设计师的理念诠释也是人文交流的重要手段。
设计师对建筑的艺术性呈现,对城市的建设发展也有着极大的推动作用。人文艺术类的建筑也是对一个城市历史和文化的释放,也是设计师们不断地钻研的设计成果。

01- 建筑特色

文化艺术类建筑的构造形式一般有很强的标志性,展现着建筑所具有的文化特色。通常文化艺术类建筑的占地面积比较广,比其他性质的建筑外观上更具有艺术感,线性美感更加强烈。

例如深圳龙岗公共艺术馆,它是由四个建筑组合而成,四个建筑外部呈红色块状,整齐排列依次连接。从侧面看建筑外观墙体微微向外倾斜,黑色玻璃做点缀。
建筑占地面积广泛,并且具有严格的高度限制。从外观上形成了一个视觉连贯的整体,没有明显的正面或背面之分。是一个丰富多彩的文化项目,也是作为城市标志性的区域象征。


02- 展示分区

文化艺术类的建筑都有展览的功能作用,室内通常多围绕主题来进行设计分区。通过分析建筑内部的展示主题和面对人群,对展示空间进行布置规划。


建筑的内部总体布局注重整体化与合理性,强调文化内涵,色彩搭配在一定程度上也丰富许多,将人文、娱乐、休闲结合一体化呈现。


设计师在对内部空间进行设计时,会制定合理的人流动态走向,形成展厅的观赏流畅性。区域标识的设置是可以让游客在内部空间保持方向清晰,能准确找到目标位置。


03- 室内设计

室内工装设计是一个环环相扣的过程,方案、技术、施工图的逐步实施能够让室内布局清晰起来。在设计过程中,有几个点需要注意。
色彩,人文艺术建筑的室内色彩较为多元化,讲究整体的色彩和谐。浅色使人清爽舒适,深色给人神秘深沉,通常空间颜色都是根据位置自由搭配选择。比如,休闲区域就会用浅色系作为主调,浅灰色、白色能够给人视觉上缓解疲劳的效果。


展示区域的色调会根据展示主题来决定,科技主题常用深色作为主调,深蓝色的墙壁与灯光相互作用,白色多边形的色块做点缀,给人营造处在未来空间的氛围感受。

材质,铺装材质的选择需要考虑耐受性,在人群密集场所耐受性强的材质使用寿命更长。光照,光照分为自然光和灯光。自然光能够使建筑物更加通透,灯光能使展示物的效果更加强烈。


当然,建筑设计可没那么容易。为了让大家更清晰的了解,小编为大家准备了 深圳龙岗公共艺术馆设计资料, 能够帮助大家更清晰的学习,赶快来领取吧!!!
深圳龙岗公共艺术馆设计资料
资料总预览
【01】方案效果图
【02】建筑、室内模型
【03】施工图
【04】其他
01 方案效果图





















02 建筑、室内模型








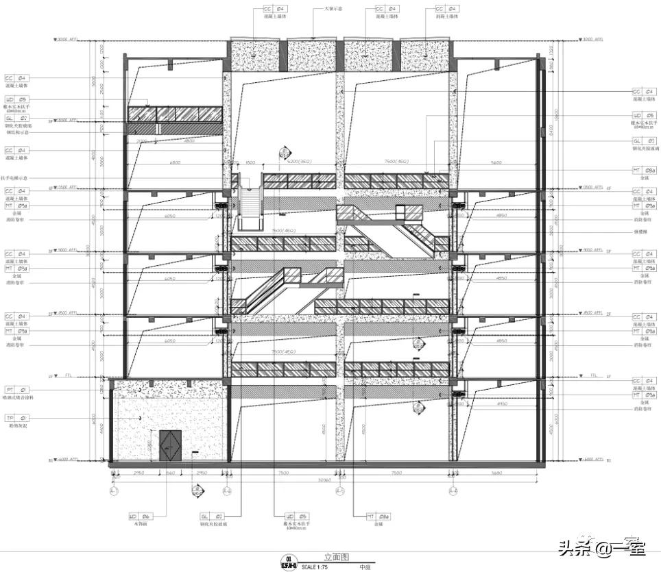
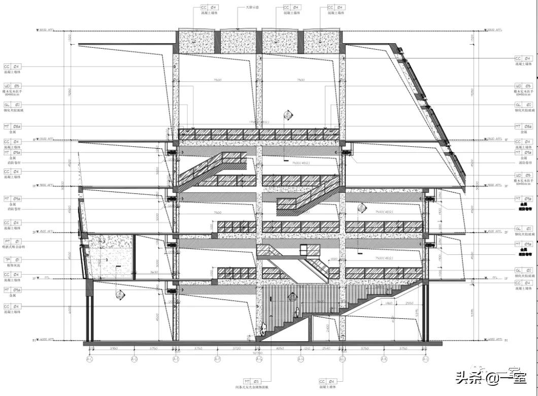
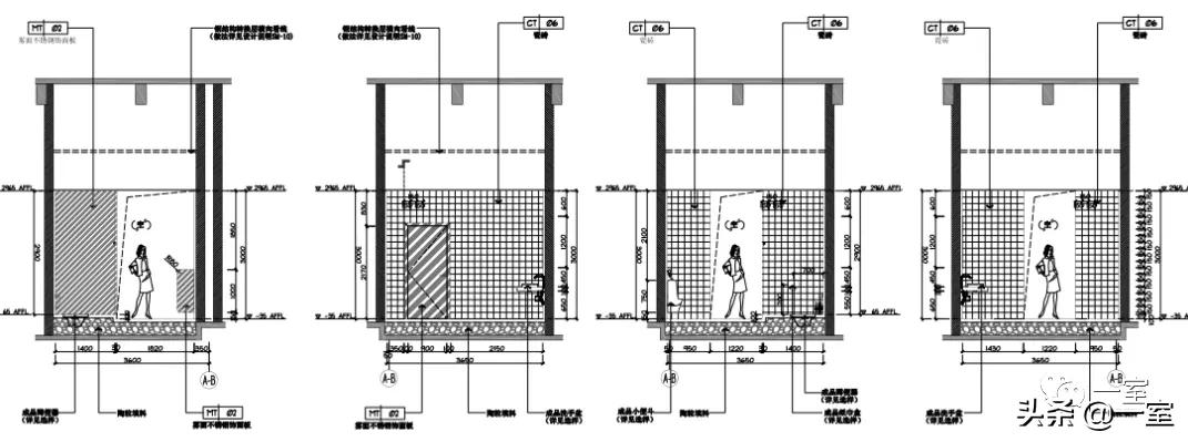
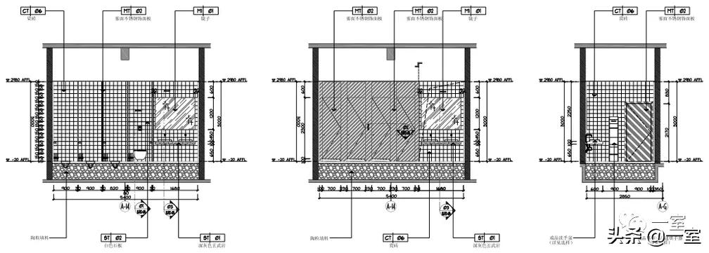
03 施工图
(施工图包括公共艺术馆平立面图以及商业区等)














04 其他
(包括展品展项清单以及施工现场照片等)
▲以上仅为展示部分
【免费领取】关注+转发 后私信“素材”
版权声明:我们尊重原创。文字美图素材,版权属于原作者。部分文章推送时因种种原因未能与原作者联系上,若涉及版权问题,敬请原作者联系我们,立即处理。