
新加坡Kampung Admiralty 综合体项目
Kampung Admiralty / WOHA
来自建筑事务所的描述:Kampung Admiralty是新加坡首个综合公共开发项目,其中结合有公共设施和服务部门。这种项目的一般做法是将每个功能分成独立的体块,但是,这个综合体项目却最大限度地利用了土地资源,这满足了新加坡人口老龄化的社会趋势。
Text description provided by the architects. Kampung Admiralty is Singapore’s first integrated public development that brings together a mix of public facilities and services under one roof. The traditional approach is for each government agency to carve out their own plot of land, resulting in several standalone buildings. This one-stop integrated complex, on the other hand, maximises land use, and is a prototype for meeting the needs of Singapore’s ageing population.

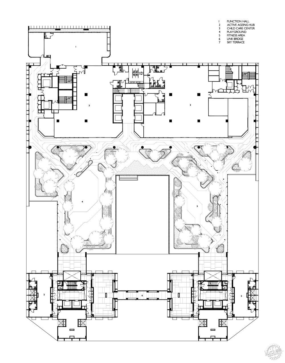
项目位于一片紧凑的0.9Ha场地之中,场地显高为45米,建筑师运用了“俱乐部三明治”策略,构思了这座“垂直Kampung村落”,建筑下方结合有社区广场,中间是健康中心,上部是老年人的社区公园。这三个不同的层次组合在一起,结合了多种功能,促进了功能的多样发展,为人们留出更多的活动空间。整个项目集健康、社交、商业等设施为一体,符合社会老龄化需求。
Located on a tight 0.9Ha site with a height limit of 45m, the scheme builds upon a layered ‘club sandwich’ approach. A “Vertical Kampung (village)” is devised, with a Community Plaza in the lower stratum, a Medical Centre in the mid stratum, and a Community Park with apartments for seniors in the upper stratum. These three distinct stratums juxtapose the various building uses to foster diversity of cross-programming and frees up the ground level for activity generators. The close proximity to healthcare, social, commercial and other amenities support inter-generational bonding and promote active ageing in place.




社区广场位于地面层,它面向公众开放,这里同时也是一座社区客厅。在这个空间内,人们可以进行多种活动,例如节庆、商业、二层的小吃街等等。中心广场上部安装有遮阳棚,无论何种天气状况,都不会影响人们的活动。
The Community Plaza is a fully public, porous and pedestrianised ground plane, designed as a community living room. Within this welcoming and inclusive space, the public can participate in organised events, join in the season’s festivities, shop, or eat at the hawker centre on the 2nd storey. The breezy tropical plaza is shaded and sheltered by the Medical Centre above, allowing activities to continue regardless of rain or shine.



Kampung Admiralty综合体还设置有健康中心,居民没必要时常往医院跑,这里可以满足简单的医疗与健康需求。为了促进康复,健康中心的咨询区和等候区都设置有大面积开窗,阳光穿过中央庭院直接照进建筑内部。其下方是社区广场,上部是社区公园,人们可以自然而然地感受到自然景色与阳光。
Locating a Medical Centre in Kampung Admiralty means that residents need not go all the way to the hospital to consult a specialist, or to get a simple day surgery done. To promote wellness and healing, the centre’s consultation and waiting areas are washed in natural daylight from perimeter windows and through a central courtyard. Views towards the Community Plaza below, and the Community Park above also help seniors feel connected to nature and to other people.

社区公园是规模高度较大的乡村绿地,在这里人们可以健身、聊天,亦或是照看社区农场。另外,诸如儿童日托中心和高级托管中心的项目也位列于此,让年轻人和老年人可以共同活动与玩耍。该项目设置有104套公寓,分布在两座11层的体块之中,主要客户是独居老年或夫妇。在项目的入口设置有许多长椅,这让居民可以在此与邻居们互动。公寓单元采用了通用设计原则,因此有着充足的自然采光和通风。
The Community Park is a more intimately scaled, elevated village green where residents can actively come together to exercise, chat or tend community farms. Complementary programmes such as childcare and an Active Aging Hub (including senior care) are located side by side, bringing together young and old to live, eat and play. A total of 104 apartments are provided in two 11-storey blocks for elderly singles or couples. “Buddy benches” at shared entrances encourage seniors to come out of their homes and interact with their neighbours. The units adopt universal design principles and are designed for natural cross ventilation and optimum daylight.










建筑设计:WOHA
地点:新加坡
项目团队:Wong Mun Summ, Richard Hassell, Pearl Chee, Goh Soon Kim, Phua Hong Wei, Richard Kuppusamy, Jonathan Hooper, Yang Han , Lau Wannie, Gillian Hatch, Kwong Lay Lay, Zhou Yubai
项目时间:2017年
摄影:Darren Soh, Patrick Bingham-Hall, K. Kopter
室内设计:Sofwan , John Paul R Gonzales
土木工程:Ronnie & Koh Consultants Pte. Ltd.
机电工程:AECOM Pte. Ltd.
数据测量:Davis Langdon KPK (Singapore) Pte. Ltd.
灯光咨询:NIL
景观咨询:Ramboll Studio Dreiseitl Singapore Pte. Ltd.
平面设计:NIL
绿地咨询:AECOM Pte. Ltd.
可持续环境设计:NIL
厨房顾问:NIL
总承包商:Lum Chang Building Contractors Pte Ltd
场地面积:8981.00 m2
总面积:32331.60 m2
客户:Housing & Development Board
Architects: WOHA
Location: 676 Woodlands Drive 71, 730676 Singapore
Project Team: Wong Mun Summ, Richard Hassell, Pearl Chee, Goh Soon Kim, Phua Hong Wei, Richard Kuppusamy, Jonathan Hooper, Yang Han , Lau Wannie, Gillian Hatch, Kwong Lay Lay, Zhou Yubai
Project Year: 2017
Photographs: Darren Soh, Patrick Bingham-Hall, K. Kopter
Interior Design: Sofwan , John Paul R Gonzales
Civil & Structural Engineer: Ronnie & Koh Consultants Pte. Ltd.
Mechanical & Electrical Engineer: AECOM Pte. Ltd.
Quantity Surveyors: Davis Langdon KPK (Singapore) Pte. Ltd.
Lighting Consultant: NIL
Landscape Consultant: Ramboll Studio Dreiseitl Singapore Pte. Ltd.
Graphic Designer: NIL
Greenmark Consultant: AECOM Pte. Ltd.
Environmental Sustainability Design: NIL
Kitchen Consultant: NIL
Main Contractor: Lum Chang Building Contractors Pte Ltd
Site: 8981.00 m2
Gross area: 32331.60 m2
Client: Housing & Development Board
由专筑网李韧,王帅编译
【专筑网版权与免责声明】:本网站注明“来源:专筑网”的所有内容版权属专筑网所有,如需转载,请注明出处