今天这对来自古城西安的母女俩,
三年前买下了一套111㎡的三居室房子,
却迟迟没有装修入住……
这是为什么呢?
业主吐槽说,
她是被开发商前期销售的户型图忽悠了,
本以为母女两人能住得宽敞又舒适,
收房看到的现实却是:
房子结构面积分配十分不合理,
又黑又小,且通风极差。
那一刻,她悲愤交加,
甚至恨不得马上转手卖掉……
不过,有时候理想与现实,
只隔着一个优秀设计师的距离~
我们来看看这场“化腐朽为神奇”的改造。

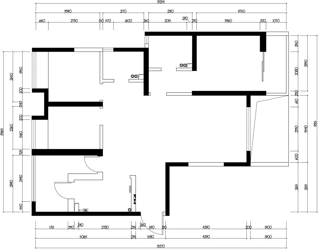
原始户型图
“又黑又小不通风”的感受怎么来的呢?
从户型图其实就能看出来:
1、进门是黑暗的走廊,狭小的厨房和生活阳台挤在一起;
2、没有可以好好吃饭的餐厅,动线非常混乱;
3、客厅受南边窗外挑檐和北边卧室的影响,采光和通风非常差;
4、原始户型虽然是三室,但两个次卧的面积非常小,不是正常的卧室尺寸。

改造后户型图
业主希望家是纯净而且有故事感的,
温暖、通透、轻松,无需过多装饰,
储物空间充足,并尽量扩大次卧的面积。
改造要点:
1、北向生活阳台搭建顶立面,打掉原墙体,重新构建通透的厨餐厅;
2、三间卧室改成两卧+开放式多功能厅,改善客厅采光和通风;
3、变更客卫位置和布局,最大限度增加次卧面积;
4、调整主卧入口,增加mini洗衣区及卫浴收纳。

收纳示意图
业主希望的合理收纳也用心做了安排:
全屋不仅有超大面积的收纳空间,
并且都尽量规划在了动线上最便利的位置,
动线和收纳并举,井然有序。

轴测图
玄关
纯净白、水磨石,还有自然材质的家具,
打开门的瞬间,
就感受到怀抱一样温暖的家之味。

进门的视角
玄关柜侧面留了一个小壁龛,
可以摆放装饰品装点心情,
随手放些小件的钥匙、零钱也很方便。
换鞋凳下方墙面预留了感应开关,
用来控制壁龛和进门玄关顶上的射灯,
夜间归来时,自动明灭的暖色灯光
仿佛一位老朋友一般贴心了~

餐厅看向玄关
右边是入户门及换鞋区,
左边的复古绿冰箱是餐厅的颜值担当。
放在餐厅的冰箱更多承担保鲜功能,
是各种饮料、零食甚至化妆品的好去处。

门口露珠形的镜子像个相框,
映出了美好生活的景象。
餐厅
思维观念的转变影响了生活方式,
餐厅正逐渐成为家庭的核心活动区、
社交区甚至是工作区,
可以实现家庭50%的综合功能。

设计师拆掉了原阳台和厨房之间的隔墙,
重新建立了一个超大的LDK区,
玄关、中厨、岛台区、洗衣及小家电操作区
都一一穿插其中,并且动线合理流畅。

浪漫的拱形门洞是这个家的特色之一,
折角边缘处理成圆润的弧形,
光线转折就会变得柔和,
让整个屋子的氛围显得愈加温柔。
全屋采用了中央空调和新风系统,
定制了隐形内嵌加长风口,
在尺寸和安装位置上加以管控,
尽量弱化风口对顶面的影响。

如开关这样的小细节也精致十足~
ps:这款开关安装其实很方便,
墙面预留86底盒,利用内部连接件连接,
比进口的复古开关电路预埋简便~
需要注意的是,虽然厂家提供定制,
但开关分路控制还是越少越好,
拨杆越少,颜值越高。

水磨石岛台台面与地面呼应,
既耐脏耐刮,颜值也是百看不厌。
岛台上还巧妙隐藏了原厨房的分水器。
使用了双出水的龙头,
生活用水和净水一步解决。

靠墙设置了超薄边柜用来收纳餐具,
而岛台因为分水器位置的限制,
靠近边柜的一侧过道只有70公分宽度,
因此用实木条凳取代了餐椅,
不会觉得空间局促或影响柜门开启。
左边的白色立管是原厨房的下水管,
刷白以后配上实木台板,
就不会显得突兀。

卫生间比较小,洗衣机放不下,
就放在了靠近厨房的餐厅,
洗衣机上面顺势做小家电操作台面。
隔墙因为是后砌的,
也预留了可以放杂物的台板。

从餐厅看向多功能厅,
西厨台面、餐椅、开关、书架同为木色,
但实际材质工艺各不相同:
书架是樱桃木贴皮,
复古开关为黑胡桃木木蜡油,
西厨台面是实木颗粒板,
餐椅则是成品曲木。
设计师和供应商多次沟通,确定色板,
最终保证了它们色调的和谐统一。

拱门旁开了一扇小窗增加空间通透感,
此处也使用了水磨石材质的台板,
和地面水磨石为同一种材质,
与岛台的水磨石台面相呼应。
为了控制造价,地面水磨石等级略低,
岛台台面则用了更高级别的环氧水磨石,
密度更高,更持久耐用。

餐厅和客厅的空间是互相连通的,
精心设计的拱门把直白转变成了含蓄。
将来还可以在拱门处安装罗马帘,
那会是一种层次更丰富的浪漫。
厨房

为了和全屋风格保持一致,
专门从上海定制了传统工艺的铁艺玻璃门,
沉甸甸的,各种细节质感十足:
框架表面喷砂,独立安装的钢化玻璃,
双开门的超静音合页,复古门把手……
历时45天的等待,经历运输安装的辗转,
在装上的那一刻觉得一切都值了。

北边生活阳台搭建后改成了厨房,
U字形橱柜动线合理,从右向左,
储存、备菜、清洗、切菜、烹饪一气呵成。
业主习惯用电磁炉和烤箱做饭,
油烟比较少,所以墙面没有贴砖,
采用了防水乳胶漆来处理。
灶台处用了橱柜同款的实木颗粒板,
保护墙面免受油烟困扰。
ps:用燃气灶的小伙伴不建议这样做,
因为时间长了板材会褪色。

特意选了宜家的半嵌菜盆,
复古水盆龙头和净水龙头来自某宝,
颜值在线,质量也非常棒。
盆下安装了垃圾处理器和净水器,
单独配了潜水艇的多功能下水,
实现净水器废水口与菜盆下水的合并安装。
客厅

对于比较小的户型,
要解决家中大型用品的收纳,
比如行李箱、运动户外用品等,
客厅做储物柜真的非常实用。
柜子的吊顶里暗藏了电动投影幕布,
可以利用具有侧边投影功能的投影仪
打造温馨的家庭影院。

沙发左侧这盏优雅的落地灯
是设计师Poul Henningsen的经典之作,
原版设计于1960年,目前已经停产,
国内代购的价格在2万RMB左右……

沙发右侧的墙面错落挂着几幅小品。

客厅一整面的收纳柜在靠窗处
做了颜色和形式的变化,
设置了四层抽屉+吊柜,
更方便收纳小件物品和书籍。
吊柜下方安装了感应灯带,
傍晚时分,暖暖的灯光落下来,
松绿色单人休闲椅和暗姜黄色丝绒窗帘
都会散发出一种时光沉淀的美丽。
多功能室

原本的客卧太小,不实用,
设计师拆掉后改成了多功能室。
墙体向走廊部分压缩了30公分,
一方面成全了内嵌的书架,
另一方面也为客卫争取了更多空间。

打开后的多功能室与客厅贯通,
一举解决了采光和通风的问题。
写字、画画、看书、瑜伽、聊天、品茶......
家,真的有一万种可能。

这一组实木桌椅是业主的旧物,
放在这个轻复古的空间中,
一点儿也不违和。

飘窗上设置了茶桌,
配上轻柔的白纱帘,
不冷不热的晴天,
可以和朋友对坐喝茶聊天。

架子上林林总总的书籍、摆件,
满满都是沉静的人文气息。
主卧

原本露天的阳台被并入室内,
并拆掉了阳台与卧室的推拉门,
让卧室更显宽敞通透。
晴天的阳光洒进来,可以覆盖整张床,
坐在窗边的摇椅上晃一晃,
看着花花草草晒着太阳,惬意~

业主喜欢1.8m有包围感的大床,
加上床围床体,整体宽度接近2m,
因此选了轻巧的床头边几;
另一侧用边柜收纳小件衣物,
其他衣物放到了卧室门后和客厅的收纳柜。

卧室与阳台的关系。


MCM风格的挂墙柜解放了地面,
玻璃小柜被装到了最顶上,
给家里最大个的柠檬树足够的生长空间。
挂墙柜的每个单元都可以随意挪动,
可以根据心情随时转动。
次卧

次卧室是给上初中的女儿住的,
将客卫挪出去以后面积扩大了不少。
1.5m宽的榻榻米连接着飘窗和书桌,
最大化留出活动的空间。

小空间的装饰简约就好,
白色基调,干干净净很舒服。

空间很小,收纳就是见缝插针,
林林总总加起来也很可观。

这个小窗户是原来客卫的窗户,
用白纱做了半嵌帘后,
成了书桌边独具美感的一景。
卫生间

飞机头的复古台盆套装,
巧妙的横向采光窗。
客卫面积虽小,收纳也做得足足的。

主卫智能马桶、电热毛巾架样样齐全,
墙顶面选用芬琳专用防水乳胶漆,
可以节省贴砖占用的空间,
还能随心所欲改变墙面颜色,
是设计师疯狂打 call的好物。
悬挑浴室柜、墙出水龙头、台下盆,
可以显著减少卫生死角。
设计的走向,是让客户满意,
还是超出客户的预期,高屋建瓴?
基于对业主的深入了解和判断,
设计师知道,这个家不仅要简约,
还要有一些“特殊气质”,
有时间轴线上的冲突和文化地域的融合。
如此,让这个家 多点 “耐人寻味”,
让母女俩的生活多点浪漫的温度。