中国丨台湾|住宅设计丨设计:ST design studio
从学生时代就一头栽进积木世界的乐高艺术创作家大黑白,不仅在网路创建了专属积木王国,也在历经数次带着乐高搬家的经验后,终于寻得一处可将创作与生活相互结合的「黑白城堡」。一开始就锁定新屋与毛胚屋的黑白表示,其实主要是害怕脏。

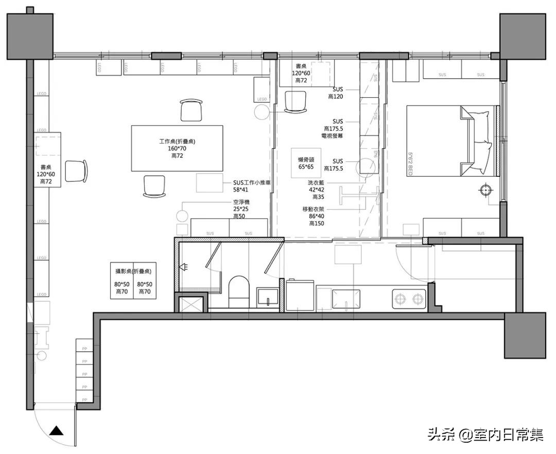
另外则是因为不喜欢制式化的空间,所以撇除传统两房一厅的格局,透过三排共11 道拉门模糊室内界线,使全室具备高度灵活性,并采用活动家具使空间保有绝佳弹性,宛若乐高般可依需求随时变动,让住家非住家、工作室非工作室,使家活出自己的真实样貌。

大黑白家的基本资料
新北新庄 / 新成屋 / 居住时间约 3 个月 / 室内 24 坪 / 格局 2 房 1 厅 1 卫 / 居住人数 2

< 各别空间 >
1. 客餐厅 / 工作室设计:
破除传统住宅的既定印象,在购置新屋后,黑白就与女友一同丈量毛胚屋尺寸,并按照自己想法绘制了图面,他笑说,因为全室没有任何隔间,也没有所谓的客厅、餐厅或工作室的划分,依循墙面摆放的柜体上也仅标示了LEGO 的字样,所以就连设计师刚拿到图面时,也说有点难以理解。经过讨论后,利用玻璃拉门勾勒出既紧密却独立的生活环境,让客餐厅同步兼具工作室用途。

主要采取活动家具为主轴,并选用折叠桌使此区可依需求调整桌面长度,让非工作时也可拥有宽敞的活动面积,地坪则选用75 x 75cm 的大面磁砖,借此减少沟缝数量,避免灰尘堆积外,也使推车移动时不会产生过多声响,而「浅浅灰」色调予以纯白环境一抹稳定调性。黑白开心表示,以往受限于空间,许多乐高零件只能另外用袋子盛装、搁置在角落,现在每个零件都有自己的家!
2. 书房设计:
紧邻公空间的书房,仅用一道拉门做为划分,平时可完全敞开使空间相互串连,形塑通透敞朗的视感,如若女友需工作时,只要将门扇拉起,即可成为独立且安静的工作环境,让两人互不打扰的完成手边事物。此处同时也是他们可以放松休憩、玩电玩的绝佳场域。

3. 厨房设计:
特别从日本代购回来的无印良品冰箱,是厨房的主要核心。因此厨具顺其样式以简白色调+银灰金属为主轴,形塑一式到位的简约纯白质感。黑白特别分享说:「厨具的金属把手刻意反方向安装,让凹槽向下,这样就能避免灰尘堆积。」然而开放式的厨房,只要在烹饪时把拉门合起,就能避免油烟四处蔓延。

4. 卫浴设计:
唯一有实墙隔间的卫浴,因为黑白不想花费太多时间刷洗地板,于是向设计师询问,有没有一整片、无磁砖沟缝的选择。因而找到拥有大尺寸、耐刮且不吃色的耐丽石薄板,使淋浴间延续一贯净白色调,让脏污无所遁形、随时保有简洁透亮的环境。


< 屋主 Q&A >
喜欢的居家风格?
极简风,像无印良品的风格。
灵感参考来源?
没有特别参考的网站,主要以自己喜欢的简约、纯白与好整理的方正格局为主。

喜欢的居家品牌?
无印良品
家具采购来源?
无印良品的SUS 钢制组合层架,模组化的设计和乐高相似,可依照需求随意转换样式;乐高零件主要以树德柜收纳,分隔抽屉可完全拉出,直接放置在桌面创作,也可装设轮子使用,非常便利!

朋友形容你家是?
「无印良品的样品屋!」喜欢极简风的朋友都会觉得很漂亮,但也曾听过相当有趣的评价,像是搬家师傅第一眼就说:「这没有什么装潢齁。」然后也有朋友说很像仓库,女友弟弟则说,比较像工作室不像住家。

最满意的空间?
全部都很满意,因为这是一个大空间,不能以各别空间做划分,所以每个地方都很喜欢。
最不满意的空间?
没有,就算有不满意的地方,也可以透过活动家具进行调整,因为整个空间都是活的!

最满意的家具?
冰箱,因为是特别从日本无印良品代购回台湾,所以整个厨房都是以此作为主轴规划!
最开心的事情?
原先住家只有 14 坪,而且还隔成了两房一厅,所以乐高零件都需放在另外的房间,在创作时相当不方便。现在则有了可以翻滚、不会拥挤的大空间!

最不开心的事情?
当初厨房施工时,因为系统橱柜的工班师傅不够细心,所以在安装洗碗机和抽油烟机时没有施作确实,导致最后呈现效果不如预期,一直到入住两周了才全部调整好,但结果还是勉勉强强。

最自豪的事情?
拉门,因为从来没有住过像这样的房子!
下一步 DECO 计画?
对于现阶段的整体装潢都十分满意,但如果未来结婚的话,应该会重新调整家具的部分。
给网友的布置建议?
「一定要有自己的想法,也要了解自己的生活习惯。」像我不喜欢打扫、喜欢纯白明亮的空间,所以过于复杂、不好整理的风格样式,或是传统的几房几厅格局就不适合我,让空间去配合自己、符合个人生活型态,才是完美的室内空间。

图文来自decomyplace侵联删
編輯 Cynthia
攝影 Hey!Cheese
无水印图在我公众微信号(室内日常集)上,欢迎来玩~
希望我喜欢的恰好你也喜欢,关注点赞评论不迷路~