一:能做好厕所的设计师才是好设计师
硕士毕业后,我开始了建筑师的不归路,第一站就是跟厕所死磕。目前经验值不断上涨也是多亏了前期长达6个月的厕所特训。
众所周知,基本上只要是建筑就会有厕所,所以在老板的坚持下,刚跨入公司的新人都必须把能够在任何可能的情况下最好用的厕所作为第一目标。能做出好厕所的建筑师才是好建筑师。笑。
因此,在家装设计中,最直接了当需要解决的当然也是厕所问题。能解决好厕所问题的住宅才是好住宅嘛!
做家居装修挑建筑师的时候,也可以此为标准。笑。
在国内家中用惯的是马桶、洗面台、浴室一体的“非分离式布局”,厕所大的可以放写字台。以前做住宅设计甚至公用建筑都是习惯了厕所画个框,能排个马桶水池就够得上详细设计了。
以及刚来日本工作的时候住公司宿舍也是这种模式,洗衣房分离开也可用公用洗衣间的洗衣机,格局大概是这样的:

这样马桶洗面台和浴室一体的布局方式被称为BATH TOILET(バストイレ),类似于酒店的布局。怎么样,觉得还可以吧?是不是觉得很亲切呢?
当时觉得还挺方便的:浴室有浴缸,淋浴的时候拉上帘子水也不会溅到马桶上,上厕所和上洗手间可以随时切换模式,换洗的衣服可以扔在马桶上等等。
后来准备搬家的时候找房子,发现只要是这种模式的卫生间浴室,租金都会比同等面积的四式分离的卫生间低很多,房地产中介也会指出:这个户型的缺点是BATH TOILET;而日本的设计公司在做设计的时候也是无论多小的面积,都一定要拼命挤出个四式分离来。
其时非常不解。直到搬家之后。自从用过四式分离的卫生间之后就再也没法适应一体化的BATH TOILET了。什么是分离式的卫生间,它到底有哪些让人着迷的地方?希望能够借这个平台为大家分享卫生间周边的空间设计。
这个布局中用玻璃对浴室和厕所做了个划分,保留了三者共处一室的关系,对于采用这种布局的卫生间来说还是非常值得借鉴的设计。但是需要注意的是因为尺寸的限制,在这个布局中很少会使用洗面台而使采用洗手池。
了解这两种最常见的器具就会发现,洗面台占空间大但是功能齐全,洗手池功能局限但是占用空间小,经常和马桶配套使用。
但是帅归帅,一体化的BATH TOILET有一定的缺陷,只不过之前在国内一直是这种模式所以挺适应。主要有以下几点:
一 洗澡满屋的水蒸汽,虽然不会直接喷到马桶上,但整个屋子都会湿乎乎的很长一段时间很难用。
二 不方便家人同时使用浴室和卫生间。
三 不方便设置电源,即使设置也需要特殊的防水处理,而吹风机电源和马桶的温水洗净器都是迫切需要设置电源的。
四 马桶不便设置喜欢的马桶垫和地垫,因为很容易湿。
二、分离式布局是什么?带你了解这“四式”
“四式”大约是国内的叫法,日语叫做水回り,不好意思本人翻译能力不佳,不知道对应的中文是啥,大概是和上下水有关的设施吧。通常家庭中用到的设施包括马桶、洗面台或洗手池、浴室(包括浴缸和淋浴)以及洗衣机这四件,称为四式。
在国内,这几项一般都是设计在同一个房间的,统称为卫生间卫生淋浴室之类的。四式分离,简单说就是把这几样给隔开便于分别利用。
分离的方法有很多,但是首先需要我们对一些标准尺寸做一个简单的认识。
1
关于厕所

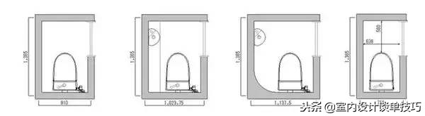
对于普通不带洗手池(注意是洗手池不是洗面台)的厕所,需要的尺寸在轻质隔墙的情况下一般为1.82mx0.91m。
而加上洗手池的话宽度就需要相应增加,可以参照上面的图片。最后一张是最小尺寸,已经基本上很难安装洗净器(国内叫做卫洗丽)了。
对于卫生间来说,收纳空间也是非常必要的。卫生纸、清洁工具等等都需要收纳。利用好洗手池下的空间或者在马桶边设置架子等都是很好的方法,大概进深在200mm左右即可解决,如果有洗手池的话正好可以设置在洗手池下部。比如这样:
2
关于洗面室
上文中说到洗面台和洗手池的区别了。设置洗面台的屋子即洗面室,它的作用大概有以下几种:

上图从左到右依次是:
① 洗面
② 洗发
③ 化妆
④ 作为浴室的更衣室
⑤ 若是洗衣洗面房的话作为洗衣甚至晾晒的场所。
因为只有了解了其作用我们才能更好的进行布局设计。
对于洗面室来说,尺寸和布局方式基本可以归纳为以下几种标准形态:(尺寸均为内部有效尺寸)
1. 最小尺寸的布局方式,能容纳一个800左右的洗面台、收纳柜以及洗衣机。

2.稍大一点的尺寸,可以布置收纳换洗衣物、毛巾等的柜子。

3.再大一点洗面台可以带梳妆台的功能,并将洗衣机移到相对较远的另一个区域,如下面两种布局方式。

在日本,洗面台用既成品的非常多,而且比起设计师自己设计,业主也更愿意选择既成的洗面台。一方面更便宜,另一方面作为专业厂家,他们往往比设计师考虑的更周全,质量也比现场施工的更好。比如TOTO,LIXIL之类。

比如上图左是TOTO的一个洗面台标准式样,从左到右收纳架、洗面池、电源插座、收纳柜,尺寸样式都非常人性化。右边是LIXIL的某种款式的洗面梳妆台,洗面台下面有收纳椅子的空间,女性可以坐着化妆。收纳柜在侧面。
国内既成品用得不多,不过哪怕是自己装修,也可参考这些样式。
对于100平米以上的大户型来说,如果能将洗衣机也分离出去就更好了,甚至可以结合晾晒、熨烫等空间的设置。这就形成了家务间。
家务间没有具体尺寸要求,只是考虑到洗衣机的摆放,需要至少有800以上的宽度。关于家务间的布局将在下文中说明。
3:浴室
日本的浴室基本都是标准式,称为UNIT BATH,和洗面台一样都是厂商之间生产装配而不是现场施工,尺寸都是标准值,无论是设计还是施工都非常方便。
比如LIXIL的UNIT BATH,顶视图大概是左边这个格局:

右边为豪华公寓版UNIT BATH
进门之后是淋浴,里边是浴缸(因为日本人喜欢泡澡,所以日本基本不存在只有淋浴的浴室),墙上有置物架和毛巾架,防水、下水、排气等都做的非常好,打扫也非常方便。
日本的UNIT BATH有许多尺寸模式,均以数字命名,例如UB1216,就是指UNIT BATH的内部有效尺寸宽度和进深分别为1200mm和1600mm。
如图:

这也是一般住宅会采用的最小尺寸,在小户型中经常会用到,浴缸较小,基本躺不了。
在一般面积的住宅中UB1616和UB1620也是经常会采用的尺寸,可以看到,这两种尺寸的浴室中,浴缸基本相同,只是淋浴部分大小不同罢了。
个人体验是:1216的尺寸已经够用了,1620可以称为豪华了。
到更大的,还有1624等等,可以在淋浴部分设置座椅等等,对于家里有老人的话也是不错的选择。
下面的表是各种尺寸的标准做法。对照上面的说明相信大家可以基本上了解。括号里的坪是日本的面积单位,1(坪)大约是1.6平米。

三、关于布局:怎样组合这“四式”
(1) 浴室+洗面卫生间
最简单也是最节约空间的做法就是只把浴室分离开。如下图

这种做法比较类似国内最近开始流行的干湿分离的做法。占用空间并不大,但是能够比较有效的阻止水蒸气灾害啦。
(2)浴室+洗面洗衣+卫生间
彻底做到干湿分离的做法。可以看到下图中,卫生间和洗面室分别从不同入口进入,从洗面室能够进入浴室,因此洗面室也充当了更衣室的角色。下图右边的厕所则另外带有洗手池,可以在便后很方便的洗手清洁。

或是如下图的布局,洗手间作为浴室和卫生间的过渡,能够从两个方向进入。

(3)浴室+洗面洗衣+卫生间+家务间
下面这个布局中的卫生间被彻底分离开,而将浴室、洗面、家务室和厨房结合在一起形成了一个便利的环线:
洗面室更衣后进入浴室,换下的衣物直接拿到家务室清洗,厨房的抹布等也可以很方便的拿到家务室清洁,妈妈在做饭的时候也能够同时兼顾洗衣机的运行。

下面的布局也是类似的。设置给家里的猫猫设置了上厕所的空间:)

(4)愉快高效地搞定家务活儿:家务间的设置
设计的时候就充分考虑从洗衣到晾晒空间到折叠到收纳的流线,例如图中的布局,洗衣房连着阳台,洗完可以直接拿出去晒,收回来叠好直接放进服装的储藏室。

又比如下面这个布局是一个能过围绕家的中心团团转的家务模式:

在这个布局中,厨房和洗面所的中间设置家务间,能迅速整理熨烫洗涤完的衣物等,占用空间并不大但是使得家务动线变得明快。
当然,不只是洗衣,将妈妈的家务空间和简单的工作台、各种收纳功能统一起来也是非常紧凑高效的设计方法。

上图中将厨房和家务间合成了一个模块,能方便的从厨房进入到家务间进行模式切换。
图中
①是收纳台,家人的毛巾杂物、包括熨斗等等都可以方便的收纳。
②是简单的工作台,妈妈可以做手工、简单的阅读或是上网等等。
③是衣柜,熨斗台也可以放入其中。
④是室内晾晒处。在下文中会进一步说明。熨斗台可以从③中取出设置在这个空间进行衣物的熨烫工作。
⑤是洗衣机边上留出空间设置洗衣框,换洗衣物都可以丢进去。
⑥ 手洗池,洗抹布等等。
⑦厨房收纳柜。
如下图厨房、家务间、收纳衣帽间、洗面更衣间一条直线解决,非常简洁便利。

家务室中最好也能够留出晾晒空间。我们的经验中衣物总是在阳台暴晒的,但是考虑到雨天以及不便进行室外晾晒的衣物,室内留出晾晒空间是非常必要的。通常结合上文中的家务间进行设置。
下图中用的是电动晾衣杆,可以电动升降高度。升到天花附近之后下方可以腾出能活动的空间来了,很节省空间,在日本也被越来越多的业主所采用。可以用在家里的各种地方,比如客厅附近,对于小户型来说非常方便。
最后补充一部分技术问题:
关于通风防潮。防潮也是主要靠通风换气,所以基本一致。卫生间浴室在日本不管有没有窗都是带换气扇的。换气有三种模式:
第一类是进风口和出风口都带换气扇,一个给气一个排气;
第二种是只进风口给气;
第三种是仅出风口排气。
第二种第三种价格便宜。在浴室厕所均采用第三种换气方式,也就是说只需要一个排风扇。下图是很常用的一类排风扇,价格是4500日元,大概250人民币不到。
总的来说住宅的干湿分离也许是未来住宅的趋势。在设计中合理的规划卫生间周边的流线,大小等等,因地制宜,能够创造出非常不一样的生活品质。