1937年的7月7日卢沟桥事变
抗日战争一打就是8年
天天喊着爱国的口号
人防地下室钢筋却验收了N遍

这个人防地下室
是不是要搞地道战?
用的是孙子兵法36计中的哪一计?
没那么复杂
了解一下人防地下室

我们接触的人防地下室不打仗时停车用
这叫平战结合人防工程
要绑好人防区钢筋
不过是一个围城的游戏

把自己关进笼子里,让外面的敌人进不去
这叫人防区域
下面就从第1道防线说起
1、结构顶板和底板
人防拉钩是一个容易忽略的地方

来源丨《人民防空地下室设计规范》GB50038-2005第4.11.11条(图源网络)说它容易被忽略是因为设计人员往往把它标注在设计总说明里面
一个人防工程有成千上万个拉钩
为什么?
顶板设拉钩还能理解,为什么底板也要设?
你忽视了敌人的想象力

有了拉钩上下拉结,即使是混凝土被破碎,钢筋网片依然能够保证它不掉落
有人说人防规定太多太多多的数不清
其实你是没有找到规律
2、结构墙板的规律
我们先看一张平面图

敌人要想进来必须破坏临空墙和挡土墙
一个防护单元内的内墙和你家的墙没什么区别
临空墙钢筋和内墙钢筋就有天壤之别

来源丨07FG01《防空地下室设计荷载及结构构造》第61页
除了锚固方向、长度有不同还有3点区别
区别1
这个LaF是个什么鬼?
我们知道La是锚固长度,LaE是抗震锚固长度
这个LaF叫做人防锚固长度

来源丨《人民防空地下室设计规范》GB50038-2005第4.11.6条
有人防锚固长度必定有人防搭接长度(LlF)
也是比普通搭接长度提高5%
区别2
此前讲过钢筋锚固拐个弯能够省0.4倍锚固长度

人防钢筋锚固拐个弯为什么不能省?
要知道
普通民用建筑大多是静荷载
而人防工程是动荷载

换一句话讲
锚固长度是往外拔
人防工程是连晃带拔

这个弯锚也要满足人防锚固长度的规定出现在07FG01《防空地下室设计荷载及结构构造》的很多做法中
是不是人防区域所有地方都是如此呢?
非也
怎么判别呢?
前面我们讲过围城的游戏
弯锚也要满足人防锚固长度用在下图所示的重点区域

如果不信再举一例
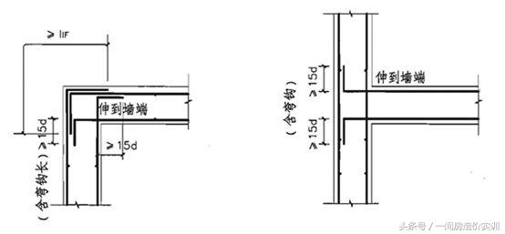
临空墙的直角转角,两边都是锚固长度
临空墙的丁字墙
内隔墙就不是1倍锚固长度

来源丨07FG01《防空地下室设计荷载及结构构造》第59页
区别3
临空墙竖向钢筋不能有接头

是不是所有的竖向钢筋都不允许?
有些情况下,临空墙外侧的钢筋是允许有接头的

来源丨07FG01《防空地下室设计荷载及结构构造》第61页
这个要看设计规定
说完临空墙再说挡土墙
有人说挡土墙敌人没法攻击
炸一下可不可以?

所以说挡土墙的做法和临空墙差不多
都是重点防护区域
举个例子
看垂直于挡土墙的内墙封顶节点,居然和民用建筑柱子封顶做法如出一辙

来源丨07FG01《防空地下室设计荷载及结构构造》第58页
除此之外还有防护单元之间的隔墙
和临空墙做法是一个道理
假如一个防护单元失守了
它就是临空墙

人防地下室钢筋—围城的游戏
当真?全部讲完了?
NO!NO!NO!
要知道钢筋铁桶的防护敌人进不去你也进不去
还有一个重点中的重点
人防门
无论是人防门、战时封堵,都是敌人攻击的薄弱点
看标准图集之前先看受力
此前我们讲过不懂受力看变形也可以

为了保证小变形,加1个柱子、加2个柱子
看结构设计师的心情
你知道两端全部按人防锚固长度就行

来源丨17FG04《人防门框墙》第3页
结构设计师要是不加梁不加柱子呢?
这就给你设了一个局
平面看,这道墙变成了悬挑梁

箍筋变成了受力筋
一定不能开口错开当成了箍筋
门头、门槛也是一样

人防工程的要求太多
今天只聊10块钱的,说一说钢筋

“全中国钢筋工,行动起来!”
-END-
(本公众号文章转自工地艺哥说)

获取更多咨讯
请 点 击
往期精彩推荐
在进度款和结算时如何扣除甲供材料费
安装预算工程量计算必须掌握的知识点
精装修答疑微课之吊顶天棚列项
工程造价相关资料的收集
我的投标书制作经验心得体会
招投标干久了,我特别想吐槽
