
搞工程必须弄懂的24项施工技术
第一章 地基与基础
第一节 旋挖钻孔灌注桩施工技术
1 、适用范围
适用范围极广、几乎适用各类土及含部分碎石、卵石的地层,更换动力头和自动伸缩杆可在在微风化岩层使用。

2 、技术参数

3 、工艺特点
- 可在水位较高、卵石较大等用正、反循环及长螺旋钻无法施工的地层中施工;
- 自动化程度高、成孔速度快、质量高;
- 环保特点突出,施工现场干净;
- 孔壁上形成较明显的螺旋线,有助于提高桩的的摩阻力。
4 、施工流程
平整场地→测量放线→泥浆制备→埋设护筒→铺设工作平台→安装钻机并定位→钻进成孔→沉渣清理及成孔检查→下放钢筋笼→浇筑混凝土

5 、施工注意要点
- 护筒选用10mm厚钢板卷制,内径为设计桩径+20cm,高度2.0m,上部开设2个溢浆孔,根据控制桩为基准埋设钢护筒,顶端应高出地面20cm,中心与桩位中心的偏差不得大于50mm,倾斜率应小于1.5%,护筒的埋设是旋挖作业中的关键;
- 加强稳定液的管理,控制固相含量,提高粘度,防止快速沉淀,控制终孔前两钻斗的旋挖量;
- 成孔深度达到设计要求后,应尽快进行钻机移位、终孔验收工作;从清孔停止至混凝土开始浇灌,应控制在1.5-3h,一般不得超过4h,否则应重新清孔;
- 钢筋笼主筋要焊平,以免提升导管时,挂住钢筋笼;
- 浇筑混凝土前应使用经过检漏和耐压试验的导管,浇筑混凝土要连续浇筑,供应混凝土不得中断时间过长。
第 二 节 静压桩施工技术
1 、适用范围
多应用于预制管(方)桩施工。

2 、技术参数

3 、施工流程

第 三 节 真空深井降水施工技术
1 、适用范围
渗透系数较小、地下水位高的深基坑降水工程。

2 、技术参数

3 、井管深度设计
H=H1+h+JL+l+s2 计算降水井深度:
H-降水井深度,(m)
H1-基坑开挖深度, (m) 取9.97m
h-基坑底面至降低后的地下水位的距离(m) ,
J-水位梯度,单排降水井一般取1/10~1/8
L-降水井井点水平间距的二分之一,
l-降水井设计沉淀管长度,根据地层一般1-3 m
s2-井的水头损失,可取1m。
4、施工流程



5 、施工注意要点
- 井点布置应尽可能避开基坑加固区;
- 围填滤料宜选用中砂;
- 提出钻杆前必须进行洗井,拉出的水基本不含泥砂后,可换用空压机抽水洗井,吹出管底沉淤,直到水清不含砂为止;
- 外管井口上端1m范围内应采用粘土回填密实;
- 降水需达到开挖面以下至少0.5m方可开挖。
第 四 节 地下连续墙施工技术
1 、适用范围
适用于各种土质的深基坑支护工程。

成槽机SH500
2 、主要过程展示


导墙施工

机械成槽

钢筋网下放

水下混凝土浇筑
3 、施工注意要点
- 杂填土区域施工应考虑在地下连续墙两侧设计护壁作用的水泥土搅拌桩。
- 地下连续墙导墙的混凝土达到设计强度之前,禁止任何重型机械和运输设备在旁边行驶,以防导墙受压变形。
- 地下连续墙开槽应分段。
- 槽段开挖到设计标高后,在插放接头管和钢筋笼之前,必须及时清除槽底淤泥和沉渣,必要时在下笼后再作一次清底。
- 灌注混凝土速度的控制:在槽内混凝土面上升速度不应大于2m/h。
第 五 节 跳仓法施工技术
1 、适用范围
当地下室面积较大,且后浇带为伸缩后浇带或岩石基层时,
宜采用跳仓法施工。

2 、主要施工要点
- 跳仓法的分块原则上按原设计的后浇带分块,分块长度原则上不应超过40m,仓块宜小不宜大。跳仓间隔施工的时间不应小于7天,跳仓接缝处按施工缝的要求设置和处理。
- 混凝土浇筑跳仓进行,如左图所示,先浇筑1、3、6、8、9、11仓,间隔不应小于7天后再浇筑2、4、5、7、10、12仓。
- 采用跳仓法施工时,应优化混凝土配合比,做好施工质量控制,减少混凝土的自收缩,严格控制混凝土结构内部裂缝。
3 、效益分析(底板)

第 六 节 大体积混凝土无线测温技术
1 、大体积混凝土测温技术
通过对浇筑后大底板的温度监测和应变监测,实时采集监测数据,及时掌握混凝土的温差和应变变化情况,并根据实测数据及时调整混凝土的养护措施,避免混凝土开裂现象的产生,保证结构的安全性。

2 、温控指标
- 混凝土浇注体在入模温度基础上的温升值不宜大于50℃;
- 混凝土浇注体的里表温差(不含混凝土收缩的当量温度)不宜大于25℃ ;
- 混凝土浇注体的降温速率不宜大于2.0℃/d ;
- 混凝土浇注体表面与大气温度不宜大于20℃。
3 、监测点布置
- 布置范围应以所选混凝土浇筑体平面图对称轴线的半条轴线为测试区,在测试区内监测点按平面分层布置;
- 在测试区内,监测点的位置与数量可根据温凝土浇筑体内温度场分布情况及温控的要求确定;
- 在每条测试轴线上,监测点位宜不少于 4 处,应根据结构的几何尺寸布置;
- 沿混凝土浇筑体厚度方向,必须布置外面、底面和中凡温度测点,其余测点宜按测点间距不大于 600mm 布置;
- 混凝土浇筑体的外表温度,宜为混凝土外表以内 50mm 处的温度;
- 混凝土浇筑体底面的温度,宜为混凝土浇筑体底面上 50mm处的温度。
4 、监测系统工作原理及特点




第 七 节 砼内支撑切割施工技术:绳锯切割法
1 、基本原理
利用金刚石绳抱捆固定钢筋混凝土支撑梁,在马达驱动下绕切割面高速运动研磨切割体,完成切割工作。切割过程中不但操作安全方便而且震动和噪音很小。

2 、施工工艺
切割位置放线→钻吊装孔和穿绳孔→安装固定导向轮→固定绳锯机→安装金刚石绳索→链接相关操作系统→设置安全防护栏→内支撑梁切割→梁块吊装→风镐破除。

绳锯切割法
第 八 节 混凝土内支撑*破爆**技术
1 、应用范围
砼内支撑*破爆**技术,适用于深基坑的多道内支撑拆除。
2 、参数设计
最小抵抗线W取250~300mm左右;
孔距A取600~1000mm;
排距B取200~300mm;
孔深L取梁高的三分之二;
单孔药量 q=K·a·B·H/n 。

布孔示意和装药设计

装药

*破爆**连线

防护棚覆盖实景图

*破爆**后支撑实景图

清理实景图
4 、*破爆**注意要点
- 应提前向政府部门备案,完成相关手续,同时应提前至少3天在周边张贴*破爆**告示;
- 预埋孔随混凝土浇筑同步进行,当支撑混凝土浇筑完成后,即将专用纸筒按设计要求插入混凝土中,避免后区打孔;
- *破爆**防护棚应计算,确保无飞石突出,;除起爆作业人员,其他人员必须在完全距离外;
- 单次起爆*药炸**量必须小于2kg。
第二章 主体结构
第一节 智能顶模系统施工技术
1 、适用范围
高层建筑钢筋混凝土核心筒工程;钢筋混凝土核心筒+钢柱筒中筒结构。

2 、技术特点
- 在高空提供一个面积大、刚度大及安全性高的操作平台;
- 智能化精确控制;
- 带模板、施工料具同步顶升;
- 顶升动力强大,一次可顶升一个结构层;
- 可以应对混凝土结构各种变化;
- 施工速度快;
- 作业面安全,各个工作面均有封闭的操作架。

3 、主要组成部分
智能顶模系统又称大吨位长行程油缸整体顶升模板体系,由动力及控制系统、支撑系统、钢平台系统、吊架系统和模板系统组成。

顶模系统效果图
4 、技术参数
- 液压双作用油缸行程可大于5m;额定顶升荷载可大于300t、额定提升荷载可大于35t;顶升速度100mm/min;
- 通过液控与电控两套系统协同工作,实现主油缸同步运行误差可达到1mm;
- 能保证平均3天一层,最快2天一层的施工速度;
- 钢平台重800-1200吨。
5 、主要经济指标

第 二 节 数控弯箍机
1 、机械组成
全自动数控弯箍机摒弃了传统钢筋弯曲机、调直机,实现钢筋调直和弯曲加工一体化,按结构与功能分为:电气控制系统、弹簧放线架、送进机构、矫直一部分、牵引部分、矫直二部分、剪切机构、弯曲机构、操作台。

数控弯箍机
2 、技术特点
- 能够连续生产任何形状钢筋线材制品,触摸面板操作无需任何机械调整,机动灵活性强;
- 可双线加工、加工速度快、精度高,有效避免了人工加工中造成不必要的浪费和短钢筋的产生,提高钢筋利用率;
- 全过程智能化操作,只需一到两位普通工人就能熟练操作,极大地降低了劳动强度。
- 加工机械封闭化,极大降低人工加工过程中的伤害。
- 调制和弯曲一体化,减少材料和机械设备占用地。
3 、机械指标

4 、功效、经济指标


数控弯箍机加工实景图
5 、操作注意要点
- 作业时,将钢筋需弯的一头插在转盘固定备有的间隙内,另一端紧靠机身固定并用手压紧,检查机身固定,确实安在挡住钢筋的一侧方可开动;
- 作业中严禁更换芯轴和变换角度以及调速等作业,亦不得加油或清除;
- 严禁在弯曲钢筋的作业半径内和机身不设固定的一侧站人。弯曲好的半成品应堆放整齐,弯钩不得朝上。
- 现场放线架与主机的距离设定约1.5m,同时放线架相对于主机左倾15度为佳。
第 三 节 自动加压水泵技术
1 、基本原理
根据楼层高度的变化,加压泵自动调节出口压力 。既保证楼层施工用水要求,又节省电能。

加压水泵系统原理图
2 、优点
- 是一种节能供水设备,节能效果好,占地面积小,运行稳定可靠,使用寿命长,供水压力可调,流量可大可小。
- 该技术的给水管与传统给水管镀锌铁管相比,可使用PVC给水管,可以降低成本、高效节能的目的。

第 四 节 铝合金模架体系施工技术
1 、铝合金模板 适用范围
多用于层高较低、结构简单且重复的住宅楼或核心筒框剪结构的大空间大跨度办公楼。
2 、铝合金模板施工技术内容
- 优化设计:施工前核对图纸,当结构梁斜交时需提出设计优化,使结构梁尽可能正交,减少异型铝合金模板,可加快安装速度。
- 深化设计:施工前按照结构图进行铝模板深化设计,针对各细节部位进行技术处理并将构件编号、标注。
- 生产制作:铝合金模板加工制作工序全部在场外完成,不占用现场场地,节省模板加工环节,确保材料到场后直接用于施工。
- 试拼装及验收:铝模板完成设计及加工后,首次进场前要进行试拼装;经验收满足工程要求后,对所有的模板构件分区、分单元分类作相应标记,然后打包转运到施工现场分类进行堆放。
- 拆除要点:混凝土强度达到规范规定强度后,遵循“先支后拆、后支先拆”,先拆除非承重模板、后拆除承重模板的原则;模板拆除后尽早清理及分类整齐堆放。

铝模 3D 模型图

铝模实景图
3 、效益成本对比分析


墙面铝模施工效果图

楼板铝模施工效果图
第 五 节 早拆体系施工技术
1 、早拆体系适用范围
早拆体系适用于框架结构、剪力墙结构住宅及公用建筑结构的梁、板结构等厚度不小于100mm且混凝土强度等级不低于C20的现浇水平结构构件施工,不适用于预应力楼板的施工。
层高小于3m宜采用早拆体系。

2 、主要技术内容
- 早拆模板应根据施工图及施工组织设计,结合现场施工条件进行设计。
- 按照设计搭设模板及支撑体系,安装早拆装置,支撑顶板调到位,并进行模板及支撑体系预检。
- 当板的结构跨度不大于2m时不同强度等级的混凝土楼板,其抗压强度达到10MPa均可进行早拆施工。
- 模板早拆体系第一次拆模后应保留的立杆间距应不大于2m。

第 六 节 高性能混凝土 — —三高三低三自绿色混凝土
1 、基本内容
具有“高强度、高稳定、高泵送、低水化热、低收缩、低成本、自流平、自养护、自密实”的绿色多功能混凝土。

超高性能混凝土

2 、与普通高强混凝土对比


运用于西塔项目
第 六 节 高性能混凝土 — — 超高泵送关键技术
1 、主要内容
在超高层施工过程中,超过150米的超高层建筑宜选用HBT90系列拖车泵,其最大理论输送压力值可达50MPa,满足超高层超高泵性高度的要求。


2 、高性能 混凝土超高泵送技术 要点
1)混凝土原材料的精选;
2)混凝土配合比的优化;
3)超高泵送系统的优化;
4)超高泵送设备的选择;
5)防止堵管的具体措施;
6)超高泵送管路的清洗。

混凝土泵送管道布置
第 七 节 塔吊镝灯使用时钟控制技术
1 、适用范围
适用于施工现场的所有塔吊镝灯照明、楼梯间、地下室、围墙及生活区临时照明等,也适用于其他动力设备的定时控制,如水泵控制等。
2 、主要技术内容
塔吊镝灯使用时钟控制技术的基本原理:使用KG316T型电脑时控开关,能够根据设定的时间,自动接通和关闭用电设备。避免塔吊镝灯因管理不到位出现长明灯现象。这种方法既可以手动调节控制,也可以设置自动控制,同时可以设置多个时间段来控制塔吊镝灯的开关,操作方便,控制安全。

塔吊镝灯自动控制图
3 、 KG316T 型电脑时控开关的性能指标
有10组开关时间,手动、自动两用。市场平均价格为20元/台。


KG316T型电脑时控开关
第 八 节 光导照明环保技术
1 、工作原理
通过室外的采光装置收集自然光线并将其导入系统内部,然后经过导光装置强化并高效传输后,由漫反射器将自然光线均匀发散到室内。室内装修施工时,利用已安装的光导照明系统提供施工照明。

导光管
2 、光导照明系统优点
- 节能环保低碳,既清洁又不产生能源消耗。系统各部件所使用的材料为环保型材料,可回收利用。
- 白天一个导光孔就可以在室内产生相当于2000瓦的灯泡的亮度。
3 、低压配电照明与光导照明功对比

第 九 节 混凝土输送管气泵反洗技术
1 、工作原理
通过向管内放入清洗球后用空压机加压,将管内砼余料在压力下推送出来,再在泵管中加入少量的水,以达到清洁管件的目的。地面混凝土及时收集,装入混凝土料斗,吊运作业面进行使用。超出作业面方量的混凝土,制作二次结构过梁等小构件。
2 、主要技术内容
- 主要机具有:空气压缩机、自制连接头(连接空气压缩机和布料机软管)、柱状或球状橡胶球、适合工地塔吊的料斗、合格的输送管连接橡胶圈。
- 混凝土坍落度需要控制在200mm以上,扩展度为450mm~550mm,有较好的粘聚性,不得泌水,坍落度在可控的范围内。

3 、腾飞空气压缩机参数


空气压缩机
第 十 节 中水回收利用技术
技术简介
施工将生活区生活废〔污水〕集中处理后,达到一定的标准回用于生活区的绿化浇灌、车辆冲洗、道路冲洗、冲洗厕所等达到节水的目的。


蓄水池收集

雨水收集
第 十一 节 化粪池做法
1 、化粪池构造要求
- 化粪池容积应根据使用人数、冲水量、粪便发酵腐热的时间以及沉卵灭菌的要求来决定;
- 化粪池的深度(水面至池底)不得小于1.30m,宽度不得小于0.75m,长度不得小于1.00m,圆形化粪池直径不得小于1.00m;
- 化粪池格与格、池与连接井之间应设置通气孔洞;
- 化粪池进水口、出水口应设置连接井与进水管、出水管相连;
- 化粪池进水管口应设导流装置,出水口处格与格之间应设拦截污泥浮渣的设施;
- 化粪池池壁和池底应防止渗漏;
- 化粪池顶板上应设有人孔和盖板。
2 、三级化粪池做法



第 十二 节 现场洗车平台
1 、基本要求
- 现场出入口内侧设置车辆冲洗系统(冲洗台、沉淀池、高压水枪、高压洗车水泵)。
- 冲洗台长度宜采用4m×6m,其周边应设置排水沟,排水沟与三级沉淀池相连,并按规定处置泥浆和废水排放,沉淀池需定期清理并与市政排水管网相接。
- 根据实际需要,配备足够的保洁人员,对进出现场的车辆进行实时保洁,确保车辆不带泥出场。
2 、现场洗车平台做法参考图


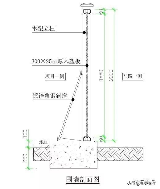
第 十三 节 装配式围挡
1 、主要内容
- 木塑围挡主要由立柱、墙板、上下横梁、立柱盖帽、立柱固定架等组成。
- 主要部件采用热塑性塑料、木粉及各种辅助材料,经挤压加工而成。
- 采用拼装式安装,4名工人每天可安装100m。
2 、装配式围挡大样图



3 、安装说明
- 立柱与地面固定采用铁板及铁管连接架;
- 立柱与上下横梁采用卡口连接;
- 立柱、上下横梁设置嵌槽,墙板四周嵌入槽内;
- 立柱盖帽用注塑成品;
- 围挡以10个组件相连独立拼装成一跨。

装配式围挡安装

装配式围挡实景图
4 、经济指标

第 十四 节 预制地板
制作要求
- 钢筋网片采用短或废钢筋进行焊接。
- 角钢方框连接方式采用焊接,混凝土面与角钢平齐,在铺设地板之前,场地应平整,并预先铺设一层20cm厚水泥土作为稳定层(含10%水泥),以防止地面沉降变形。



第 十五 节 可周转工具式塔吊基础
1 、技术简介
预制式塔吊基础是将十字梁基础、方形基础及墩式基础通过组合拼装形成柔性连接,使整个基础为全预应力机构,在钢梁上对应不同的型号的塔吊预埋相应的角螺栓孔,用地脚螺栓与塔吊基础连接,在基础上再增加坑倾覆配重件,使塔吊稳定安全。
采用预制式塔吊基础安拆方便,安全可靠,可周转使用多次,节约构建资源,达到建筑节能减排的目标。

预制式塔吊基础模型
2 、经济效益



预制式塔吊实景图
第 十六 节 施工电梯平进平出技术
1 、技术简介
施工电梯基础设置在地下一层以下楼板或底板上,避免因基础高度而在首层出口设置斜坡道,实现了材料运输主要出入口“平进平出”的目标。

示意图
2 、技术优势
- 首层材料运输主要出入口水平,降低现场工人运输劳动强度。
- 提高运输效率,降低施工电梯运输口“拥堵”现象。
- 可实现地下一层材料直接运达的目标。