一.产品介绍
电子体温计由温度传感器,液晶显示器,纽扣电池,专用集成电路 及其他电子元器件组成。能快速准确地测量人体体温,与传统的水银玻璃体温计相比,具有读数方便,测量时间短,测量精度高,能记忆并有蜂鸣提示的优点,尤其是电子体温计不含 水银 ,对人体及周围环境无害,特别适合于家庭,医院 等场合使用。
从功能上区分,有防水型和普通型两种。从构造上看,有铝头、感温线、显示屏及支架、开关、按键以及电池盖。普通的电子体温计一般包含5种塑胶零件,即本体(外壳)、面板(镜片)、电池盖、背盖和主机壳,本体(外壳)是最主要最关键的零件,下面详述本体(外壳)的模具设计制造要点。欧姆龙某型号30秒电子体温计外壳产品如图1所示。

二. 产品分析
电子体温计本体产品图见图1,从图中可以看出,制品长度较长,内部空心,小端有内径Φ1.6的通孔,大端外部有沟槽,内装密封圈,与电池盖配合组装后起到防水的作用。小端为头部量测部位,装有铝头,铝头内部有传感器,通过感温线与PCB板相连。铝头外形呈圆柱形,组装后的技术要求是铝头直径小于与其相邻的本体直径,目的是为了防止测量完毕后抽出体温计时,铝头由于阻力而滑落在人体内。本体内侧有两条导向槽,由4条平行骨位组成,用来为主机壳导向,要求此4条骨位与抽芯方向有良好的平行度。体温计本体通常采用台湾奇美ABS 757原料成型,这种原料于人体无害,且具有良好的成形性能和超声波焊接性能。
电子体温计作为腋窝测量、肛门测量和口腔测量的一种常规温度计,与人体接触,因而外观要求平顺光滑无毛刺,手感良好,电池盖、铝头和体温计本体组装后的段差小于0.03 mm, 且段差均匀,前后模在分型面的段差小于0.01mm,这种段差是手感感觉不出来以及肉眼不易观察到的。体温计本体内部抽芯的型芯长而且存在细长薄弱部位。因此,模具设计与制作存在很大的难度。
本例介绍的是欧姆龙某型号30秒电子体温计外壳产品,与普通的电子体温计相比,这款产品的外壳增加了一处小倒扣,见图1,深度1.5mm,用于电池盖的定位。此处小扣位的尺寸较小,给模具设计带来了极大的难度。

三.模具结构设计
1.总体设计
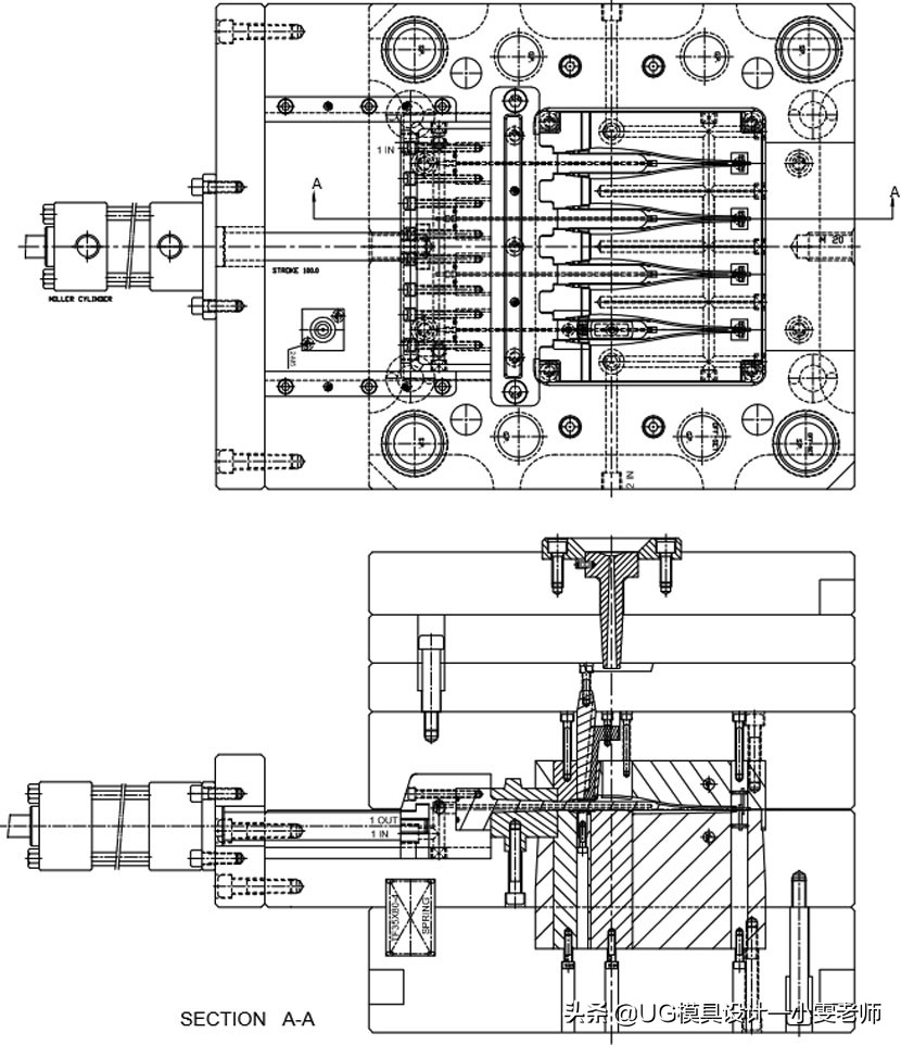
电子体温计属于产量较大的产品,通常可以设计1出2或者设计1出4的模具,本例设计了1出4,配合150吨的注射机生产。分型面的选取如图2所示,抽芯方向选择垂直于开模的方向,由于抽芯距离较长,选择了油缸抽芯,经过计算抽芯力,选择缸径为50mm,行程150mm的油缸。根据制品的使用要求,外观面不能存在进胶点和顶针印,因此进胶点选择在制品尾部防水圈槽的旁边,点浇口进胶,组装后被电池盖遮挡,不影响制品外观。模胚采用细水口非标模胚设计,规格为DDI3535.
由于塑件的倒扣较小,如果将其设计在动模抽芯,会给油缸抽芯的模具动作带来困难,不利于设计顶出机构。因此将此小扣位设计在前模抽芯,抽芯机构采用了T型槽的机构,为了抽芯的平稳和不易出现故障,需要限定抽芯距离,这样,需要在水口板和A板之间增加一块模板,这样就可以既保证T型槽的机构在抽芯时不脱开,又不影响水口料的取出。

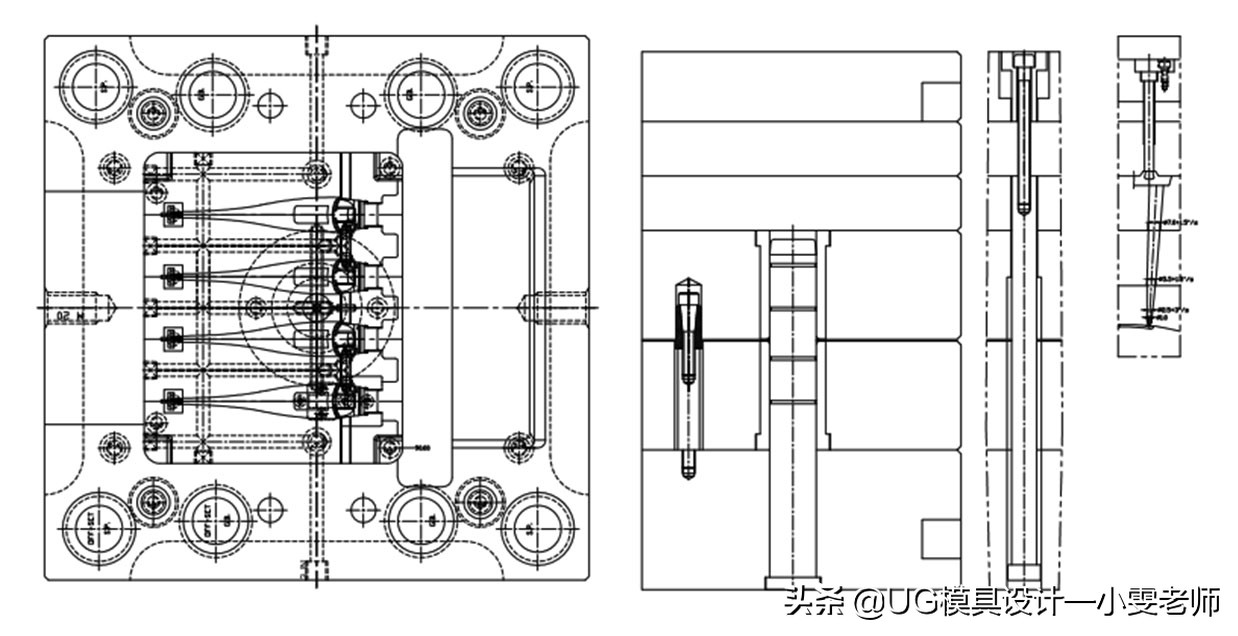
2. 模仁导向与定位
由于制品的前后模仁在分型面的段差需要控制在0.01 mm以下,模具需要良好的定位与导向,仅靠模具的导柱导套导向是远远不够的。为此在前模仁和后模仁的四角设计了5的虎口,确保前后模仁合模精度能够长期保持。同样在后模仁的四周与推板配合部位,设计单边3的斜度; 刮板与前模仁也以斜度配合, 所有这些措施保证了推板的准确复位。前后模仁的钢材选择日本预硬化钢材NAK80,较高的硬度可以保证分型面不易塌陷。
3. 中子的设计
根据体温计外壳产品的特点,中子的尺寸较长,头部又细,直径仅Φ1.6mm, 因此中子钢材的选择与中子冷却是很关键的。中子的钢材应能承受热冷交替产生的应力,保持刚性和韧性,长期使用不变形和弯曲,为此我们选择了日立公司的TDAC钢材,通过20多年来的应用表明,该钢材的性能能够保证体温计本体模具钢材的要求。点击关注关注老师不迷路,进老师主页查看更多干货!
中子的尺寸较小,普通的冷却方法很难达到冷却的效果,在中子的内部设计了Φ2x150mm的冷却棒,冷却棒是由特制的紫铜管加入网状管芯后,再加入一定量的制冷剂密封而制成。冷却棒适合细长型芯和普通冷却水无法到达的狭窄位置,它有很好的热传递性能,可以把注塑带来的热量从一端迅速传递到另一端,由装有冷却水的一端进行冷却,再把低温传递到顶端,周而复始。

安装孔径加工要比冷却棒直径大0.1-0.2,安装深度需达到总管长的2/3,冷却水浸泡长度不得低于总长度的1/4~1/3. 冷却棒装入时,需要涂抹传热润滑膏,增加热传导性能。冷却水道直径应做大,以便冷却水可以带走足够的热量与方便温度调节。使用时需注意冷却棒不可切断,也不可弯曲和压扁。
冷却棒最初是上世纪70年代美国航天局用于航空飞行器的冷却的,后来日本公司将它用于压铸模具,取得了很好的冷却效果从而在模具行业得到广泛使用。冷却棒的效率分析,使用时需要注意,冷却侧位于模具天侧,通入冷却棒的运水要从天侧接入,这样冷却棒的冷却效率较高,反之,冷却棒的冷却效率较低,这也是容易疏忽的。本例的模具,注射时,模具油缸朝天,正好符合冷却棒的高效率设计。
四. 模具制造要点
体温计本体模具的制造需要考虑制品本身的使用要求,在本体尾部和电池盖组装的部位,前后模都要做镶件,做镶件后可以调整配合尺寸,确保防水圈部位的间隙,确保防水功能。在体温计头部,也要前后模都做镶件,便于调整尺寸,使铝头的组装达到过盈配合,做镶件的另一个目的是便于抛光,前后模仁组合后整体抛光,可以有效消除段差,也有利于模具的排气以及后期的维修。

点击关注关注老师不迷路,进老师主页查看更多干货!
每晚八点有免费直播课程学习,私信老师即可免费学习!
需要模具设计资料和软件的可以私信老师回复“资料”即可免费领取!
喜欢老师作品可以转发或收藏,同时请继续关注后期会推出高质量视频和技术资料!