一提到装修,很多人头疼,装修到处都是坑,我是选什么样装修公司,是全包,还是半包,装修公司提供设计靠谱吗,飘窗要打吗,定制家具好,还是现场定制好等等一系列问题,看完你就有答案了,本人是以职业采购的身份来装自己家的房子,所有费用花销和分享百分百真实,可能会被装修公司吐槽,但是我仍然要给大家透明装修的那点事,避免大家走弯路,装出自己想要的,好了入正题:
坐标:广东 城市HZ 面积130 户型小复式 总花费25万
这是开始设计客厅和卧室效果图,效果图主要是风格方向参考,当时设计不是装修公司的免费设计,找的设计公司,全屋施工图,电路图,效果图只有3张,超出需要加钱,因为主要看风格,我就没花钱出其他效果图设计费从20000元谈到8000



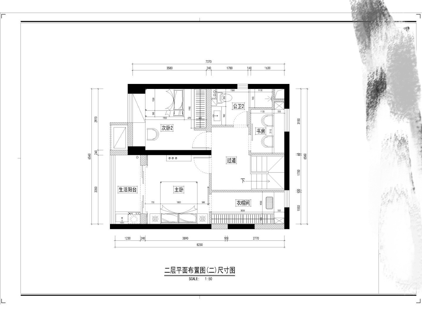
平面布局图如下,一楼卧室墙外移到红线位置,增大卧室面积,减小卫生间面积,此处改动是本人要求改动。


施工图没有传,太多张,且主要为工人施工用。
由于我工作属性对装修略有了解,从省钱角度出发,准备自己找工人,自己来统筹,由于周一到周五上班,没有精力,后选择半包,再次强调因为装修各工种相互配合统筹很重要,哪个先做,哪个后做步骤很关键,如果不懂,且没有时间精力,奉劝大家不要找散工装修,且后续售后是个问题。
半包一般指包工不包料,也就是房屋的基础装修,它是介于清包和全包之间的一种装修方式。装修公司主要负责施工以及一些辅料的采购,比如:水泥、石子,水管、墙面乳胶漆等材料;而业主需要购买主料,如地砖、厨卫吊顶、门窗、柜子、灯具等。
科普下,清包和全部,清包简单说只出工,所有东西自己买。全包顾名思义什么你都不用买,但是所有材料要你确认签字。
装修公司选择的时候,也咨询了名雕,居众,费用高。一般这些大的公司都是项目监理制,实际是公司平台提成,也就是理解他们挂靠公司,要给公司15-20%的点,项目监理可以理解一个小公司老板。但是他们对施工工艺,以及工人水平都有标准的流程和规范。还有些中小型本地的非连锁的装修公司,实际就是一个铺面,小的公司设计都没有,出图还要外包,基本这类型的装修公司,一般不养工人,接到单才去联络工人,也就是做了统筹工作,你有时间,你就可以做,表面上他是能提供售后,前提没有倒闭,在此建议如果根据个人费用预算选择中小型的装修公司,一定选小装修公司老板住本地自有房产或者是同小区业主,相对风险低。
我选择的公司本地小型,老板不是手艺人,谈了很多轮价格,谈判价格要有技巧,不能急!你要不急装修的样子,一定吊住装修公司,你不要主动联系对方,让装修公司总是主动找你谈,小装修公司惯用的,低价和你签合同,后面这里加钱,哪里加钱,这个就是很多人吃亏的地方。所以合同上一定要备注按照甲方要求装修,后续不接受任何加价,按合同金额付款!这样装修公司就会把很多你没想到的费用拿到桌子上提前告知你。半包辅料的一定合同要备注材料品牌最好具体规格,以及施工工艺,尤其吊顶是什么工艺,一般家庭很少轻钢龙骨,一般是木龙骨,商业一般是轻钢龙骨,要不消防过不了,商业吊顶一般两层石膏板,家庭一般9厘板加石膏板吊顶,瓷砖正铺斜铺价格也不同,实际材料不值钱,一般木工吊顶价格在90-150元一平。推荐广东伟业板,石膏板推荐可耐福。
以下是我家半包总费用83800元以及明细(最后实际支付80000元)






现场装修拍的






装修步骤:
通常是如果改变原有格局,第一部拆墙,砌墙——水电定位,开槽——木工进场——泥工进场——油工进场——安装电器等。
重点强调,看了不后悔的装修心得
1.插座开关一定要多预留,马桶位置不要忽略,橱柜里面,以免后期智能马桶用不了,厨房电器包括净水器都需要,这些要考虑好。电回路尽量多。

2.如果有中央空调一定要吊顶前先装,且内机旁边要留一组4平方电线。

3.如果入户大门要装定制防盗门,切记门口几块地砖不要铺,否则大门装好的时候门框和墙体缝隙很大,我家就吃了这个亏!

4.油漆批灰前各房门门框要装好,不能油漆做好再来装门,但是要做好防护,一般师傅会做保护。
5.装空调挂机的一定要避开一圈吊顶的筒灯,否则筒灯没有意义 我就犯了这个错误

6.订制衣柜这些一定是后进场更好,装修公司会告诉你定制衣柜先进场,好收口,缝隙可以批灰,实际这样不好,衣柜很容易搞脏,而且柜子后面油漆没有做,省了人工,而且现在大品牌定制柜子收口都有手边挡板,建议油漆做完,柜子在进场安装,墙面天花有磕碰,再补油漆。

7.安装水盆,橱柜,卫生间柜子,阳台柜,不要安装师傅打玻璃胶,美缝代替玻璃胶更好,不易变色发霉。
8.尽可能设计多的储物空间,我家飘窗全部打了做储物柜,效果很好!
9.餐桌,沙发处一定要预留插座,尽可能带USB插座,床头柜尽量要带USB插座,方便手机等充电。
10.卧室,楼梯上下处,一定要双联开关,灯具开关回路越多越好。细节双人床需要三联开关,非常实用。
11.网络一定要全屋无线设计,不能指望路由器,房子大,尤其复试,信号很差,我家楼上楼下各一个路由,体验感很差。
12.水电做完验收,一定要抽拉电线,看是否能轻松抽拉,如果不能,检验不能通过。
13.瓷砖切边一定要专业的去外面切,不能要泥水师傅现场切,尤其是好的瓷砖,硬度高,容易爆边,不齐。贴完砖,要敲有无空鼓,空鼓要重贴,砖要横平竖直,尤其手摸两块砖对角平不平。
14.油漆工怕灯,要照的亮亮的找问题,手摸平不平,颗粒多不多。
15.家具定制大品牌一般是颗粒板,小工厂一般多层实木板,结实程度大家都认为实木多层板不易变形,原材料造价颗粒板会便宜,但是颗粒板更环保,且大品牌封边技术很好,小工厂没有封边技术,所以不推颗粒板,推实木板,现在技术的发展我认为颗粒板更好,国外以颗粒板为主。
16.空调挂机一定要考虑吊顶和开孔的高度,一定要大于30公分 空调口斜向下开孔,否则排水制冷效果会受影响。
17.卫生间防水很关键,有条件推荐整屋做防水,通常厨房卫生间物业会验收,通过才能铺砖,厨房还是建议预留排水口。
18.采购品牌商品,学会利用各种平台,如果能专业的找到串货商,那么价格就非常低的,这个不提倡宣传哟!
19.装修在于细节,在于收口的完美,有的设计虽好,是否能落地,这要评估,否则落不了地,设计和施工分开是有好处的,装修公司的设计都是Q图,便于他好施工。单纯的设计不考虑施工难度,追求的是设计,所以融合是很重要的。
20.设计一定要做灯光设计,好的灯光设计能让房子档次提升,现在家庭已经很少用筒灯,射灯更显档次,包括射灯的角度需要自己去调整才能达到最佳效果,尤其餐桌用射灯,感觉非常棒,就像你天天在高档酒店用餐,食欲美美哒,射灯尽可能用4000K色温。
最重要一点,不管什么装修公司,设计公司,你得用心参与,因为最专业的其实是你。记住!
我家硬装软装完成之后的照片如下图
二楼主卧






二楼女儿房



二楼书房

一楼儿子房


客厅


厨房

装修实际花销:
主材花销:瓷砖全屋东鹏,客厅城堡灰原石800*800 90元一片,所有房间木纹仿古600*600,厨卫墙300*600,地面300*300,整屋瓷砖15000元
空调:一楼客厅日立3p变频风管机10800元,3台美的1p变频2000一台,合计16800元
衣柜,书柜,鞋柜,书桌全屋定制莱客38平,合计39000元
三个房间床,床头柜,床垫15000元某宝购买。
厨房:橱柜定制5000元非品牌,老板油烟机灶具8215+9B32 5600元,德普蒸烤一体箱4900元。箭牌双盆含龙头499元,史密斯纯水机2000元,美的热水器零冷水16升3000元合计20999元。
客厅:电视三星55存3800元,沙发某宝定制2.48米6000元,茶几2000元,顾家餐桌5000元,格力双开门冰箱2800,合计19600元
卫生间两个:二楼淋浴科勒恒温1960元,科勒马桶1780元,恒洁浴室柜含龙头3100元,一楼箭牌淋浴朋友赠送,恒洁马桶900元,恒洁浴室柜3100元,小五金1000元,合计11840元。
灯具开关:灯具西顿7瓦射灯40个加卧室灯合计7000元,施耐德开关,插座空开合计2800元,合计9800元
窗帘整屋5000元
楼梯大理石5000元加扶手合计7800元
整体加硬装80000一共24万多,仅供参考,这里要说明的是同品牌价位不等,很多装修公司全包的也是大品牌,但是很多是工程款,商家给大装修公司定制款,其他渠道你找不到同款商品,就好比电商款和实体款是不同的,价格很便宜,让消费者觉得全包很划算,实际虽是大品牌,实际质量很不好。
有关装修的问题欢迎交流,我以商家对立面采购的视角来帮助大家应对自如,如何选择品牌,如何砍价,如何规避风险,关注职业采购买手,每期都有干货与你分享,下期期待分享什么,可以留言哟!