
⑴ 图形的绘制方法。图形的绘制方法虽依各人习惯而不尽相同,以下的观点及建议,可供参考。
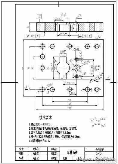
① 图形的不绘条件。画零件图的目的是为了反映零件的构造,为加工该零件提供图示说明。一切非标准件、或虽是标准件但仍需进一步加工的零件均需绘制零件图。以图1-75冲孔落料级进模为例,下模座20虽是标准件,但仍需要在其上面加工漏料孔、螺钉过孔及销钉孔,因此要画零件图;导柱、导套及螺钉销钉等零件是标准件也不需进一步加工,因此可以不画零件图。
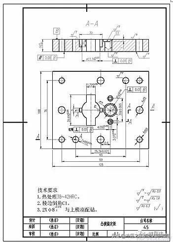
② 零件图的视图布置。为保证绘制零件图的正确性,建议按装配位置画零件图,但轴类零件按加工位置(一般轴心线为水平布置)。以图1-75所示的凹模18为例,装配图中该零件的主视图反映了厚度方向的结构,俯视图则为原平面内的结构情况,如图1-76所示,在绘该凹模18的零件图时,建议就按装配图上的状态来布置零件图的视图。实践证明:这样能有效地避免投影关系绘制的错误。
③ 零件图的绘制步骤。绘制模具装配图后,应对照装配图来拆画零件图。推荐绘制步骤如下:
绘制零件图时,尺寸线可先引出,相关尺寸后标注。图1-75所示,模具可分为工作零件、辅助构件及其他零件三大部分。在画零件图时,绘制的顺序一般采用“工作零件优先,由下至上”的步骤进行。如图1-75所示,凹模18是工作零件可以首先画出,如图1-76所示,

图1-76 凹模零件图
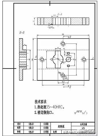
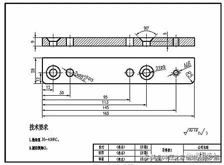
绘完凹模18后,对照装配图,卸料板17与凹模18相关,其内孔与凹模洞口完全一致,内孔尺寸应比凹模洞口单边大出0.5mm,根据这一关系画出卸料板17,如图1-85所示;接下来再画冲孔凸模11、 13 及落料凸模7(如图1-80所示);然后画凸模固定板10,如图1-77所示,再对照模具装配图画出垫板9(图1-78)和上模座1(图1-91)。在画上模部分的零件图时,应注意经过上模座1、上垫板9、冲孔凸模固定板10及凹模18等模板上的螺钉、销钉孔的位置应一致。
在画下模部分的零件图时,一般采用“工作零件优先,自上往下”的步骤进行。对照凹模先画两个导料板14,如图1-79所示;然后对照装配图上的装配关系,画始用挡料销钉孔,再画承料板16;在凹模上加上挡料销钉孔。在画下模的零件图时,也应注意经过导料板14、凹模18及下模座1上的螺钉与销孔位置,同时下模座20上漏料孔的位置要与凹模的孔位一致。按照上述步骤,根据装配关系对零件形状的要求,绘制各零件图的图形,能很容 易地正确绘制出模具零件的图形,并使之与装配关系完全吻合。
⑵ 尺寸标注方法。
从事模具设计的人都有这样的体会标注尺寸是一大难点。然而初学者中普遍存在一种“重图形、轻尺寸标注”的倾向,在零件图上所标注的尺寸经常出现错误较多或标注混乱的情况;甚至出现螺孔销钉孔错位,致使模具无法装配的严重错误,漏尺寸漏公差值等现象更为普遍。因此进行尺寸标注时,建议根据装配图上的装配关系,用“联系对照”的方法标注尺寸,可有效提高尺寸标注的正确率,具有较好的合理性。
① 尺寸的布置方法。对于初学者出现尺寸标注紊乱、无条理等现象,主要是尺寸的布置方法不当。要使用所有标注的尺寸在图面上布置合理、条理清晰,必须很好地运筹。图1-77所示的凸模固定板零件图中,共有近24个尺寸与4个几何公差尺寸的标注,其中俯视图左侧与下方布置螺钉、销钉孔的孔距尺寸及模板的外形直径尺寸;内部则布置孔形的尺寸,尽量错开标注避免交叉。如图1-75所示主视图上布置了冲圆孔凸模11和冲方孔凸模13及落料凸模7的固定孔形状尺寸及模板的厚度等尺寸;几何公差尺寸插空标注。这种布置方法合理地利用了零件图形周围的空白,既条理分明,又方便读图。
② 尺寸标注的思路。要使尺寸标注正确,就要把握尺寸标注的“思路”。前面要求绘制所有零件图的图形而先不标注任何尺寸,就是为了在标注尺寸时能够统筹兼顾,用一种正确的“思路”来正确地标注尺寸。下面以图1-75冲孔落料级进模为例阐述尺寸标注的“思路”。
● 标注工作零件的刃口尺寸。工作零件刃口尺寸的标注依据制造工艺的不同有两种形式。一是互换法制造,则凸模和凹模分别标注公称尺寸和公差;二是配合法制造,则基准件标注公称尺寸及公差,而相配件标注公称尺寸和与基准件的配合间隙。
● 标注相关零件的相关尺寸。相关尺寸正确,各模具零件才能装配组成一套模具。在下模部分,相关尺寸的标注建议按照“自上而下”的顺序进行。先从工作零件凹模18开始,观察装配图1-75,与该零件模具相关的零件有内六角螺钉19、销钉23、沉头螺钉25、导料板14,应从分析这些相关关系入手进行相关尺寸的标注。
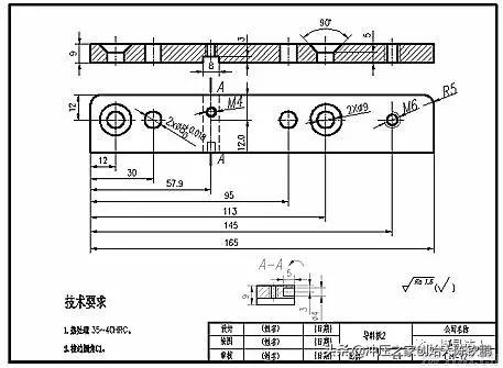
凹模18与销钉23成H7/m6配合,故销钉孔直径为Ф8H7。销钉23与凹模18、下模座20成H7/m6配合,因此下模座20上销钉孔直径也应为Ф8H7,同时孔距为40和101,可在下模座20的零件图上标出这些尺寸。
凹模18与4个M8的内六角螺钉19是螺纹联接,因此凹模18的图纸上对应螺纹孔应标注为4×M8;螺钉由下模座拧入,故相应的图纸上应立即标注4×M8,的螺纹孔距均为76与101。
凹模18还与导料板14、27相关。从装配关系知:两个导料板与凹模各用两个沉头螺钉25及两个销钉22连接,所以在凹模上要标出4个M8的沉头螺钉25的螺纹孔,与4个M8的内六角螺钉19的孔一起可以标注为8×M8;凹模上的四个销钉孔可以分别标注2×Ф8H7也可以一起标为4×Ф8H7;与之对应的导料板的标注如图1-79所示。
标注完凹模与凸模相关零件上的相关尺寸后,再标注凸模固定板10上相关零件的相关尺寸,依次类推直至上模中所有零件的相关尺寸标注完毕。上模部分的螺钉与销钉通过垫板的孔时双边应有0.5~1mm的间隙,因此垫板9上相应的过孔直径为Ф9mm,也应在相应的图样上标出。
再举一例进一步说明相关尺寸的标注。装配图中的冲孔凸模11、13与冲孔凸模固定板10相关;其中冲孔凸模固定板10相应处为一吊装固定台阶孔,台阶深度与冲圆孔凸模吊装段等高,即同为3mm,孔径应比凸模台阶直径大出0.5~1mm,为Ф17mm;Ф14mm的孔与凸模固定板成H7/m6的配合,即冲孔凸模固定板10上的对应孔直径应为Ф14mm。上述尺寸应依次同时标注。冲孔凸模11、13与落料凸模7的零件图如图1-80所示。
模具上模部分的相关尺寸标注可按“自下而上”的顺序标注。先标注弹压卸料板17与挡料钉21,弹压卸料板与卸料螺钉4之间的相关尺寸;再标注凸凹模固定板6与凸凹模7、卸料螺钉8、紧固螺钉3、圆柱销4之间的相关尺寸,同样方法直至所有相关尺寸标注完毕。
● 补全其他尺寸及技术要求。这个阶段可逐个零件进行,先补全其他尺寸,例如轮廓大小尺寸、位置尺寸等;再标注各加工面的表面粗糙度要求及倒角、圆角的加工情况,最后是选材及热处理,并对本零件进行命名等。
尺寸标注中,一般冲压模具零件表面粗糙度值选取可参照如下经验值:
a冲压模具的上、下模座,上、下垫板,凸、凹模固定板,卸料板,压料板,打料板与顶料板等零件表面粗糙度Ra值通常为1.6~0.8µm。板类零件周边表面粗糙度Ra值通常为6.3~3.2µm。
b冲压模具的凸模与凹模工作面表面粗糙度Ra值通常为0.8~0.4µm;凸模与凹模固定部位及与之配合的模板孔表面粗糙度Ra值通常为3.2~O.8µm。
c卸料(顶料)零件与凸模(凹模)配合面的表面粗糙度Ra值通常为6.3~3.2µm。
d螺栓或其他零件的非配合过孔面表面粗糙度Ra值通常为12.5~6.3µm。销钉孔面表面粗糙度Ra值通常为0.8µm。
③ 其他尺寸标注问题
● 复杂型孔的尺寸标注。形状越复杂,尺寸就越多,由此造成的标注困难是初学者设计冲压模时的主要障碍。如图1-77所示的凸模固定板零件,因洞口形状的尺寸繁多而出现标注困难。此时有两个解决方法:一是放大标注法,将凹模零件图适当放大后再标注尺寸;二是移出放大标注法。将复杂的洞口型孔单独移至零件图外面的适合位置,再单独标注型孔尺寸,而零件图内仅标注型孔图形的位置尺寸即可。
● 其它模板上型孔的配制标注。在进行凹模洞口的刃口尺寸计算时,如何处理半径尺寸R,实践中视对R的测量手段以及使用要求而定,如有能精确测定R值的量具,则需对R值进行刃口尺寸的计算;如仅有靠尺等常规测量工具,则可在凹模图上标注原注R值。
由于凸模外形、凹模洞口及其他模板上相应的型孔都是在同一台线切割机床上用同一加工程序,根据线切割机床的“间隙自动补偿”功能使其在线切割机床的割制过程中自动配制一定的间隙而成,因此其他模板上型孔可按上述配制加工的特点进行标注,既简单明晰,又符合模具制作的实际。如果凸模固定模板按配制法特点进行标注时,仅需在模板内标注型孔的位置尺寸,而型孔的形状尺寸则在图样的适当位置加注:“型孔尺寸按凸模的实际尺寸成0.02mm的过盈配合”即可。

图1-81 冲圆孔凸模零件图

图1-82 冲方孔凸模零件图

图1-83 落料凸模零件图

图1-84 凸模固定板零件图

图1-85 卸料板零件图

图1-86 落料凹模零件图

图1-87 垫板零件图

图1-88 承料板零件图

图 1-89 导料板1零件图

图1-90 导料板2零件图

图1-91 上模座零件图

图1-92 下模座零件图
