农村自建房最实用的当属二层小别墅,占地一百多平足够一般的农村家庭居住,主体30-40万左右就能建成。而且现在网上好看的别墅图纸非常多,今天为大家整理了8套比较实用的二层别墅,供自建房的朋友参考。
户型1效果图:选用清浅的色系展现别墅的素雅之美,另以沉稳的重色呈现古朴的质感,柔美不失刚劲,在乡村的大好风景中若隐若现,真实的农村生活状态就是如此舒适而美好。

平面布局图:餐厅与大客厅相连,空间更加通透开阔;楼梯间下设储藏室,满足日常的储存需求,优化空间使用率。

设有2阳台,确保室内采光充足,开阔视野。

户型2效果图:别墅整体配色干净清爽,主体采用偏暖黄的浅白色,营造舒适细腻的视觉感,搭配肌理分明的文化石,非常纯朴,很有返璞归真的自然美感。

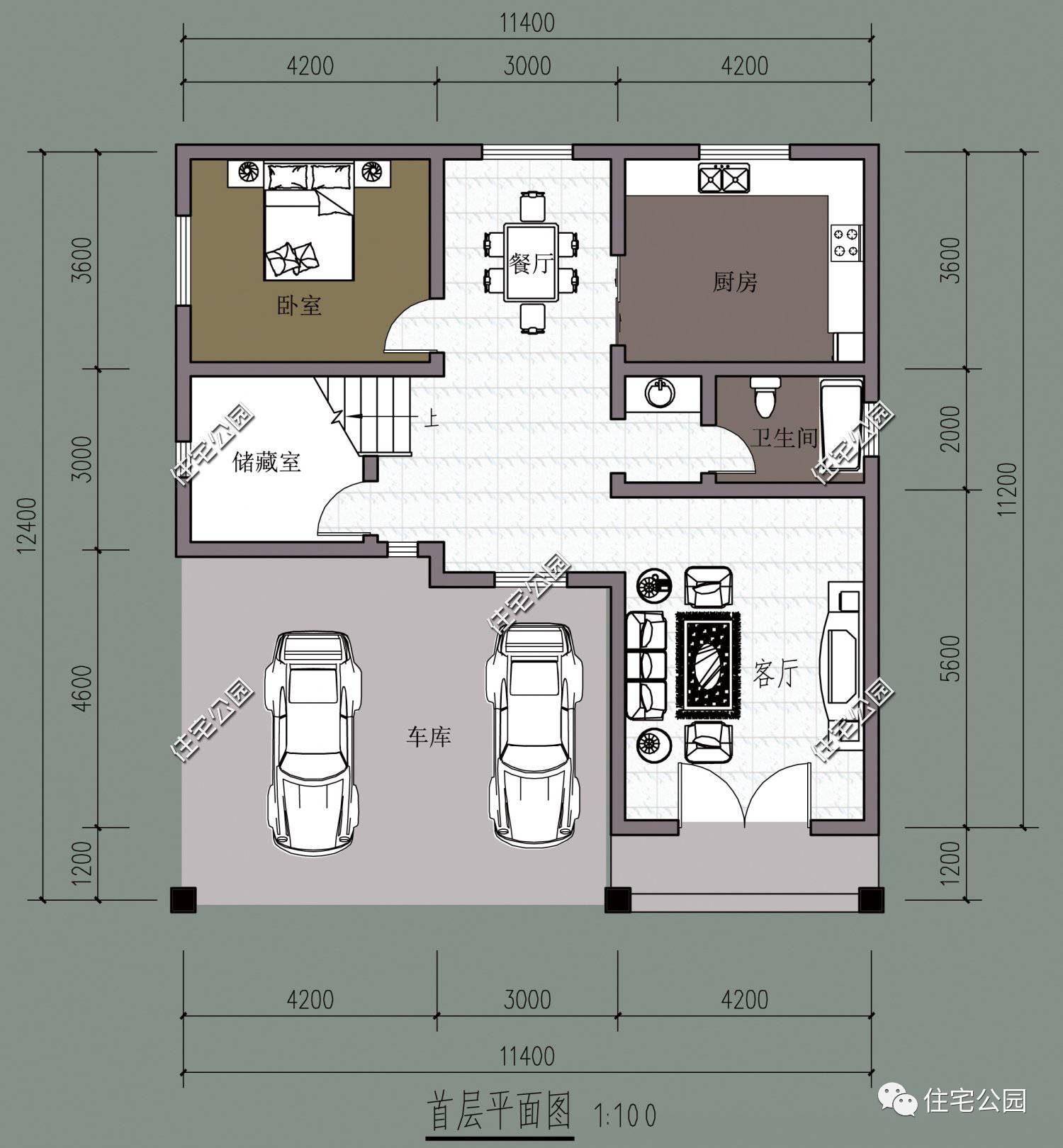
平面布局图:虽然占地小,但仍然设置了五个卧室,基本满足居住需要;布局设计将厨房设计在南侧,并单开门通向前门廊,加大的前门廊和客厅厨房相连,平时居住时,可以在檐廊下边用餐边乘凉。

二层为主要的居住空间,同时二层的露台直接通向公共区域,不经过卧室,家人之间的活动与休息互不干扰。

户型3效果图:简洁大气的外观极具现代建筑的灵动美感,素雅的风格也更贴合农村的自然风貌,充满了宁静美好的田园生活气息,令人欣然向往。

平面布局图:玄关、客厅和餐厅联通,空间更加通透开阔,居家行动也更加自由随性。

2楼预留了足够大的卧室,提供舒适的私人空间,方便起居生活;另有大书房,也可改做客卧,方便招待来客留宿。

户型4效果图:简单挺括的建筑线条,搭配精致的纹理装饰,简约不单调,精致又考究。

平面布局图:入户有玄关、格局划分明确、一层待客二层为私密起居。卫生间干湿分离,更加干净卫生。分别设有酒架、书房、茶室,丰富陶冶居家闲趣。


户型5效果图:简单雅致的色彩搭配,既有家的温馨感,又契合农村的秀美风光,更重要的是营造恬静祥和的居家氛围,更适合老人居住。

平面布局图:设有廊道,起到连接室内室外空间的作用;一层卫生间设在老人房旁,方便家中老人的起居生活。

.二层布局紧凑有致,除了基本的功能空间,另有储藏室,满足日常储存的需要。

户型6效果图:建筑线条简单却干净时尚,利用建筑形态设计出的双车位,可为爱车遮阳避雨。

平面布局图:布局设计注重空间的独立性,包括客厅餐厅与厨房,划分明确;室内布局充分利用每一寸空间面积,巧妙合理;在楼梯间设计了储藏室,完美收纳生活琐碎。

设计强调家人间的交流,强调休闲空间的营造,上下两个客厅,方便丰富起居生活。

户型7效果图:热情的红色,富足的黄色,还有自然质朴的仿石纹理,别墅立面色彩与材质的完美结合,成就了别墅田园风情之美。一砖一瓦间,尽显富足妖娆的乡村生活情怀。

平面布局图:一层南北通透,入户后视野开阔,空间气质得到提升;一层老人房紧挨卫生间,为老人生活提供便利。

方正的格局,没有浪费面积,二层设有茶室,待客喝茶聊天,丰盈一家人休闲生活。

户型8效果图:米色墙面红色屋顶的经典搭配,传达出田园之中悠然自得的生活状态。

平面布局图:空间面积的每一寸都被合理的利用起来,将楼梯下方做成储藏室,完美收纳生活琐碎;开门既是客厅,且延伸至棋牌室,视野开敞通透。(户型为定制设计,受宅地限制,北侧不开窗)

室内布局功能区域划分明确,起居室、客厅、茶室等丰富主人一家的家庭生活,同时也提升了空间品质感;别墅整体的结构上下水电对齐,易于农村地区建造。

微信公众号:住宅公园,500套别墅图纸,别墅施工专家答疑。