装修前参考对比过很多装修公司,包括传统装修公司以及互联网装修,以下为装修的新路历程,有需要装修的朋友可以进行参考
首先去了比较有名的传统装修公司,某思主要做整装,整装最不好的一点就是主材以及家具都是标配的,想要换样式或者升级都需要加钱,所以pass掉了。
之后又去了几家传统装修公司,设计师上来就聊优惠和套餐,虽然价格很诱惑,但是我知道这是装修公司的惯用套路,报价单那么多模糊项目,后期增项是必然的。去了那么多传统装修公司,终于知道传统装修公司本身就存在不可解决的弊端,何不尝试一下互联网装修呢?
首先接触了土巴兔,不负责装修,只不过就是一个撮合平台,严格意义上讲,我只是换了个人帮我找传统装修公司,这种换汤不换药的做法实属没必要。
当我正在苦恼的时候,在网上看到了当家装修,真正的互联网思维和我一拍即合,毫不犹豫下了设计订单,选择定制柜或成品柜,设计费18.8元/㎡,总花费1786元。
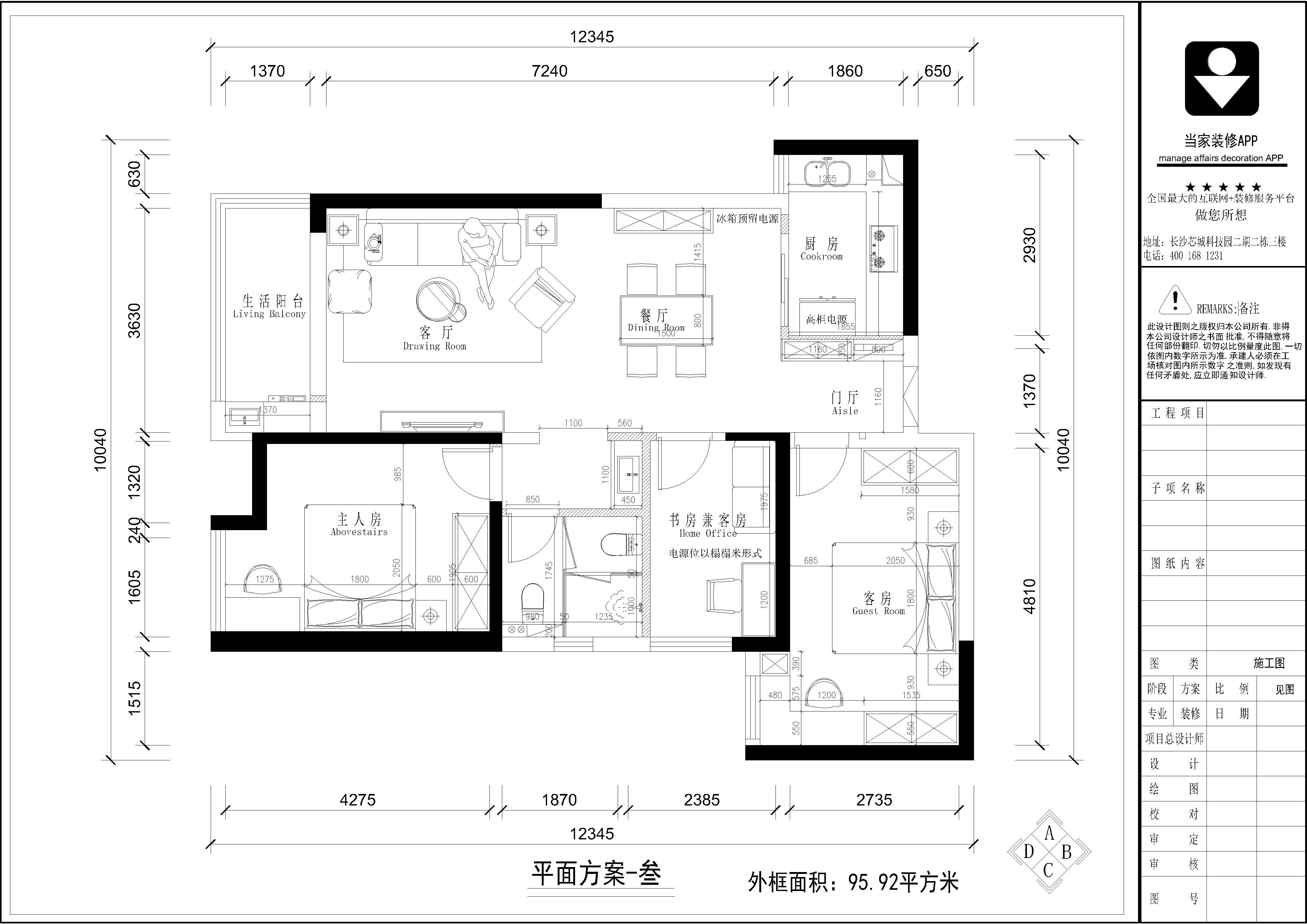
1、量房
交完设计费,设计师去房子量房,测量面积为套内实际使用面积,我家买房面积113㎡,套内面积95㎡


设计上主要做了以下改动:
①拆除掉玄关两面墙砌薄墙,将鞋柜嵌入墙体内,为了提高利用率,玄关两侧都做了柜体设计,一面做鞋柜,一面做为换鞋凳和全身镜,实用性非常高

②将卫生间墙体往次卧推,给卫生间更多的空间,打造了两个厕所,还有干湿分离,除了早上不用争抢厕所以外,还能让不桶习惯的家人更好的生活

③拆掉阳台与客厅的推拉门,打通客厅空间,让客厅空间没有那么压抑

2、精算
精算主要是根据设计图纸确定我家装修需要多少人工以及多少材料,只要不改动家里的施工项目,人工施工0误差,材料多退少补,只要是不影响二次销售,买多了都可以退货退款。以下是我家的部分人工以及部分材料精算单。


我家所有项目及价格都可以在这上面看到,公开透明,自己的每一分钱都知道花在哪里

3、施工
整个施工过程很顺利,有大管家把控工地的进度,师傅也按照平台的施工标准施工,最重要的是付一步做一步,最水电的时候,先把水电的钱支付给平台,师傅阶段完工,我点击审核通过后师傅才能拿到钱。一定程度上保证了工地的质量
4、花费
在当家装修总花费为5.0万,装修过程中,也改了些东西,原本做定制柜的,有几处的柜子改为现场做了,直接和师傅讲,师傅就会帮我改,后面再核算工钱即可。这种业主直连工匠的模式真的节省了彼此的时间,提高了施工效率。
对于100平来说,质量和材料都是高品质的前提下,性价比真的很高了。主材上,厨房的地砖是在他们平台1元一块抢的。其他的砖是和邻居一起在建材市场拼团买的,砍了差不多10%的价
这套房前期主要用来出租,后期再自己住,所以硬装上的要求会高点。软装的购买都是淘的比较便宜的,后期住进来肯定是要换掉的,买太贵不划算。

算上家里所有东西,花费在14万将近15万,奉上成品图

5、装修过程有没有增项?
整个过程除了我自己增加的施工项目以外,没有任何增项,后面核算材料的时候,还有几卷网格布没有拆,退了一百多块钱。
因为没有在平台买所有主材,所以在外面买的主材,施工都是包含在之前精算里面的,只需要在施工前把主材送到就行,还是挺省心的。
6、写在最后
如果还有一套房需要装修,我也会再次选择当家装修,能真正站在业主角度为业主考虑,施工标准化,装修流程化,确实是比传统装修公司更加靠谱。
如果你不是很忙,可以选择这种半包的模式,辅材和施工不用自己操心,只需要自己购买主材。如果你不在意自己花精力去装修,那我还是推荐当家装修的