2016年的开工第一天就遇到情人节,上班族估计都在筹划下班回家如何和老婆或者女朋友一个浪漫的惊喜,那么最实际的就是给她准备一个温馨浪漫的家。装修一套她喜欢的房子,来看看今年特别讨人喜欢的装修设计案例吧!
项目名称:中铁国际城
设计风格:简欧风格
设计单位:实创装饰集团
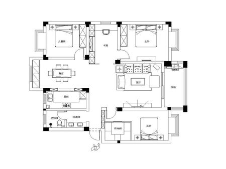
工程面积:101平
房屋类型:2室1厅1厨1卫
整体造价:82088元(设计+硬装)
设计说明: 本案为中铁国际小区户型,套内建筑面积101平米。欧式的居室有的不只是豪华大气,更多的是惬意和浪漫。通过完美的典线,精益求精的细节处理,带给家人不尽的舒服触感,实际上和谐是欧式风格的最高境界。同时,欧式装饰风格最适用于大面积房子,若空间太小,不但无法展现其风格气势,反而对生活在其间的人造成一种压迫感。当然,还要具有一定的美学素养,才能善用欧式风格,否则只会弄巧成拙。

业主需求:地中海风格,喜欢蓝色,希望整体有活力,温馨舒适,年轻人居住,要求有朝气
设计理念: 地中海风格的设计在业界很受关注地中海周边国家众多,民风各异,但是独特的气候特征还是让各国的地中海风格呈现出一些一致的特点。
预算说明: 前期设计,中期硬装施工主材代购,后期软装配饰的设计代购及摆场,最终业主拎包入住的状态

业主需求:本案位于东坝地区,首开常青藤小区,建筑面积130平米,常住人口5人。业主喜欢现代简约风格,要求全包给装修公司负责,但是要节省费用,合理分配每一个主材的费用预算。
设计理念:在格局上保留原来的格局,一切从简,简单的的直线吊顶造型,餐厅吊顶采用玻璃。
预算说明:全包价格15万元,包含主材及水电改造费用。

项目名称:首开溪园
设计风格:美式风格
工程面积:126O
房屋类型:3居2厅1卫
整体报价:111000元
亮点此户型为三居室,设计风格为美式风格,此户型改动的地方是将原有的主卧卫生间改为书房,讲入户的储藏间改为次卧的衣帽间,增加的一个房间和一个储物的空间。

设计理念:现代风格装饰特点:由曲线和非对称线条构成,如花梗、花蕾、葡萄藤、昆虫翅膀以及自然界各种优美、波状的形体图案等,体现在墙面、栏杆、窗棂和家具等装饰上。线条有的柔美雅致,有的遒劲而富于节奏感,整个立体形式都与有条不紊的、有节奏的曲线融为一体。大量使用铁制构件,将玻璃、瓷砖等新工艺,以及铁艺制品、陶艺制品等综合运用于室内。注意室内外沟通,竭力给室内装饰艺术引入新意。

项目名称:时代庄园
设计风格:现代简约
工程面积:120平米
房屋类型:2室1厅1厨1卫
整体造价:108088元(设计+硬装)
设计说明: 本案是一套两居室,客户是商人,基于职业的关系,对于家居空间的整体感觉要求:尽量简洁、实用,但必须体现家庭气质,色彩上要避免跳跃、平稳温和的感觉为主线。
