面积小,户型奇葩,采光差,
50㎡小屋如何隔成两局,还不显昏暗拥挤?
只做一点改动,就可以化解居住尴尬,
82年的老公房也可以简约清新,带着小资情调。

房屋信息:
坐标:上海
面积:50m²
费用:15万
设计师说
这是一套82年的老公房,无电梯,屋主想要装修好出租给周边上班的单身白领,同时能够方便以后自住再重新改造。
改造灵感
改造关键词:简约 清新
家具选用原木+白色,随意自然中带着小资情调,同时考虑到以后会租给老外的可能性,在局部细节带入东方元素。
色彩搭配:60%白色,30木色+黑色,10%绿色+灰色
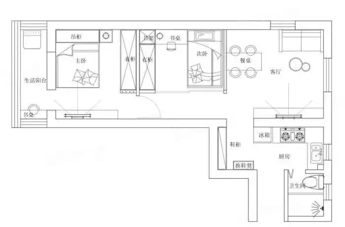
户型图

▲
原始户型
客餐厅比较大,朝南,但采光并不理想,只有一个北卧室。为了加强格局上的动线流畅和采光,首先需要拆除主卧和餐厅的隔墙。

▲
改造后户型
1、将原先的客餐厅改造成两个卧室。
2、将客餐厅置于离厨房较近的位置,使得动线更为合理。
3、隔断选用的是玻璃材质,保证每个空间有足够的采光。
4、尽可能多的增加内嵌式储物空间。

玄关

▲
玄关与厨房相连,由于空间太小,因此吊顶直接用厨房的白色铝扣板,不再做区域上的划分,地面同样从厨房延伸过来,铺设仿木纹地砖。
在玄关的上方放置一个3瓦的暖黄射灯,打造简易通透的玄关,视觉上也比较有质感。
客厅

▲
宽度不超过80公分的双人沙发,在款式选择上,尽量选用细脚,餐桌椅也选用铁艺的细脚,尽可能的从感官上使空间不那么局促。
颜色选用浅木色系做呼应,如果要选用地毯,建议不要超过沙发的宽度。

▲
为了满足屋主的需求,由原来的一室户,改造成如今的两室,利用客餐厅空间,中间隔加出一个房间,考虑到通透,全部用落地窗,和开窗做了隔墙。

▲
白墙,黑线条,绿植,木色等元素,是打造小户型的经典配色方案。

▲
不需要太大的遮光需求,客厅选用纱帘。
由于是半窗,同时窗的宽度在1.2米以内,不建议做满墙和落地窗帘,窗帘的长度,建议超过窗台10-15公分左右,对小空间来说会更加轻盈和清爽。
厨房

▲
开关尽可能的多放置些在墙面备用,方便日后家用电器的充电使用,例如扫地机器人,或者是吸尘器等,所以在玄关处也放置了两个备用开关。

▲
由于厨房的面积较小,做了简易的L型厨房,对于不经常煮菜的小夫妻足够。
可以将更多的面积留给玄关,留存更多的储物空间。厨房建议用百叶帘,在夏日比较炎热的时候,有一定的隔热作用,同时也容易清洁。

▲
卫生间的门洞只有70公分,所以选用不占空间的折叠门,就算全部开启也能有60公分的空间。
它不像开门一样,要加底板,包门套,可以减省一部分的空间,同时适用于里开外开都不方便的情况。
餐厅

▲
餐桌上的灯是从日本海淘过来的,目前淘宝也有很多代购可以买到。
造型上简约好搭配,在木质与铁艺的元素上做到很好的点睛,不至于很死板沉闷。

▲
餐桌和次卧的窗选用的是黑色的铁艺烤漆来做,这样可以使得浅淡的空间更有层次感,桌腿用细线条,也是为了尽少的占用空间,显得轻快些。
卫生间

▲
卫生间只有两个平方,还有落水管占用空间,所以为了尽可能增加空间,做了素水泥墙面,水泥粉光=两层水泥,能达到20mm厚。
水泥粉光的工艺优点是表层均匀细腻,铺在地面上不易开裂,即使有裂缝也比较细,不显眼。
卧室

▲
相对于铁艺床,皮质靠背床,会更加的舒适,再配以羽毛灯,显得柔软温馨。

▲
阳台做了阳光房,玻璃上方做了蜂巢帘,独特的蜂窝结构,使空气存储于中空层,令室内保持恒温,隔热保暖。

▲
卧室的门是定制的,铁艺烤漆玻璃门,小户型最重要的就是采光,为了增加过道的采光,所以卧室选用了玻璃门,如果需要遮挡,可以在铁艺门的上方增加门帘。
次卧
床和阳台之间的墙面加了木质台面,可以作为一个小小的工作区,同时可以放置一些床头书籍,或者茶水杯,手机,iPad的床头随身用品。

▲
次卧是原先客餐厅隔出来的6个平方空间,可放置一个1.2米的床,和一个1.2米的书桌,还有一个1.6米的衣柜,为了增加采光和通风,两面都是用玻璃隔断做的,靠餐厅的位置做了开窗,靠走廊的位置,做了黑色烤漆的落地移门。
阳台

▲
用了一字板做书桌,可使的书桌的下方有更多的空间,不使用的时候,可把椅子放置进去。
走廊

▲
走廊天花可添置一盏清新的吊灯,不再是一成不变的吸顶灯。