
镇楼图 因为没有想过要做清单 所以没有留楼 不过遥想混乱的装修过程 其实很多细节都不清楚了
谢谢大家的关注 于是把一些关注度高的东西贴在这
---
地板是菲林格尔的强化地板 280每平
吊顶的灯是T5的
我们家有部分等是好饰家买的 不过价钱挺贵的 其他的大部分是在网上一家店奥朵买的 也不贵 几百块 可以看看
厨房和卫生间的砖都是L&D的 非同一系列 90/㎡
花瓶不是TB 随手买的 大家可以自己在网上或出去随便淘淘
沙发斯可馨的 3.6m
中厨是宇邦的 一共8000
餐桌康耐登
电视背景墙是贴的墙纸
西厨是设计师推荐的 白烤漆亮面门板 为了省钱 按照普通柜子做法做的
由于平时工作很忙 所以当初装修的时候首先考虑的就是一定要干净好打扫 当然温馨是一定要的 不用太华丽 实用是王道
其次 房子的阳台很多 但利用率不高 希望可以改造一下
主卧希望宽敞一点 还要有一个衣帽间
因为常住人口有五个 所以卫生间必须干湿分离
对于主色调是在设计阶段确定的 色重但不压抑
基本要求是这样

对不起大家 前几天太忙了 没时间 趁今天休息过来更

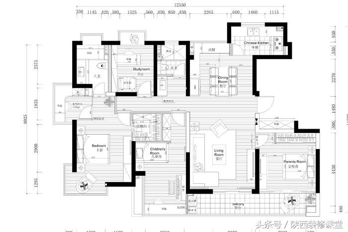
上房型图 有类似房型的~

平面布置图

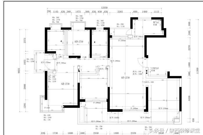
原始测量图

开始上餐厅啦



强烈要求的干湿分离

过渡到房间






书房
我的地盘~






已购:
汉斯格雅厨龙 39840001
客厅灯(1950年)
汉斯格雅入墙龙头(次卫)16532821
汉斯格雅台盆龙头(主卫)06041000
餐厅灯(不知年份的旧货)
baldwin内门锁 madrina
壁灯(客厅或主卧还没想好,不知年份的旧货)
汉斯格雅淋浴柱*2
blancl花岗岩水槽 513268
thibaut壁纸
客厅照画灯
跃龙门防盗门
立川折叠门
ixpe地板膜
比特兔×wedgwood古董装饰盘
吉普力+杜拉维特套装
bwt 前置反冲hws
主卫石湖瓷砖
黑五购入的apec ro90+戴森v6 total clean
丽辰壁炉芯
松下暖浴快30bks1c+30bk1c
德林生态木
浴室柜、杂牌贝壳台盆、toto718b主卫马桶
world art 下单原版画芯
方太油烟机EM10T+灶头HC1G
abb德逸+众明筒灯
冰箱日立7300F+洗衣机东芝117X3
老货红灯牌收音机
toto 卫洗丽tcf8pf32
镜子、推车和野兽派
日立水波炉ry3000
一些ebay淘宝小败
灯具
竹帘

最后一张图 结束!
