户型为量房两厅两卫一厨一入户花园!
下面是效果图效果图









部分施工图

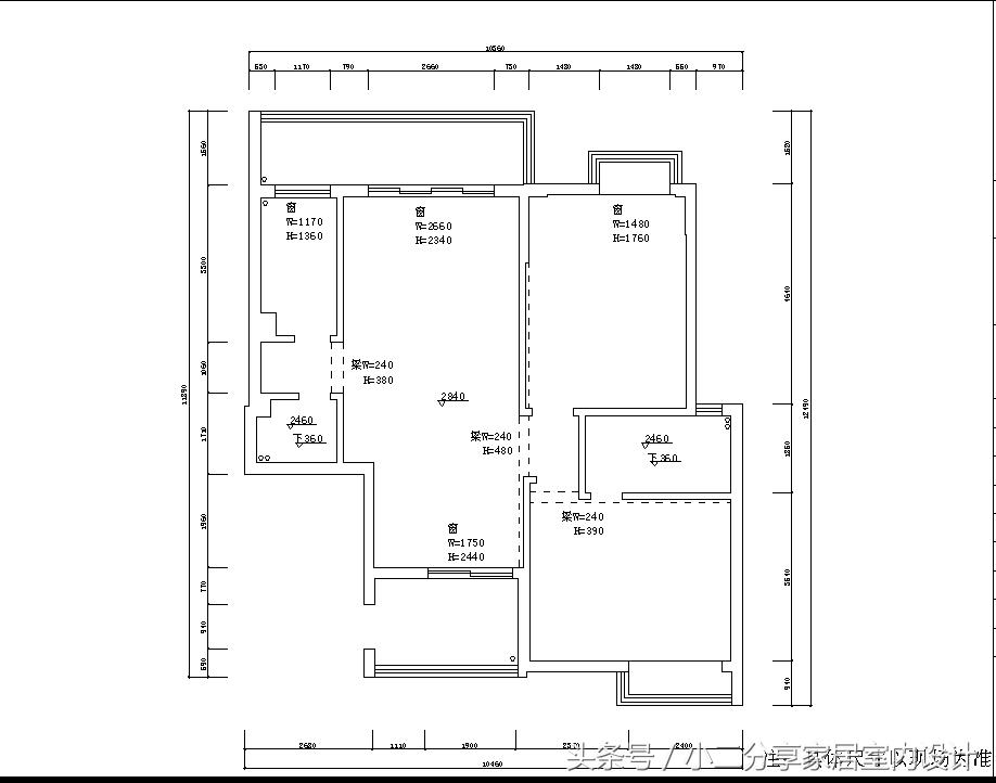
原始结构图

家具平面布置
大家要看到的是就是这个家具怎么布置才比较的好,这是很多人需要了解的。看看人家怎么设计。

吊灯布置图

在这里我们只能这样放出来!
正规装修前都会有施工图、效果图、预算书(预算我们之前放过了,这里就不重复),这才叫真正的装修!
户型为量房两厅两卫一厨一入户花园!
下面是效果图效果图









部分施工图

原始结构图

家具平面布置
大家要看到的是就是这个家具怎么布置才比较的好,这是很多人需要了解的。看看人家怎么设计。

吊灯布置图

在这里我们只能这样放出来!
正规装修前都会有施工图、效果图、预算书(预算我们之前放过了,这里就不重复),这才叫真正的装修!