
△ 效果图与模型照片 ©汤桦建筑设计
2020年初,在家办公的我们迎来深圳歌剧院建筑方案设计国际竞赛。在公开征集阶段100余家海选大战中,汤桦建筑设计作为唯一一家单兵作战的深圳本土团队入围,冲进了第二轮竞赛。
在深受疫情影响的萧瑟气氛中,席卷全国的城市建设“嘉年华”更让我们颇为困惑,此时此刻的深圳歌剧院竞赛,引出了我们长久以来对于“超级”城市公共建筑课题的思考和答案。


△ 鸟瞰效果图 ©汤桦建筑设计
符号VS真实的生活
相较于一个明信片式的符号,我们更注重歌剧院项目给本地居民带来真实的生活提升,并进一步发挥产业联动作用,带动整个片区。

△ 区位 ©汤桦建筑设计

△ 建筑与城市关系示意 ©汤桦建筑设计
我们设想这里有专业的演艺空间、博物馆、文献中心,也有一些培训基地,甚至是可以对外出租、开放的专业场地。歌剧院不再只是一个单一的表演空间,而是一个表演的产业群落。与此同时,日常的城市功能也成为整个街区之间的粘合剂,市民和本地艺术家可以通过多重方式来使用这个资源,共建广义的文化街区和文化艺术生态系统,最终成为深圳自己的艺术土壤。


△ 构思草图 ©汤桦建筑设计

△ 效果图 ©汤桦建筑设计
物体VS街区的肌理
相较于一个形象单一、尺度超常的观演建筑,我们更希望歌剧院呈现出一种片段化的肌理,成为一个以街道意象为底色的剧场群。它的边界是开放的、多样的,和既有的城市空间融为一体。

△ 具有街区肌理的艺术社区 ©汤桦建筑设计

△ 剖透视示意图 ©汤桦建筑设计
公共服务和文创体验区以适中的体量与城市肌理衔接,同时溶解了四个大体量的演艺空间——多功能厅、音乐厅、歌剧厅和戏剧厅。骑楼作为主要的街道界面,成为增加街道活力和适应地域气候的重要保障。开放而且多样的结构,确保了多功能、多事件的发生,为艺术生态系统的培育创造了空间。


△ 夜景效果图 ©汤桦建筑设计

△ 模型照片 ©汤桦建筑设计
雕塑VS界面的形象
相较于雕塑化地建造一个庞大的歌剧院体量,我们以界面表达歌剧院的标志性。设计用一个留白的场所,在自然与城市街区相遇的界面建立起一个纯粹的容器。


△ 夜景效果图 ©汤桦建筑设计

△ 模型照片 ©汤桦建筑设计
标志性的“表现”空间(超级舞台)与专业的技术空间(歌剧厅、音乐厅、剧场等)完全剥离,以获得更好的山、海与城市尺度关系,优化了歌剧院的整体能耗,减少无谓炫技带来的造型成本,把歌剧院内向的公共前厅等空间释放给街区和海湾。

△ “超级舞台”概念示意 ©汤桦建筑设计

△ “超级舞台”效果图 ©汤桦建筑设计

△ 望海栈道效果图 ©汤桦建筑设计
在此次竞赛中,汤桦建筑事务所与另11家设计团队入围方案深化阶段,同8家受邀参赛团队共同争夺优胜单位。最终,在3月16日的结果揭晓中,让·努维尔事务所荣获此次竞赛的一等奖。
而对于我们来说,此次设计我们意在营造一个非物体的剧院群落,在肌理化的艺术街道中呈现多样化的场景和一个留白的非纪念性/非雕塑性公共建筑形象,由此建构深圳本土的文化与乡愁。

△ 以当代手法转译传统木屋架 ©汤桦建筑设计

△ 城市客厅效果图 ©汤桦建筑设计
设计图纸

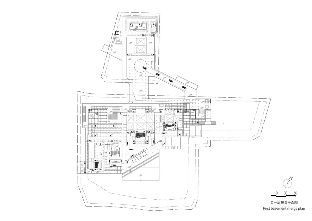
△ 负一层拼合平面图 ©汤桦建筑设计

△ 一层拼合平面图 ©汤桦建筑设计

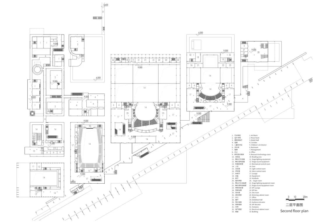
△ 南区二层平面图 ©汤桦建筑设计

△ 南区三层平面图 ©汤桦建筑设计

△ 剖面图 ©汤桦建筑设计
项目信息
项目名称:深圳歌剧院
项目类型:建筑(含规划/景观/室内)
项目地点:广东深圳
设计单位:深圳汤桦建筑设计事务所有限公司
主创建筑师:汤桦
设计团队:戴琼、闫沛琪、王鹏富、杨原、张秋龙、毛铁勇、陈旭、易熙豪、汤孟禅、卢璟、刘华伟、郑昕、王鲲、于文博、杨尹芳
方案状态:资格预审入围方案
设计时间:2020年1月—2020年6月
用地面积:144000平方米
建筑面积:169238.84平方米