
APP Store 排名第一的家居杂 志

屋主两人对于家的样子,有着不同的想象,男屋主期待的家是内敛、稳重的,有着现代美式风格的优雅与沉静。
而女屋主则希望在新家里,能够延续他们在新婚旅途中领略过的北欧风情,把斯堪的纳维亚的轻盈明亮带回家。
把两人对于家的想象揉碎、重组。
色调上,取自于二人曾经领略过的北欧风光——天无遮蔽,地无装饰,上下一片空明的纯白天地上,铁道与白雪对比,穿梭在画面中的红色火车,打破了空明大地的宁静。于是便有了公共空间白、黑、红的由来。
而框架上,则用优雅的美式线条勾勒,为空间营造层次,融入了内敛稳重的氛围,让空间不至于过于轻盈而显得轻佻。
不偏不倚,让两人的喜好在同一空间融合共生,打造了一个真正属于二人的二人世界。
项目信息
地址:四川成都 金牛区
面积:127㎡
风格:北欧美式混搭
户型:套四
预算:45万
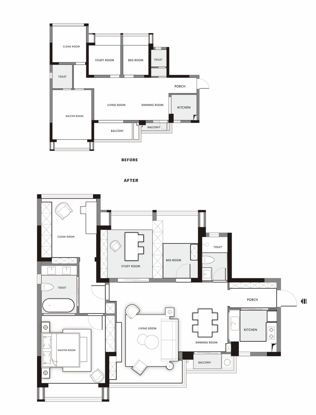
户型图

①打通客厅与阳台,拓宽客厅进深,让公共空间更加宽敞通透。
②把主卫北侧的房间与主卧打通,构建一个带独立衣帽间、卫生间和卧室的大套房。
③女屋主有超多的衣服,除了衣帽间,我们在主卧也进行了储物功能的补充。把主卧与客厅之间的隔墙往客厅侧移动,为主卧的嵌入式衣柜腾出空间,增大主卧的储物空间。
④在不改变厨房面积的情况下,仅仅把厨房门由左侧改为上侧,即可实现U形橱柜,让厨房操作更加便利。厨房与餐厅之间用窗户取代隔墙,增强两个空间的联系,增进情感互动。
客 厅

顶面、立面以大面积白色铺展开来,营造斯堪的纳维亚风格的轻盈明亮。

置身于客厅中央,能感受到黑白对比、红油画、以及大理石的协同作用。柔软与硬朗、温暖与冷感得以中和平衡,形成了一股流动的自然诗意气质。

家具、配饰与空间的色调形成反差,鲜明的明暗对比让整体视觉更富视觉张力。舒适的落地沙发,配合轻盈的泰迪椅让轻松主义不会显得轻浮。

电视墙斗柜色彩与挂画呼应,有格调的红,为这个纯净的空间注入更多生机和暖意。

硬朗的大理石、柔软的磨砂布料,虽是完全不同的材质,在纹理上却有巧妙的呼应。

两幅装饰挂画并排陈列,内容虽不大相同,色调上却有着千丝万缕的关联,让空间氛围在静默和趣味中流动。
餐 厅

倾尽巧思的简致营造出敞亮而轻松的就餐和会客氛围。晨起的简餐,或午后的茶歇,一个有仪式感的就餐环境成为了生活里不可或缺的场景。

似绸缎般缠绕的吊灯的柔情,中和了餐桌的硬朗,刚柔并济。

厨 房

橱柜柜门用简洁纤细的线条勾勒,更具北欧风格的轻快明朗。墙面地面铺贴同种花纹的柔光砖,使空间在立面上得以延伸,更有大气开阔的视觉效果。厨房与餐厅之间开启的窗扇,让厨房大面积采光,弥补了原本小窗扇采光不足的缺憾。

书 房

书柜设计有藏有露,下部分封闭式柜体储纳杂物,上部分透明玻璃柜展示屋主的摆件、照片和书籍。墙面现代艺术风格装饰挂画大胆而有趣,红与墙面蓝色形成反差,打破了传统书房沉寂内敛的氛围,一个有趣的书房,更是让人久呆不腻。

书房左侧定制护墙板,与右侧柜子色彩材质保持统一,其余墙面部分涂刷蓝色乳胶漆, 整体空间色彩丰富有层次。

儿童房

儿童房做了榻榻米设计,使原本不大的空间有了更多的使用面积。衣柜柜门做了上下分色处理,下部分柜门与床头护墙板色彩纹理一致,把床包裹在其中,给人内心稳定感。

卧 室

安宁静谧的氛围营造,令踏入主卧门的第一时间便感受到安抚。简约柔和的色系与金属灯搭配打造低调的摩登感。

左侧腮红女孩挂画为温馨的卧室添注了一份可爱的趣味,平衡了主卧的稳重感,拉进了空间与九零后屋主的距离。

主卧与主卫之间用长虹玻璃隔断,让自然光更多的引入主卫,弥补了原本主卫采光不够的缺憾。

床头呈现出简约、平静,又不失时尚的独特个性。繁简相恒,丰富质地的灵感邂逅中性色的内敛气息。

卫生间

卫生间墙地面采用统一鱼肚白大板砖,营造出精致的生活气息。超长双盆洗面台优雅又实用,早晚一起洗脸刷牙,幸福就藏在这些琐碎的日常里。

衣帽间

干净简洁的设计在衣帽间中发挥地淋漓尽致。除了功能性的使用,空间也充溢着浪漫愉悦的色调。百褶吊灯,羊羔毛座椅、粉色丝绒窗帘,将女主人的个性与气质融于其中。

案例图文来自 成都观白设计
PChouse家居杂志
版权所有 · 盗版必究
欢迎转载 · 注明出处
>
>
轻灵的雨,软的风,三五好友的屋顶小酌,这个家是人间四月天
>
>
“90新潮家” : 新潮如你,SHOW出家的最美姿态

020-38172888-8123
PChouse家居杂志商务合作
020-38178288-4096
gelili@pchouse.com.cn