当成都主城全面走向改善化,面积动辄150㎡以上,万万没想到在2.5环,还有一个宝藏楼盘,还有90㎡以下的小户型,它就是大陆潮里。
这个楼盘,参与过摇号的朋友一定不陌生,它在去年9月和今年1月分别拿过两次预售,每次都有上千人排号,中签率最低仅11.19%。

大陆潮里2次取证情况
能每开每罄,自然离不开项目2.5环的优越地理位置,以及极具性价比的价格。
而这一批次,项目将推出最后一栋住宅,卖完就清盘。
不可多得的是,最后这一批次,是清一色的小户型,最低总价100万,首付30万就能拿下,诺大的主城,还能找到比它总价更低的楼盘吗?
尽管,价格上会比前两批次上涨一些,预计带装修1.7万/㎡,但是依然值得买!
项目基本信息
项目地址:成华区中环路昭觉寺横路11号
户型:59-89㎡
交付标准:带装修
预售套数:150套
梯户比:2梯6户
楼层:28层
交房时间:预计2022年
物业费:3.1元/㎡·月
物业公司:四川大陆英联华物业管理有限公司
开发商:四川省轩苑房地产开发有限公司
主城2.5环,配套熟透了
大陆潮里位于东北2.5环,背靠动物园和昭觉寺汽车站,属于昭觉寺-青龙场板块。
中环路、昭觉寺南路、城北出口高速以及二环路等道路网络纵横, 地铁3号线昭觉寺南路站与项目直线距离仅500米,交通出行问题完全不用担心。

商业
项目自带约1.6万方商业街区,与泛悦城市广场仅一街之隔,1公里范围内有华润熙悦广场、泰业北辰广场、东立国际广场等。
如果这些商业还不能满足你的需求,地铁6个站,不到20分钟,就能直达春熙路、太古里;地铁2个站向北,就是宜家和富森美。

教育
项目2公里范围内有成都三十幼儿园、成都双水小学、成都北新小学、锦官城小学、成都四十四中、石室初中。
医疗
项目斜对面就是城北医院,就医非常便捷。地铁3个站到李家沱,还有三甲医院——成都416医院。

其他
项目背后就是成都动物园,周末带孩子去看看小动物,不要太便利!
主城难得<90平小户,帮你安排了
项目此次推出的是二期,只有1栋住宅,共150套房源,数量很少。

从下图可以看出,项目二期是一个单独的小地块,包括1栋住宅和1栋公寓。
公寓和住宅以后会从同一个大门进入。

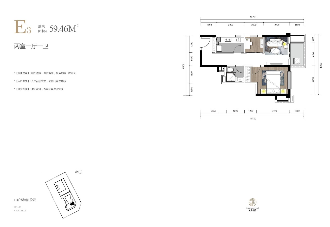
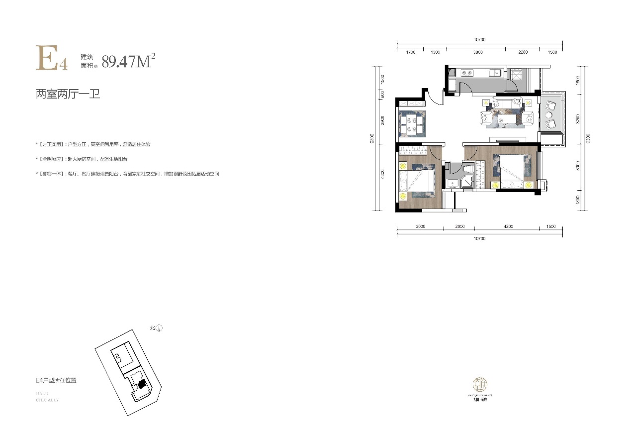
住宅共28层,其中1-3层为商业,2梯6户,建面59-89㎡套一套二,共6个户型。
其中,套一户型2个,分别是59㎡和61㎡,这两个户型可以改造成小套二,只是其中一个房间会非常小,只能用来做书房或者休闲空间。


套二户型4个,包括82㎡、85㎡两个和89㎡。




82㎡户型和套一户型朝西,夏季面临西晒的烦恼,且前方会受到金地商置项目遮挡;85㎡和89㎡户型朝东,且前方没有建筑物的遮挡,视野也相对更好。
从户型布局来看,套二户型几乎都是双阳台设计,除了E2户型有一个暗卫以外,其他都是明厨明卫。
小贝推荐89㎡和E5户型户型,89㎡户型两个卧室都有12㎡左右,可以放下1.8米的床,居住起来不会显得逼仄;E5户型设置了玄关,且卫生间的空间相对比较大。
首付30~45万,人人买得起
项目预计7月底取证,带装修1.7万,装修带新风系统,其他标准暂未出炉,本周末会开放实体样板间,感兴趣的朋友可以去参观。虽然价格相比前两批次有所上涨,但是在主城区依然很有优势,同一环线位置的楼盘,哪个单价不是2万+。

项目最小户型59㎡算下来,总价100万左右,首付30万就能搞定;最大户型89㎡总价也只要150万,首付才45万,就问你香不香?
当然,尽管地理位置优越,但是项目本身还是有不少bug,比如地块太小,公寓和住宅从同一入户大门进入,人员杂乱,居住环境不纯粹,但是在价格面前,还要啥自行车?
购买建议
没有啥建议!买就是了!预算有限的刚需,哪有资格挑挑拣拣,这么好的机会入驻2.5环,错过就没了。
小贝踩盘时,接待的置业顾问手里已经有将近90个客户,可以预见,项目开盘,又将成为万人摇的"网红盘"。