钢结构板单元进料栈桥总布置图

栈桥平面(贝雷梁)布置图


桥梁下部结构预制场地平面布置


承台存放台预制模板布置)










承台+底节(预制模板布置)












顶节(墩身、墩帽)预制模板图




承台及墩身模板



承台吊装示意图

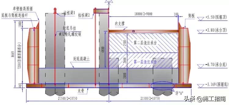
钢筒围堰结构及止水图








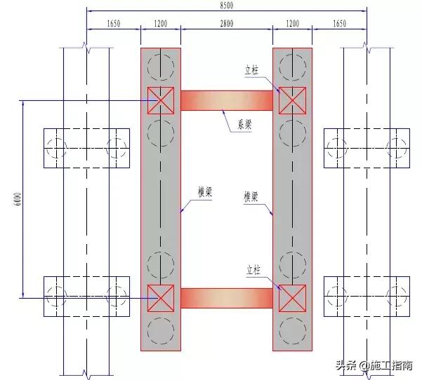
预制承台挂桩布置图

承台挂桩布置立面图




承台限位装置图
桥面板预制、存放


墩钻孔平台结构布置图







过渡墩
墩旁托架布置图


架梁吊机结构图



钢结构板单元进料栈桥总布置图

栈桥平面(贝雷梁)布置图


桥梁下部结构预制场地平面布置


承台存放台预制模板布置)










承台+底节(预制模板布置)












顶节(墩身、墩帽)预制模板图




承台及墩身模板



承台吊装示意图

钢筒围堰结构及止水图








预制承台挂桩布置图

承台挂桩布置立面图




承台限位装置图
桥面板预制、存放


墩钻孔平台结构布置图







过渡墩
墩旁托架布置图


架梁吊机结构图


