一份设计,一种生活
一道时光之门
探索家居前沿秘钥...
视频加载中...
巴迪斯拥有一支强大的“精工团队”。
✔TA们懂设计,会生活,更懂你所求
✔TA们来自五湖四海,可盐可甜可酸辣,风格各异
✔TA们时常游走在理想家居与“骨感”现实之间,经验老到
✔TA们十八般武艺样样精通,只要你想得到的,没有TA们做不到的
✔从设计到沟通,再到“落地”,只为打造最合您“心水”的空间
他们就是——巴迪斯精工顶墙展示设计团队!
接下来让小编隆重为大家介绍这支团队的第一名成员。
他——
巴迪斯精工顶墙展示设计团队中
经验满满的老司机,
谈笑间,多少创意idea迸发,
每一间他设计的门店,无一不是大受好评。

杨锦卓 / Yang Jinzhuo 巴迪斯精工顶墙空间设计师
设计师简介 Basic info
杨锦卓,从事空间展示设计师的工作4年以上,深谙人与自然的和谐之道,擅长打造空间视觉与商业价值相结合的舒适空间。
设计作品 Experiences
1.巴迪斯化州专卖店
2.巴迪斯承德专卖店
3.巴迪斯温州专卖店
4.巴迪斯深圳专卖店
5.巴迪斯许昌专卖店
6.巴迪斯酒泉专卖店
店面欣赏:酒泉专卖店

酒泉敦煌莫高窟(图片来源于网络,侵删)
沿着河西走廊一路向西,最后一站就是酒泉。西北黄原上,粗粝的风夹杂着的,是悠久历史与时代生机。

巴迪斯六代轻奢智慧门店
当酒泉的大美之境遇到佛山巴迪斯的精工顶墙,将会碰撞出怎样的火花?本期带您走进巴迪斯6代轻奢智慧门店——酒泉专卖店,感受巴迪斯的至臻家居体验。
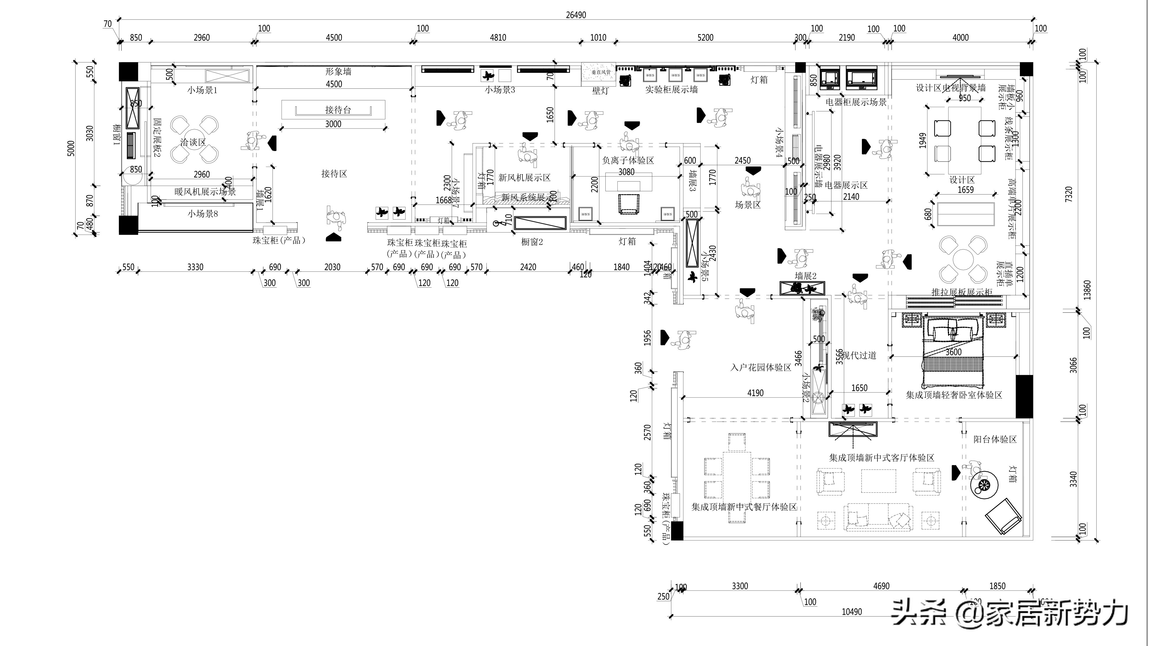
1.店面整体布局

店面整体着重契合品牌调性“东方奢简”进行打造,采用大理石、金属、光线等元素,打造空间的层次感,彰显质感生活的品味格调,展现现代人舒适、简约、低调而内敛的生活品质追求。

▲ 门店平面规划图
门店面积225m²,整体划分为空间体验区、功能体验区、产品设计区、产品小场景等,同时门店入口考虑人流、店主需求等因素,多角度考量舒适度、实用度、美观度的呈现,实现店面空间合理利用的最大化。
2.外立面欣赏

门店外立面以代言人宋佳形象照与小场景展示相结合的形式,提升门店形象,吸引消费者驻足停留与进店参观。

金奢质感,凸显层次感的同时不会过于轻浮,演绎有别于敦煌风情的摩登性感。

▲摩登演绎 小场景
橱窗内的小场景,仿佛点睛之笔,赋予生活别样格调。抓住顾客的第一眼印象,展示品牌高端形象,形成良好的消费体验。
3.店内设计欣赏
店内整体设计中,体验间明显是设计师的“宠儿”,通过展现多样化的家居空间,客厅、餐厅、卧室、浴室、阳台、过道等日常场景,营造良好的空间氛围,拉近产品与顾客的距离。

▲客厅体验区

▲餐厅体验区
将家的场景,在门店中呈现,让实体场景化,空间效果看得见。空间与产品的良性融合,升华产品质感的同时,极致演绎浸入式体验区设计。

▲卧室体验区

▲过道体验区
点、线、面设计构思,赋予空间视觉层次感与更大空间张力,奢简轻盈的外形融合东方韵味点缀其中,打造国人自有的理想居所。

▲阳台体验区

▲负离子体验区
一千名顾客,一千个哈姆雷特,如何在有限的空间,最大程度获得消费者的共鸣,成为门店打造的重中之重。小场景较之体验区的表达,则是更加弹性的。通过小场景,你可以看到INS风、轻奢风、新中式等主流风格的演绎,以及生活态度的表达。

▲小场景展示

▲小场景展示

▲小场景展示

▲小场景展示
线上与线下的最直接区别在于实物的体验感,小商品可以退换,但家装等大宗商品还是选择实体店体验比较靠谱。在巴迪斯终端门店中,除了产品的设计展示,当然还有产品功能体验了。

▲功能电器展示墙

▲龙骨-展示柜、板材-抗油污展示柜、灯板对比测试柜

▲新风系统体验区
可实操的功能体验区,如功能电器展示墙、龙骨-展示柜、板材-抗油污展示柜,灯板对比测试柜,新风系统等,让消费者对巴迪斯产品有一个全方位的了解,强化消费者对产品品质的信心。

▲产品设计区

▲产品设计区

▲产品设计区
所有终端展示的最终目的都是促成门店与客户的最终成交,特别设置的设计专区,为消费者提供一个近距离接触产品、获取产品信息、体验产品的空间,为最终成交打出完美助攻。
项目概况

项目名称:巴迪斯酒泉专卖店
项目地址:甘肃省酒泉市富康购物中心二楼
项目面积:225㎡
项目年份:2018年11月
店面设计及软装:杨锦卓
空间设计指导:任学威
平面设计指导:陈飞
我为巴迪斯打call

巴迪斯酒泉专卖店经销商 李永梅
加盟巴迪斯将近11年了,见证巴迪斯一路走来的风风雨雨,品质的匠心坚守、品牌的不断壮大、强有力的门店保障,是我们的强大后盾。——李总
设计改变生活
巴迪斯6代轻奢智慧门店
开启健康、环保、智能家居新体验
27年只为承托
一个顶,一家梦