住友@月亮猴mockmoon 的家,是个 79㎡ 的两居室,一个人住,绰绰有余。更绝的是,他还打造成一个智能会客厅。
早上醒来,窗帘自动拉开,音乐响起;人来灯亮,人走灯灭;下厨时油烟机自动等候……全部这些操作,都不需要自己动手。

朋友来访时,有 KTV 和酒吧备着;独处的时候,庭院和书房才是好去处。能动能静,一个字:妙!

一个人住,
解放双手才是关键。
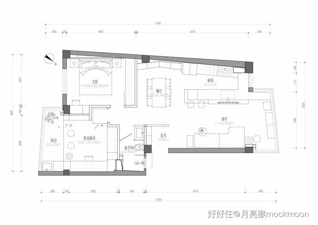
房子是 2003 年建成的,原本是个传统的两室一厅,厨房小,无玄关卫,室内杂乱昏暗。

不过,熟知自身生活习惯的月亮猴,看了房间就立马明确自己的居住需求:
需求清单:
① 尽可能实现智能化家居,少干家务;
② 时常聚会,看电影玩音乐喝酒桌游不能少;
③ 喜欢互动式下厨,空间要充裕;
④ 爱调酒制作饮品,得有吧台;
⑤ 有收集物品多,收纳充足还要便于整理。
找来好好住app认证设计师@理居设计,按照他的需求,量身定做了一个向往的独居生活模板。
户型改造:
① 入户增加隔断,形成半遮挡的玄关;
② 拆除厨房墙体,打造客餐厨一体;
③ 缩小主卧面积,让出更多餐厅空间;
④ 利用客厅阳台打造音乐角;
⑤ 次卧改成多功能室,增加日式庭院。


<< 滑动查看改造前户型 >>
至于他期望的懒人模式,用 小米通过网关+APP场景预设+感应器+人机交互来实现。



<< 滑动查看全屋智能系统 >>
值得注意的是,智能家居一定要在 设计阶段就做好规划和需求 ,特别是灯光,不提前留零火线麻烦无穷。


全屋所有光源嵌入智能设备,通过app营造不同场景模式。
在家就能K歌泡吧,
简直不要太爽!

入户左边鞋柜 采用按压式柜门,外观够简洁。隔断做了个五线谱蝌蚪造型的镂空,避免一眼看穿,又多了点探究空间的趣味。


从玄关到客餐厅无高度差无门槛石,方便机器人行走。
隔断旁边的黑色玄关灯上放了一位宇航员,是家里实打实的「门面担当」。


餐边柜的踢脚线直接和地板连成一体,营造出流淌的动感。
入户右手边装了 与门等高洞洞板,挂钩可自由调节,出门穿戴的衣帽,雨伞等等都有了容身之处。


从按下门锁的那一刻,玄关和客厅灯就会自动亮起,离家时全屋灯自动关闭。
客厅其实是一个集 音乐吧+咖啡馆+酒吧+私人影院的多功能体,家里的精华都浓缩在这一块。

半高的电视是厨房和客厅的分水岭。既能遮挡水槽,下方空间又能合理分配给客厅和厨房。


小米盒子+米家万能遥控器+小爱智能音响,相当于多了个24小时管家服务。
客厅没用茶几,空间更灵活。可插入式移动边几,跟沙发高度配套,日常看剧下饭,还可以调节到最舒服的高度。

把客厅的阳台打造成一个音乐区,塞下全景声音响系统。朋友来聚会,不用去KTV,在这儿唱歌超爽!


窗户是双层中空断桥玻璃,隔音绝佳。配了智能电动帘,可根据光线或语音指令自动关闭。
待客的餐厨空间,
全屋高能集合区。

常常待客,餐厨区当然不走常规操作,打通原厨房隔墙,现在这里更像一个开放式聚会厅。

整个厨房布局按照 取→洗→切→炒→盛 动线完成,转身之间就能完全所有操作。

清洗区和烹饪区做了 高低台面,切菜洗碗腰不酸,炒菜胳膊不累。
厨房油烟机和龙头一样,挥手即启动。水槽还有超声波清洗功能,清洗蔬菜果蔬很方便。 尽量做到各类杂事家务活,能不动手就不动手。


将水槽隐藏在了电视机后方的位置,做了挡水板。
厨房东西杂乱,规划了一个完善的收纳系统,大到各类家电,小到牙签调味瓶都各有去处。

吧台周围设计了灯光,夜里制作鸡尾酒很有氛围。底下做了抽屉,用来放调酒用品,收纳和动线都很完美。

厨房同时也是小家电集中区,装修前期规划好了大部分电器尺寸和水电规划,才有如今的整洁模样。

餐边柜的地方原来有明显阳角,设计师做了个 倾斜对角造型,凹出了餐厅的围合感又完美隐藏了阳角。

餐台面上放了胶囊咖啡机和早餐机,柜子里藏酒、放零食、餐垫,还有各种杂物,开放格用来放烹饪类书籍和桌游。

餐桌白色面板,摆盘好看;长度足够,坐4-6人没问题。

餐厅对面墙上挂了霓虹灯牌, 「sit, feast on our life」,改自德里克•沃尔科特的诗句,译为「坐下,尽享我们的生活」。


「feast on」直译刚好是「享受美食」,放在餐厅再合适不过。
日式的温暖,
藏在小小的多功能室里。

次卧地面抬高做成日式榻榻米空间。平时一个人在这里看书喝茶,朋友来太多,也可以一起打地铺。

靠墙隐藏了个下翻床, 靠背+床前灯+置物架,一应俱全。顶柜用来放被子,朋友来时能快速收拾出一个睡眠空间。


<< 滑动查看翻床效果 >>
家里的 书籍按照就近原则分类收纳:烹饪类书籍放在餐边柜,休闲杂志放客厅,睡前读物放卧室,书房收纳专业类书籍。


书桌侧面的三层隔板收纳文具和书籍。
用两个*团蒲**和宜家落地灯一些石子,把书房的阳台捣鼓出一个日式氛围很足的小庭院。


坐在这里喝茶时切身体验,这才是向往的生活。
洗烘区在阳台一侧,吊柜藏在竹帘背后,里面放着各种清洁用品。利用米家电器之间的互动, 洗衣机洗好晾衣架自动放下,尽量解放双手。

私密空间,
简单实用是第一要义。
卧室的床品、枕头、香薰……每一种都是从酒店学来的经验,按自己的喜好精心挑选,致力打造简单睡眠空间。

整墙的衣柜无门把手,很隐形。靠窗定制了 嵌入式梳妆台。加宽镜面、台面推近、还装了两条长形壁灯,超适合近视的屋主。

卫生间不大,没装门, 踏进感应灯亮起,自动排风。干湿区之间装了雾化玻璃,关上门自动雾化,避免走光。

浴室柜下加了一块实木隔板,后期还能塞两个收纳盒。电热毛巾架放浴巾,安排在马桶对面,靠近淋浴房更方便使用。


朱自清说过,「我爱热闹,也爱冷静;爱群居,也爱独处」,放在@月亮猴mockmoon 身上再适合不过。
他的家,不仅有适合独处的静谧小屋,解放双手的智能家居,还有为朋友们造访的会客空间、娱乐设备。
你理想的独居生活是什么样?评论区一起聊聊吧!