







案例名称:汤河茗筑
设计师:郭宇
风格:简欧
所在楼盘:秦皇岛汤河茗筑
户型:三居室
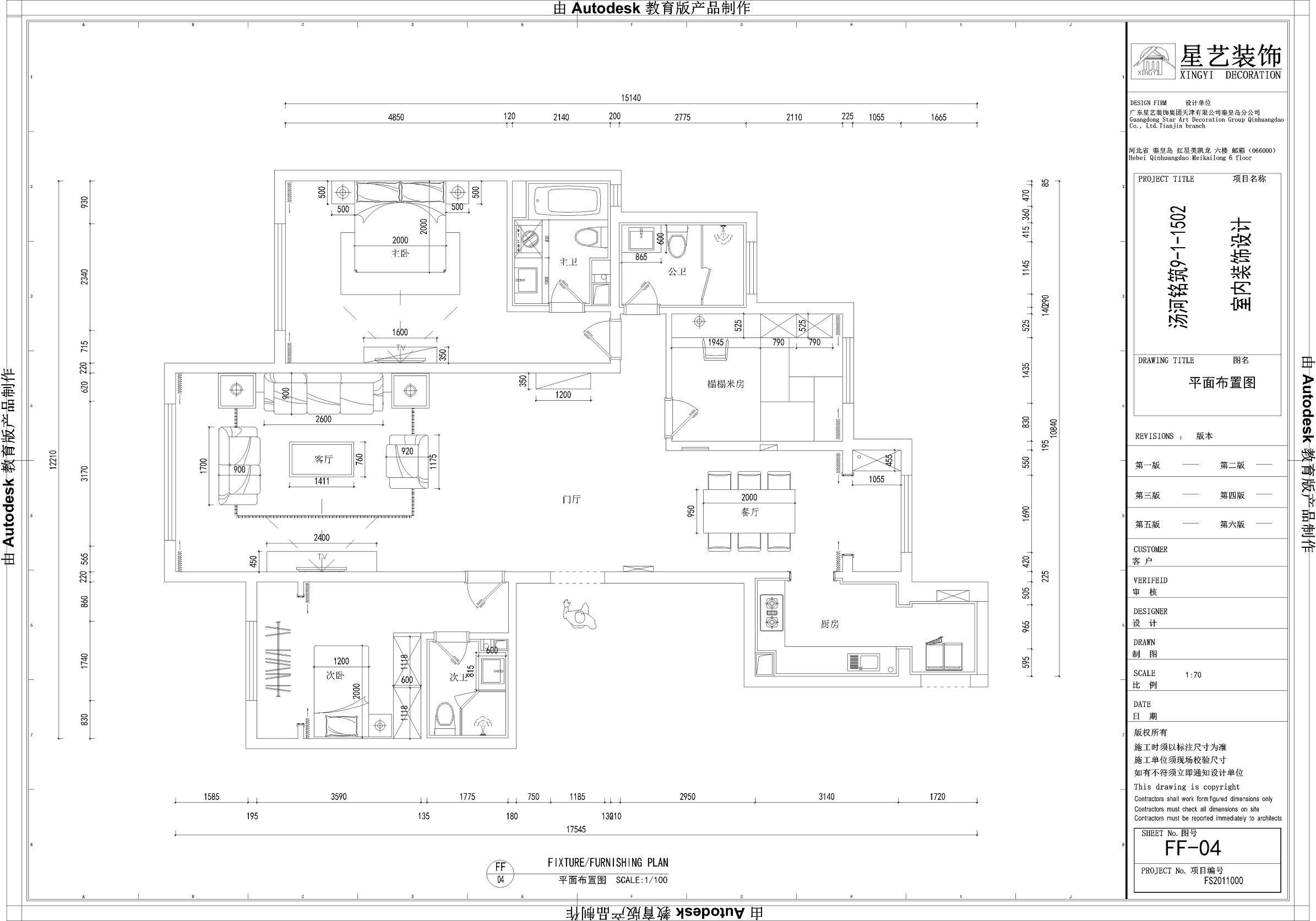
面积:168㎡
工程造价:12.5W
装修用材:立邦 可耐福 莱恩斯 保利 马可波罗瓷砖 史密斯热水器 德国保罗壁纸
本案位于:河北省-秦皇岛市-汤河铭筑168平层户型。
设计说明:
本案为简欧风格的一款家装设计,客户是我的回头客,为了结婚所以准备装修的是自己的新房,客户比较喜欢欧式的感觉,但是介于纯欧过于沉闷,故而采用简欧的方式来进行设计。欧式风格总是给人以富丽堂皇、雍容华贵的感觉,卫生间也不例外。虽然这个卫生间本身并不大,但是华丽的灯具、镜子、小饰品、再加上欧式的壁纸,整个卫生间自然而然就流露出一种西洋的调子。和谐是欧式风格的最高境界 现代欧式的居室有的不只是豪华大气,更多的是惬意和浪漫。散发出浓浓的欧式乡村情怀,轻松恬静。古朴的米色地砖和富于造型的欧式家具让整个空间温暖和煦,墙面简洁的壁炉造型平添几许生活气息。斜顶木梁造型和家具相呼应,在绿色植物的点缀下,带给你和客人舒适的谈话空间。
点击上方小编头像欣赏更多最新装修案例,欢迎在线咨询