一对幸福的中年夫妇,我们刚给他们装修好一栋别墅,因为孩子在国外读书。外地工作的夫妻俩人偶尔回来居住。购买了一套小户型房子,当作阳光小公寓居住,日常收拾屋子更加方便。崇尚自然简约、舒适简洁的MUJI式家居风格,这种风格的家既能为日常生活提供舒适的体验,又符合现代人的审美。

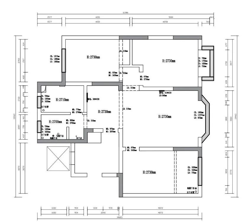
原始户型图

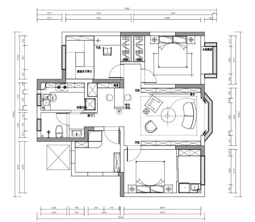
改造户型图
1丨入户处打造格栅玄关与两人就餐吧台,充分合理规划空间。
2丨客厅双侧开放式书橱,增加收纳功能。无电视化,使用幕布投影功能。
3丨多功能榻榻米房间,茶室、客房、收纳、休息室于一体化。
▍ 客厅

客厅:打造中国家庭的MUJI风:以白色+木色系为主,给人的第一印象大多是安静平和。用高级灰的沙发和绿植做少量点缀,保证视觉效果干净利落。

背景色以白色、原木色为主,用于墙面和地面。Muji风的四周墙面留白,地板、柜体都是原木色,即使柜子里收纳了满满当当的物品,也不显得凌乱。
▍ 主卧

主卧:整体风格延续原木日式风的轻盈与质朴,纯粹的墙面色彩,搭配自然肌理的原木家具,惬意而舒适。
▍ 次卧

次卧:木质感在温馨的床头壁灯布置下,也是充满温情舒适的浪漫气息,搭配灰白配的床单,营造出一个简约安静的睡眠空间。
▍ 榻榻米

榻榻米:清新原木质感的榻榻米充满日式韵味,小茶室简约中透着轻巧。独坐其中让人静思,满足办公、发呆、冥想,禅意无穷。整体多功能柜,旁边设计写字台,榻榻米提供小憩之处。
▍ 卫生间

卫生间:灰砖地面搭配木质肌理感丰富的收纳台,大理石洗手盆与原木色台柜加上配套的镜柜满足基本洗漱功能,为空间注入一道暖流。

主案设计师:刘志诚
设计师言:“设计不只是为了让客户得到更好的视觉享受,而是为了更好地设计一种生活方式,传达一种追求简单舒适的生活理念,同时减少不必要的浪费。”