
山地俱乐部设计源于“地脉”文化的思考,努力创造符合高尔夫运动特征的建筑形态;营造一组休闲、健康、个体鲜明的室内外空间;构筑建筑、山地、林木有机相融的生态场所。区别于城市建筑的理性构思是对“规矩”的重新认识,地形、山势、林木成为基准点并引发思考:脉动、包容、留白、移栽、转折、过渡、错位等新的建筑语言,因此,自由的呼吸、自由的伸展成为建筑秩序的新目标。

北京太伟高尔夫俱乐部实景图

北京太伟高尔夫俱乐部实景图

北京太伟高尔夫俱乐部实景图

北京太伟高尔夫俱乐部实景图

北京太伟高尔夫俱乐部实景图

北京太伟高尔夫俱乐部实景图

北京太伟高尔夫俱乐部效果图

北京太伟高尔夫俱乐部草图

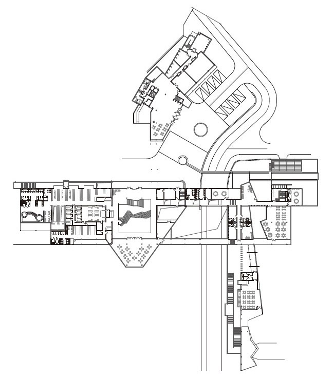
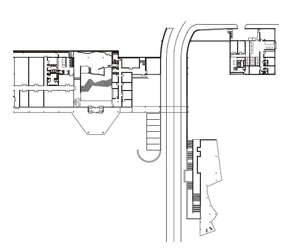
北京太伟高尔夫俱乐部平面图

北京太伟高尔夫俱乐部平面图

北京太伟高尔夫俱乐部平面图

北京太伟高尔夫俱乐部立面图