一、“院”是什么
“院”最初指的是墙围起来的空地
我们日常理解的院子
其实是后来与“庭”合称的“庭院”
庭院一词
现在表示建筑和墙体围起来的
人们用于生活的空地
我国关于庭院最早的记载是
《南史·陶弘景传》中的
“特爱松风,庭院皆植,每闻其响,欣然为乐”
而它最初的模样是这样

二里头遗址夏朝宫殿复原模型
(先农坛古建博物馆藏)
这是距今3800~3500年的
河南偃师二里头一号宫遗址
是夏朝的宫殿建筑
我国最早的庭院
二、四合院从哪里来?
院子最初模样知道了
那四合院最开始是什么模样?
最早的四合院
(夏商周时期)
根据考古及研究确定,现知我国最早的四合院是在西周时期出现,距今3000余年,是在庭院出现后500~800年时间。
它位于今陕西岐山凤雏村
的早周遗址

这套四合院已有了前后两个院子
四周房屋围合,前院正房为前堂,用于宴会和礼仪,后院的是后室,用作主人的日常起居,东西两侧的房子给其他家庭成员居住 。
汉代
在四川成都出土的画像砖
描绘了东汉时期四合院的模样

东汉画像砖中的合院
可以看出,房子和廊子围合、大门偏西,东院还有高高的望楼,可见这时的合院建筑形式十分丰富。
魏晋与隋唐时期
这时候合院已是主流住宅
形式更加丰富
在敦煌壁画中可以看见

敦煌壁画中的四合院形象
宋元
《清明上河图》与《千里江山图》
就真实反映了宋代的合院模样

《千里江山图》中的合院
这时的四合院前堂后室
多用工字型廊子连接
元代则继承了这种布局形式
明清
四合院高度成熟
每个地域形成了自己鲜明的风格
我们见过的四合院形式也基本在这个时候定型
三、北京四合院有多少种?
发展至今
北京地区形成了特色鲜明的
北京四合院
常听人说北京四合院繁多
那这熟悉的北京四合院有多少种呢?
首先得明白这两个字——“进”与“跨”。前后方向院子的个数不叫“个”,叫“进”,你进几个门,就叫几进院。



左右方向
院子的个数叫“跨”
没错,就是横着“跨”
正院往西边跨一步
就叫“西跨院”

正院往东边跨一步
就叫“东跨院”

明白了“进”与“跨”这两个字
我们就可以很轻松地识别
四合院有多少种了
前后方向的四合院种类
一进四合院

很显然
这种四合院
只有一个院子
只进一个大门
因此叫 一进四合院
或 单进四合院

院子四周都是房子围合
这是最简单的四合院形制
两进四合院

它有两个院子
需要进两个门
因此叫两进四合院

前院有对外接待的功能
内院是主人家庭生活的院落
有一定的私密性
三进四合院

有三个院子
需要进三个门
在前院,内院的基础上
加了一个后院
因此叫 三进四合院

后院主要是给女眷使用
(女眷指男主人的母亲,爱人、姐妹和女儿等女性家庭成员)
三进四合院是最典型的四合院模式
长度一般在50~60米
正好是北京城大多相隔的胡同间距
住三进四合院的一般算是中产家庭
四进及以上的四合院
四进、五进、甚至七进的四合院
都是在三进四合院的基础上
将三进四合院的一个内院
变为多个内院
前后院不变

能住多进四合院的
一般都得是大户人家
比如《红楼梦》中地位崇高的贾母
住的就是 五进四合院

左右方向的四合院种类
跟前后方向的“进”对应的
就是左右方向的“跨”
多跨四合院的各跨院
彼此独立
又会在跨院墙上开小门连通

这些跨院一般都是供
拥有多子孙的大家族居住使用
人多钱多的家庭,跨院住人
人少钱多的家庭
跨院就用来造作了
比如,做个自家的秘密花园
比如北京的可园、婉容故居等
可都是北京私家园林的珍品

可园鸟瞰图

婉容故居 纸模型
四合院的格局和种类
根据院落的实际情况变化很多
以上列举只是我们常见的
和较为标准的几类
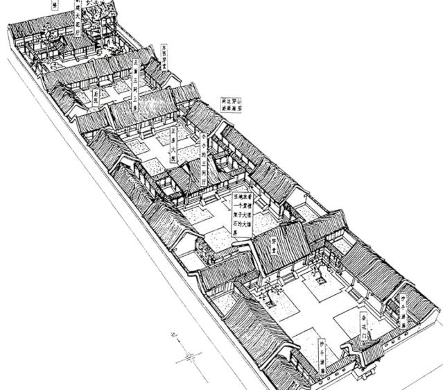
四、四合院里的房子们
看完了四合院的种类
常见的四合院里
每座房子都是干嘛的呢?
在这里我们选取
标准的三进四合院来看看
大门

大门即是四合院正式的大门
也是四合院的第一进门
四合院的大门因等级不同有很多不同的样式
在此不进行讨论
至于大门在四合院中的位置
一般是在院子的东南角
这个位置是风水八卦中的巽(xùn)位

四合院的格局与八卦布局
这是个生财的位置
主人将大门设在此
就是想每天财源广进
毕竟
老百姓都是很朴实的嘛
倒座房

倒座房是院里唯一一座
背向街道的房子
是院落最外侧的一座

也可以说它是
倒着坐的一座房子
因此得名“倒座房”
倒座房一般是给
佣人或者外来的客人住宿用
垂花门

两进以上的四合院里
才会出现“垂花门”
它是宅子的第二进门
因门上的垂莲柱而得名
俗话说的“大门不出,二门不迈”
二门指的就是垂花门
正房

一般是内院正中的建筑
是宅子中等级最高的建筑
屋顶也高于其他建筑
正房是供主人使用
一般是一家之主居住在内
厢房

位于内院两侧
一般是有两座厢房正对
厢房是给主人的儿子及儿媳居住使用
耳房

位于正房两侧
好似正房的耳朵而得名
耳房一般较小
一般用作贮藏室
回廊
很多四合院内用一圈游廊
将正房、厢房和垂花门连在一起

就好像人在冬天把手臂揣进袖子
抄起双手一样
因此叫“抄手游廊”
人可以在游廊下避雨、休息
后罩房
(也称 后照房)
后罩房是四合院的最后一座建筑
它是四合院的收尾
将整个宅子罩住
(也有人将其称为"后照房)

后罩房位于后院,有最好的私密性,常常给女眷使用,偶有情况给佣人使用。
家财较为丰厚的主人也会将后罩房建为二层,称其为“后罩楼”。清末民国时期是后罩楼建设的高峰期。
五、院里的“小物件”
门墩石

也叫门鼓石,常在大门的前后两侧,或者二门(垂花门)前后。院内独立影壁下由石料制作而成。

影壁

有的四合院中设有影壁
一类置于进入大门迎面的墙上
此为照壁
另一类设在门外与大门相对,中间隔着胡同。还有一类规格较高的,在大门两侧,在平上“八”字形打开。这类影壁被称为“八字影壁”或“撇山影壁”。
彩画

彩画是外部装饰
主要在枋子、垫板和梁头等部位
官员与百姓的四合院中
使用的是最简单的苏式彩画
彩画中间有半圆形“包袱”
画有山水、人物、花鸟图案
而大多数四合院建筑连彩画都不用
仅简单画一些图案或只刷油漆
蝎子尾

一般在四合院建筑的正脊两端
院落大门的正脊两端也常见
是民居中鸱吻的代替物
因两端向上翘起
与平面有35°夹角
像蝎子翘起来的尾巴而得名
门簪

常见的门框上
可以看见两个凸出来的小木块
这东西就是门簪
在早期是有固定和连接作用的,汉代时期多为方形。发展到后期演变成了一种装饰物,开始出现八角六角甚至花形,上面也会有吉祥等字样出现。
砖雕

砖雕在四合院中很常见
在墙心、墙头、屋脊出现
常见图案为松竹花鸟等题材
有时出现连环画似的几幅花鸟或人物图案,耐人寻味。近代少数四合院受西方建筑影响,院内设置砖砌拱门,但门上的雕饰依然采用传统图案。
小编有话说
提起古建筑,很多人眼中依旧还是故宫、天坛颐和园。
但往往是民间的建筑,
才最能体现中国传统建筑最普遍、最多样的特点
时代在变化,如何把代表着活历史的建筑遗产用作城市发展和中国文化软实力建设的坚实根基,是我们人人需要从自身做起的事情。
而你对四合院的正确认知,就能让它等待得住新生!
毕竟
不破坏,才是最好的保护!
来源:微信公众号“遗介”(ID:Heritage-Podcast)
(转自:正警事儿)