总结建筑工程图纸识读的入门知识,力求达到以下四个方面能力:
1、理解建筑施工图的成图原理和制图标准;
2、看懂房屋的组成和各部分的材料、做法,能够看懂一般建筑工程的主要施工图纸;
3、能够根据施工图纸进行建筑面积和一般工程量的计算以及常用构件数量的统计;
4、能够发现图纸中较明显的错误、遗漏和图样之间相互矛盾的地方。
第一节 建筑工程施工图的组成
各专业施工图的内容
1、总图:建筑场地范围内建筑物的位置、形状和尺寸,道路、绿化及各种室外管线的布置等。
2、建筑专业图:建筑平面图、立面图、剖面图、各种详图及门窗表、材料做法表。
3、结构专业图:基础图、各层顶板的平面、剖面、各种构件详图,构件数量表及设计说明。
4、设备专业图:包括给水、排水、采暖、通风各系统的平面图、轴测图和各种详图。
5、电气专业图:包括照明、动力和弱电的系统图、平面图及详图等。
第二节 建筑工程图的成图原理
一、投影的概念
用一组假想的投射线把物体的形状投到一个平面上,就可以得到一个图形,称为投影法。
二、投影的种类
1、中心投影:投影线由一点放射出来投射到物体上,这种作图方法称为中心投影法。
2、平行投影:投影线呈相互平行状投射到物体上,称平行投影。
(1)正投影:使投影线垂直于投影面时,并且使物体的一个面也垂直于投影线。
(2)斜投影:当投影线倾斜于投影面时,所作出的投影。



三、物体的三面正投影图
1、三面正投影体系的形成
(1)将物体放在三个相互垂直的投影面间;
(2)用三组垂直于投影面的投影线作投影;
(3)在三个投影面上得到三个正投影图。
2、三面正投影体系的展开
(1)正立投影面不动;
(2)水平投影面向下转动90°;
(3)侧立投影面向右后方转动90°。

点这免费*载下**施工技术资料
3、三面投影图的特性
(1)不全面性
每个投影图只能反映物体两个方向的尺寸;立面图反映长度和高度;平面图反映长度和宽度;侧面图反映高度和宽度。
(2)“三等关系”
长对正:立面图与平面图的长度相等;
高平齐:立面图与侧面图的高度相等;
宽相等:平面图与侧面图的宽度相等。
4、镜像投影图
当用正投影图不易表达物体形状时,可在物体下方放一个镜面,再用正投影法从上向下进行投影,在镜面中反射出的物体的图形就是镜像投影图。
镜像投影法一般应用在绘制各层结构顶板平面图。

四、剖面图
(一)剖面图的形成:用一个假想的平面把物体切开,移走一部分,作剩下这部分物体的正投影。
(二)剖面图的形式:
1、全剖面图
2、半剖面图
3、局部剖面图
4、阶梯剖面图
(三)剖面图的标注方式
1、剖切线:剖切位置、剖切方向、剖面编号。
2、剖面图编号



第三节 建筑制图标准
一、房屋建筑制图统一标准(GBJ—1—86)
1、尺寸和单位:一般尺寸以毫米(mm)为单位。
2、图标和会签栏:工程名称、图名、图号及设计人签字。
3、比例:图样大小与实物大小的尺寸之比。

4、线型:实线、虚线、点划线、折断线、波浪线等。


5、定位轴线:是确定建筑物结构或构件位置及其标志尺寸的线。

6、剖切符号:表示剖切的位置、剖视方向及剖面编号。

7、引出线:用细实线引出后注明各层材料做法。






13、详图编号:表示局部详细做法图样的编号。
14、对称符号:表示此线两侧的形状做法完全一样但方向相反。
15、连接符号:以折断线表示两部分应该连接的部位。

16、常用建筑材料图例(见下表)


二、总图制图图例


三、常用结构构件代号

第四节 施工图的识读
一、总平面图
(一)作用:用于建筑物的定位、定标高,施工放线,土方工程和施工现场布置。
(二)内容:
1、新建房屋的平面形状、尺寸,标高,层数、出入口。
2、用地范围,新建房屋和原有房屋、构筑物的间距。
3、新建房屋室内外地坪标高、道路的标高,土方填挖与地面坡度,雨水排除方向等。
4、用指北针表示房屋的朝向。
5、有时还有水、暖、电的管线布置,道路庭园绿化的布置。

二、建筑专业图
(一)平面图
1、作用:用于施工放线,主体结构施工,门窗安装、室内装饰及编制工程预算 。
2、基本内容
(1)建筑物的朝向,平面形状和房间布局;
(2)建筑物的平面尺寸和轴线间距:柱距、跨度。
(3)建筑物的结构形式为框架结构;
(4)主要建筑材料:钢筋混凝土柱,粘土空心砖墙。
(5)门窗的编号、尺寸见门窗表;
(6)变形缝的位置、作用;
(7)散水、台阶的尺寸。


(二)立面图
1、作用:主要用于立面装饰。
2、基本内容
(1)建筑物的外形、高度、门窗、雨罩、台阶等的位置和形式 。
(2)建筑物的总高、层高、窗台高、窗高等尺寸。
(3)室外地坪、室内地面及门窗的标高。
(4)外墙面的装饰做法、勒脚的高度和做法。
(5)变形缝的位置和做法。
(6)雨水管的位置。

(三)屋顶平面图
1、作用:表明屋面排水情况和突出屋面构造的位置。
2、基本内容
(1)屋顶的形状和尺寸,屋檐的挑出尺寸、女儿墙的位置和厚度。突出屋面的楼梯间、水箱间、烟囱、通风道等;
(2)屋面排水情况,排水分区、排水方向、屋面坡度和雨水管等;
(3)屋顶、屋面有关详图的索引。

(四)外墙详图
1、作用:外墙详图是某处外墙的大样图,它表示了从室外地面到屋顶各部位的详细做法。外墙详图可以作为砌墙、室内外装修、门窗安装和编制施工预算的依据。
2、内容:
(1)墙与轴线的关系;墙的厚度,墙与轴线的关系;
(2)室内外地面处的节点:地面做法、散水、勒脚、墙身防潮层、踢脚和室内外窗台的做法 等;
(3)门窗的节点:窗台做法、门窗过梁等;
(4)屋顶檐口处的节点:屋顶板、梁与墙的连接,屋面做法、顶棚做法、挑檐或女儿墙的做法等。

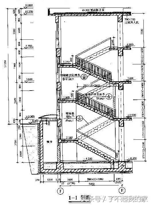
(五)楼梯详图
1、作用:表明楼梯形式、结构类型和平面、剖面尺寸以及详细做法。
2、内容:
(1)楼梯平面图:楼梯间的轴线间距,楼梯段的步数和宽度,休息板的尺寸,门窗的位置和尺寸等。
(2)楼梯剖面图:每层楼的梯段数,每段的步数,各层和休息板的标高等。
(3)栏杆、扶手和踏步详图。






三、结构专业图
(一)基础平面图
1、作用:主要用来抄平、放线、挖槽、打垫层等。
2、基本内容
①轴线编号和轴线间距;
②基础的形状和尺寸;
③垫层的尺寸和厚度;
④基础的编号;
(二)基础剖面图
①基础的类型:钢筋砼独立基础
②形状呈锥台形,底部配有网状钢筋。
③基础下面设有素混凝土垫层。
④基础埋置深度:从室外地面到基础底面的距离。
⑤基础梁的做法和用途。

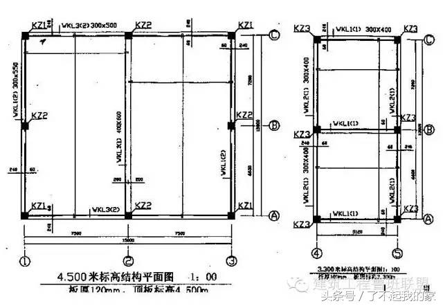
(三)框架柱详图
1、柱子的编号:KZ1、KZ2、KZ3。
2、柱子的截面尺寸:480×480。点这免费*载下**施工技术资料
3、柱子的高度和长度:1.8+4.5和1.8+3.3。
4、柱子的配筋:主筋和箍筋。
(四)现浇钢筋混凝土板配筋图
1、作用:用于支模板,绑钢筋,浇筑砼。
2、内容:
(1)现浇板配筋图:板的编号、长宽厚尺寸,钢筋的种类、规格、数量。
钢筋种类:主筋、分布筋、支座负筋。
钢筋数量:(轴线距离—墙厚)÷间距+1
钢筋规格:Φ14@150;Φ8@200
(2)现浇梁的配筋图:梁的断面尺寸、钢筋的种类、规格、数量。
钢筋种类:受力主筋、弯起筋、架立筋、箍筋。


(五)框架梁详图(平面整体表示法)
梁的编号 截面尺寸 根数
WKL1(1) 300×400 3
WKL1(2) 300×550 2
WKL2(1) 400×600 1
WKL2(2) 300×400 2
WKL3(2) 300×500 2
