大兴区国瑞·瑞福园共有产权房非京籍家庭申购指南
01、项目详情

项目位置:北京市大兴区瀛海镇
项目四至:东至京福路,南至瀛安街,西至瀛顺路,北至瀛吉街。
建筑面积:项目规划总建筑面积约20.8万平方米,其*共中**有产权住房项目地上建筑面积约10.1万平方米,容积率2.0。
套数:项目总套数999套,本次配售房源共301套。
户型面积:两居室230套,建筑面积约89平方米;三居室71套,建筑面积约139平方米。
销售价格:29000元/平方米,全装修交房。
份额比例:单套住房的购房人产权份额比例为60%,北京市大兴区保障性住房建设投资有限公司(政府产权份额代持机构)持有剩余40%份额。
02、申请条件
在大兴区稳定工作的非本市户籍无房家庭申请条件如下:
1.申请人应具有完全民事行为能力,申请家庭成员包括夫妻双方及未成年子女。单身家庭申请购买的,申请人应当年满30周岁。
2.申请家庭应符合本市住房限购条件且家庭成员名下均无住房。一个家庭只能购买一套共有产权住房。
3.申请家庭有以下情形之一的,不得申请购买共有产权住房:
一是申请家庭已签订住房购买合同或征收(*迁拆**)安置房补偿协议的。
二是申请家庭在本市有住房转出记录的。
三是有住房家庭夫妻离异后单独提出申请,申请时点距离婚年限不满三年的。四是有违法建设行为,申请时未将违法建筑物、构筑物或设施等拆除的。
4.申请人在京连续缴纳社保或个税满60个月。
5.在大兴区稳定工作,申请当月申请人在北京市个人社保权益记录中所载明的缴费区为大兴区(不包含北京经济技术开发区,下同),且申请当月前24个月以上在大兴区连续缴纳社会保险。
6.申请家庭承租公共租赁住房、公有住房(含直管和自管公房等)后又购买共有产权住房的,应在购房合同网签前书面承诺腾退所租住房屋。
03、销售分配
符合以上申请条件的非本市户籍申请条件的家庭,分组进行配售。
优先组:"新创工程"领军人才,在大兴区重点企业、国家高新技术企业、新媒体产业园、生物医药基地产业园和京南大*联学**盟中从业的人员。
申请人需本科及以上学历。申请人所在企业需具有独立法人资格,且在大兴区进行工商注册、纳税并入统。该企业不在拟腾退产业之内。
普通组:其他在大兴区工作的非本市户籍家庭。
04、申请入口
共有产权房网上申报入口:http://zzfws.bjjs.gov.cn/enroll/home.jsp
05、比例的确定
根据《北京市共有产权住房管理暂行办法》(京建法〔2017〕16号)的规定,该项目产权份额的确定情况如下:
(一)共有份额比例确定原则
该项目的房屋产权由购房人与政府按份共有,确定原则按照《北京市共有产权住房管理暂行办法》(京建法〔2017〕16号)第十八、十九条执行,其中政府产权份额由北京市大兴区保障性住房建设投资有限公司持有。
(二)共有份额比例评估及确定结果
该项目申购前已经委托房地产评估机构完成对购房人与政府共有份额比例的评估,根据《北京市共有产权住房管理暂行办法》(京建法〔2017〕16号)及评估报告,该项目单套住房的购房人产权份额比例为60 %,北京市大兴区保障性住房建设投资有限公司(政府产权份额代持机构)持有剩余 40 %份额。
06、资格审核
(一)网上申购结束后,对申请购买家庭购房资格进行联网审核。同时,大兴区委组织部、大兴区科委、大兴区产促中心、新媒体产业园、生物医药基地产业园和京南大*联学**盟等主管部门根据本公告申购条件,对非本市户籍申请家庭中优先组家庭情况进行审核。非本市户籍优先组申请家庭需在2018年11月10日前向所在工作单位申报家庭信息。申请家庭工作单位需于2018年11月13日前向主管部门进行申报,主管部门需于2018年11月21日前将符合优先组认定条件的家庭名单提交至大兴区住建委。未在规定时间内进行申报的,不纳入优先组范围。
(二)本项目摇号结束后,选房工作启动前,依据本项目申购条件将开展在大兴区工作情况的审核。审核认定标准为:申请人在本市个人社保权益记录中所载明的缴费区为大兴区,且自2018年10月(含)起向前递推连续24个月及以上在大兴区缴纳社会保险,即可认定为在大兴区连续24个月缴纳社会保险。
审核工作结束后,审核结果将在大兴区人民政府网站进行公示。如经审核,申购家庭信息不符合条件或申请家庭因填报家庭信息与实际家庭信息不一致而未审核通过的,不得参与选房。
(三)在申请家庭选房后,在正式签约前,开发企业将再次组织对选房家庭进行购房资格审核,凡不符合要求的家庭,不得签约,取消本项目购买资格。
07、周边配套
(一)交通路网
(1)公交路线:
公交:341路瀛海庄站、526路瀛海庄站、555路瀛海庄站、926路瀛海庄站、953路瀛海庄站。
(2)交通路线:京福路与瀛安街交汇处。
(二)周边配套
(1)商业:华联购物中心、首航生活广场。
(2)银行:北京市农村商业银行、中国邮政储蓄银行。
(3)医院:瀛海镇中心卫生院。
(4)娱乐:北普陀影视城,盛世南宫影视文化城。
(5)学校:瀛海镇第一中心幼儿园、瀛海镇第一中心小学、红星中学。
(6)公园:南海子公园、兴海公园。
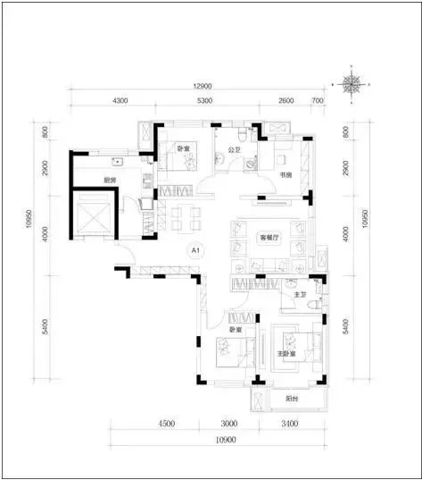
(三)户型图

AA1户型平面图
建筑面积:约139.79㎡
户型位置: 1#楼 东单元1-17层 / 4#楼 东西单元1-12层 / 7#楼 东西单元3-17层

A2户型平面图
建筑面积:约88.91㎡
户型位置:1#楼 西单元1-17层 / 4#楼 东西单元1-12层 / 7#楼 东西单元3-17层

A3户型平面图
建筑面积:约89.21㎡
户型位置:1#楼 西单元1-17层 / 4#楼 东西单元1-12层 / 7#楼 东西单元3-17层