
“城乡一体化的核心是人的一体化,新型城镇化不是消除城乡差别,而是找到认知平等,这个才是我们真正要做的工作。以前的人说故乡是回不去的远方,而我们要把它变成回得去的远方,这也是我们认为我们做这件事情最有意义的地方。”
——袈蓝建筑创始人邹迎晞
农业+文旅+社区……2017年初,“田园综合体”作为乡村振兴的发展模式被写入中央一号文件,在全国推广。而早在2013年袈蓝建筑就已经在这个领域不断探索,同时袈蓝建筑打造的“无锡田园东方”项目也在无数次的“田园综合体”范本中出现。作为最早投身乡村领域的建筑规划设计团队,它是国内专业的田园综合体类型项目设计服务先行机构,至今,已完成了国内大型区域规划项目五十余个。今天,我们就来看一看袈蓝建筑那些案例。
01 无锡阳山田园大讲堂
以竹为骨,构建田园之间的存在与通融
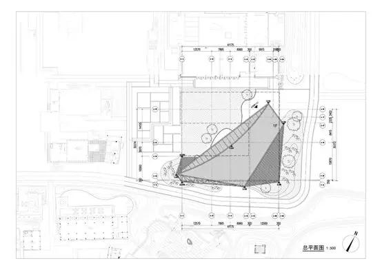
项目位于江苏省无锡阳山镇,建筑占地面积1618㎡,由室内会场、室外休闲区和延伸绿化景观三部分组成。作为综合体内的标志建筑,田园大讲堂伫立于综合体园区的中心位置,融于田园,在其中持续生长。

结构
建筑整体呈不规则的三角形形状,建筑体在视角上展开,使大讲堂拥有一个室内外融合的灰空间而非成为园区内的视觉阻碍物。与此同时,建筑用地轮廓响应三角形的斜边,上下以竹子连接,形成交叉的双曲面造型,旨在贯通视线,形成一个通透的空间,给人以强烈的场域感。


材质
“轻”,是大讲堂其中一个鲜明性格——材料轻质,结构轻盈。一方面,建筑以钢结构为骨架,上面的拱元素使屋顶更为通透,与天空实现“通融”。同时加入阳光板,将自然光线引进室内,并利用鱼肚梁结构解决了跨度的问题。另一方面,建筑以竹子作为围护体系,竖向支撑排列既富有一种序列美,又相当于钢索对上方结构产生反向拉力,最终达到一种矛盾抵消的结构平衡。


选材理念
整个项目以“通融”为理念,解读景观、人与建筑、人与环境、材料与景观通融的方式与意义。竹子就是场域周边最佳的对话角色,既带来安全感,又不会约束视觉,同时赋予大讲堂一种独特的气场,使其仿佛是从这片土壤中生长出来,自然而不突兀。

可持续/环保
竹子贯穿项目始终,本质上这就是一座竹子的生态建筑。项目中使用的竹子是经过了前期处理,包括烤干取直、刷漆等,很大程度上提高了材料的质量和耐久性,节省了后期维护成本。另外大讲堂地面采用的是回收地砖,建筑师认为可再生就是尊重自然,对未来负责,建筑“随时间推移和周围环境的互动始终能被接受”。



02 “天府新兴·和盛田园东方”田园综合体
新田园主义哲学的空间实验
示范区位于四川成都,占地面积约86.7公顷。袈蓝建筑根据市政道路切出来的现状,把整体示范区划分为“爱尚田园”、“乐活田园”以及“创智田园”三个主要分区。

爱尚田园:田园里的“太古里”——新田园主义的示范基地
爱尚田园板块是整个项目的心脏,总占地6.54公顷,建筑面积约1.4万平方米,该板块是文创集群和集中消费场所,更像是一个田园之间的公共厅。

整体项目的智慧中心“和盛书院”是一个非常有趣的嵌套式建筑,在现代的建筑外观之内,包裹着一个完整的老房子。在对建筑的调整中,设计师选择了不破与大破的处理方式。以最简单纯粹的空间处理手法,在老房子的顶部加横板,成为一个露台,和田园生活馆之间,以几条简单的横线,融成一体。




和盛书院中间是一个类似四合院一样四面围合的院落,设计师通过改造将它变成一个中心讲堂。院落的上方以高耸的天井封闭,塑造出空间的仪式感。同时顶部选择透光天窗处理,让室内与外部自然环境形成连接,通过自然光线的变化,在封闭的空间内又创造出自由与开放的体验。



乐活田园:田园共享教育及亲子活力场
乐活田园版块总占地约242亩,建筑面积约9200㎡,主要功能为田园嘉年华、亲子游乐、自然教育等,呈现内容紧密围绕城乡融合对接,关注优质农产品的城市对接,传统工艺的创新转化与展示。同时创造出寓教于乐的空间基底,为自然中的教育体验与亲子互动提供场景。

创智田园:乡村振兴生态圈企业总部群
创智田园版块总占地50公顷,建筑面积约6.3万平方米,以田园式、低密度的工作和生活环境吸引成都本地文创、科创、农创企业的新农人,为其提供智能共享的办公环境。

共享办公区域和单体办公区域整体规划设计,每个地块的建筑本身是一个整体的同时,又形成原始村落的围合;几个单体办公区域就是一个小组团,组团与组团之间保持一定的距离,即保留了传统乡村建筑布局特点,同时解决了自然通风、采光、环境不相融等问题。

03 无锡田园东方二期规划设计
“城市病”的治疗药方
无锡田园东方二期位于无锡阳山镇,建设面积约440公顷。小镇中心由一条核心商街和两个主题田野农场构成,从业态的延展上对一期体验进行补充,同时从阳山镇商业发展配合角度出发,让产品更加贴近未来新驻民的生活配套需求。

无锡田园东方二期以“情感雕琢”作为设计的中心思想,通过场景营造,构建建筑群的关联性与情感关系。

小镇南部入口处的蜜桃故事馆,正面以桃子造型呈现,是建筑群中唯一的纯现代异形建筑。建筑面对商街的立面选择了木材质装饰,与街道的整体视觉融合。另一面面对田野,则选择了代表当地火山文化的的火山岩,与自然连接。同时,在结构中运用大量环保竹板强调出田园建筑的本质。



入口处与蜜桃故事馆呼应的乡村振兴讲习所则是另一个标志性建筑。在竹木材质的框架内,以玻璃幕墙为特征,临水而居,与桃林相映,其中一面两层高通顶巨大玻璃幕墙正对当地的核心景观,大阳山。

玻璃的使用,让内部空间的视野充分打开,与天光和周边景观形成互动。而建筑的二层设计了可以环视商街和阳山两个角度的开阔平台,视觉风格上以砖瓦木竹呈现。桃花盛开之时,部分建筑掩映在桃花中,远看就是融入于桃林中的一组村落。这种情感雕琢的方式让建筑和环境之间形成一种微妙呼应。



商街以入口区域为节点,设计了市集广场。空间通过一个钢、竹结构的棚状构筑物为核心归拢,并通过小型下沉空间的处理形成聚合与室外的剧场感。遵循乡村场院的社交方式,成为整体小镇中心的又一个重要内容表现空间,丰富项目的互动性。


04 北京金海湖国际度假区溪园酒店
穿梭于廊道和露台之间,感受自然的野性
溪园酒店项目位于北京平谷城区15公里外的金海湖国际度假区内,占地17200㎡,建筑面积3348.61㎡。场地依山傍水,前身是一个废弃的度假庄园,经过扩建改造如今重新定义为野奢高端度假目的地。


基于半岛三面环水面山的环境,设计师把“野”放大,融入体验,力求打造与自然、植物之间舒适有趣的沉浸式互动,并在整体上实现360°观景效果。
为了保证视野的开阔,同时打破原有环境的单一,设计师在原本的散落建筑之间、外延嵌入了不同体量高低错落的开阔长方形露台,既以实现功能需求,也使建筑群形成了新的布局结构。


观景餐厅和天空观景台在湖岸与酒店居住区之间的半坡位置,形成游与居之间的小憩之所。餐厅与周边植物共生,以更贴近的方式感受北方四季分明的生态变化。餐厅屋顶跟随建筑群整体风格,是平层、见方的空旷露台。向上延伸,与整体建筑的自然调性相融合,同时又通过屋顶不同于半岛其它建筑形态建造的玻璃观景台,让阳光、视野360度无碍放开。


设计师通过曲直相应、高低错落的廊道把原本孤立的各个建筑通连接起来。廊道在平台与各个功能区当中穿插交通,上下流动,为游览者创造出景观最大化的观赏路线。从房间到露台,居住者可以通过游廊在私领域和公共空间内自由穿梭,远观山望塔,近戏水闲庭。

为了软化直线和方形的空间构图,设计师在观景栈道部分使用了柔和的曲线设计,打造出一个流动蜿蜒的云形连廊。它在两个不同高度之间形成连接,优化了空间和景观的层次,同时借此埋下伏笔,体现出设计师“有无相生”的设计哲学。屋顶露台、观景平台以及木栈道之间形成一个庞大的栈道游览体系。


在改造中采用了就地取材的方式,应用当地的柴禾、卵石及木材,因地制宜地将野奢定位融入视觉当中。酒店外立面以环绕着建筑露台垂直排列的柴木为特色,强化了“野”的风情。

目前酒店共设有25间客房,设计体现对老建筑的延续。其中一栋嵌在西边的山坡中,整体呈loft(跃层)风格,朝向湖面,开放与私密兼具。另有8间越层客房,上下打通,一楼作为起居空间,二楼为卧室。在服务配套上,酒店设有餐厅、咖啡厅、茶室和露天电影院等。





作为国内田园综合体项目设计的先行者,溪园酒店项目也蕴含着田园综合体的某些设计思维,它不只是景观和建筑的结合,更隐含人与自然的对话,文化、旅游与居住的融合。